We're now part of BTG Eddisons - Visit our new website BTGEddisonsPropertyAuctions.com
Lot
060
Auction: September 2025 Online Auction 24/09/2025 - Bidding opens Tuesday 23rd September 10:00 AM

5-7 St. Peters Place, Fleetwood, Lancashire, FY7 6EB

Property Details
Location
Auction Details
Description
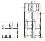
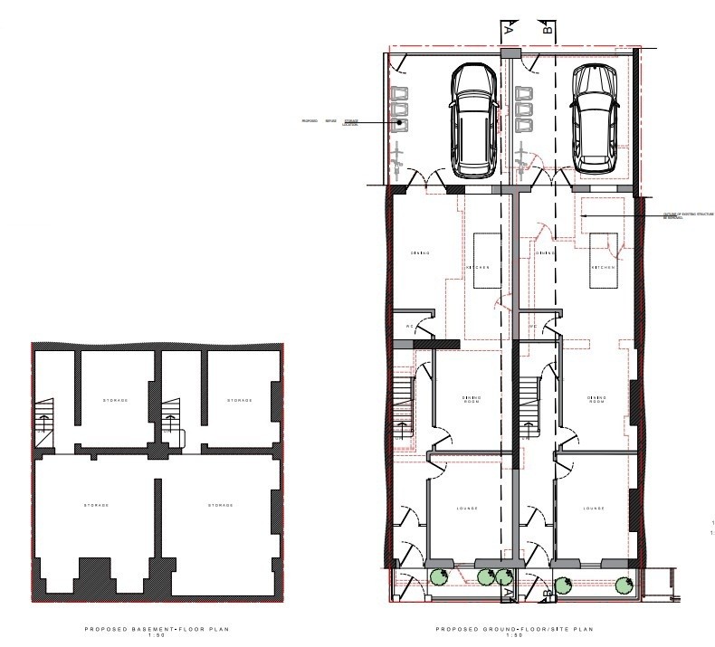
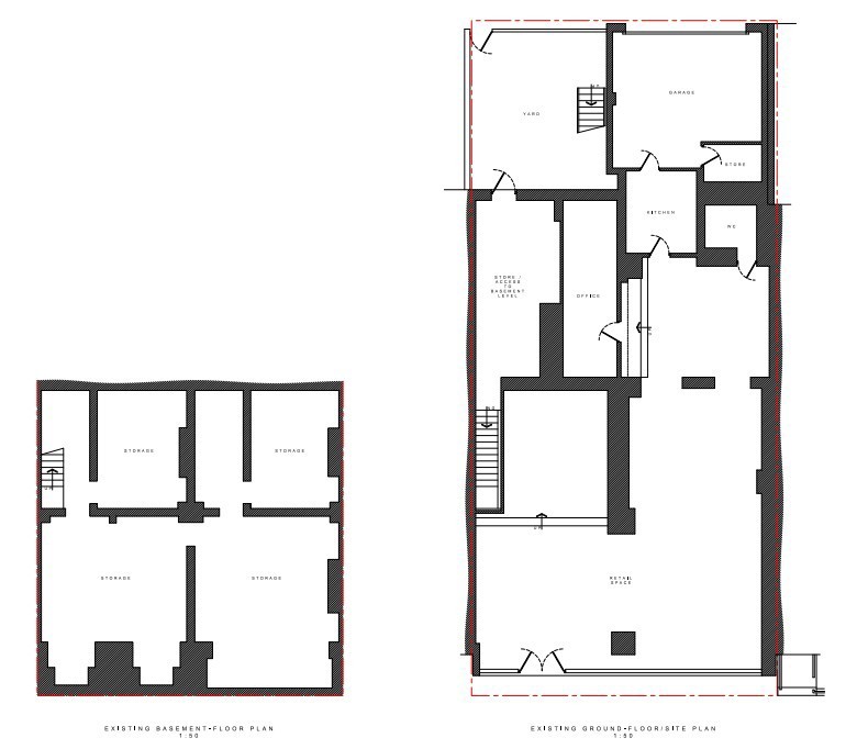
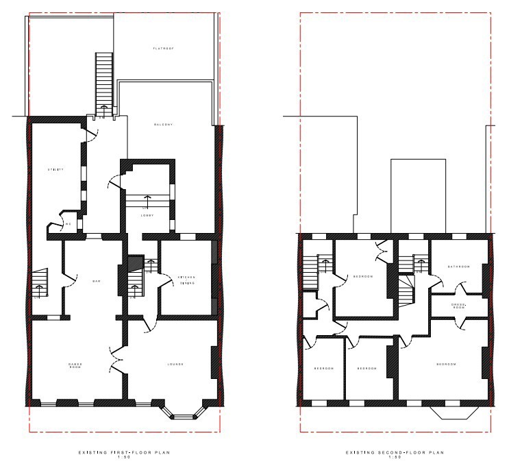
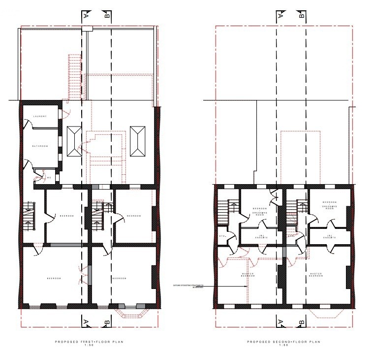
A substantial three storey, plus basement, double fronted building extending to approximately 498 Sq M (5,360 Sq Ft) GIA and benefiting from planning consent for conversion to provide a pair of 4 bedroom townhouses with secure parking to the rear, with an estimated GDV of £600,000. The property previously comprised ground floor retail accommodation with basement storage and residential accommodation to the upper floors and has now been stripped back to shell condition, ready for conversion works to commence. The property is situated on St Peter's Place, opposite St Peter's Church, in the centre of Fleetwood, and a short distance from The Esplanade.
Accommodation
Description5 St Peter's Place7 St Peter's Place
Basement:49.50 Sq M (533 Sq Ft) 49.50 Sq M (533 Sq Ft)
Ground Floor:82.50 Sq M (888 Sq Ft)82.50 Sq M (888 Sq Ft)
First Floor:67.50 Sq M (727 Sq Ft)67.50 Sq M (727 Sq Ft)
Second Floor:49.50 Sq M (533 Sq Ft) 49.50 Sq M (533 Sq Ft) 
Total:249.00 Sq M (2,680 Sq Ft)249.00 Sq M (2,680 Sq Ft)
Outside
There is a yard area to the rear of the property which will provide secure off-street parking.
Approx Site Area
Approximately 252 Sq M (301 Sq Yds).
Tenure
We understand the property is held freehold and long leasehold under Title No's LAN184626 and LAN946068.
Planning
For any pre-application advice, interested parties should consult directly with the Local Planning Authority: Wyre Council, Civic Centre, Breck Road, Poulton-le-Fylde, Lancashire, FY6 7PU. Telephone: 01253 891 000 Email: planning@wyre.gov.uk

The property benefits from planning consent (24/00288/FUL) for "Change of use of shop and flat into 2no. dwellings following the demolition of previous rear extension and attached garage with external alterations to all elevations (re-submission 22/01053/FUL)."
Costs
Details of the Buyer's Premium and any additional fees payable are contained within the legal documents.
General
1. All the information provided on our website is for indicative purposes only and interested parties should refer to the contents of the legal pack and rely upon their own due diligence as a prudent bidder.

2. PLEASE NOTE BIDDING COMMENCES ON TUESDAY 23RD SEPTEMBER AND CLOSES ON WEDNESDAY 24TH SEPTEMBER.

3. The property is listed with a Council Tax assessment in Band A.

4. Energy Performance Certificate = C.

Our Nearest Office

Liverpool 600x300

Liverpool

Search Available
Online Auctions
Search online auction icon
Guide to
Buying at Auction
Buying guide icon
Guide to Selling
Your Property
Selling guide icon
Sign Up For
Auction Alerts
Alert icon