We're now part of BTG Eddisons - Visit our new website BTGEddisonsPropertyAuctions.com
Lot
014
Auction: May 2025 Online Auction 28/05/2025 - Bidding opens Tuesday 27th May 12:00 PM

110-112 Broad Street, Parkgate, Rotherham, South Yorkshire, S62 6EN

Property Details
Location
Auction Details
Description
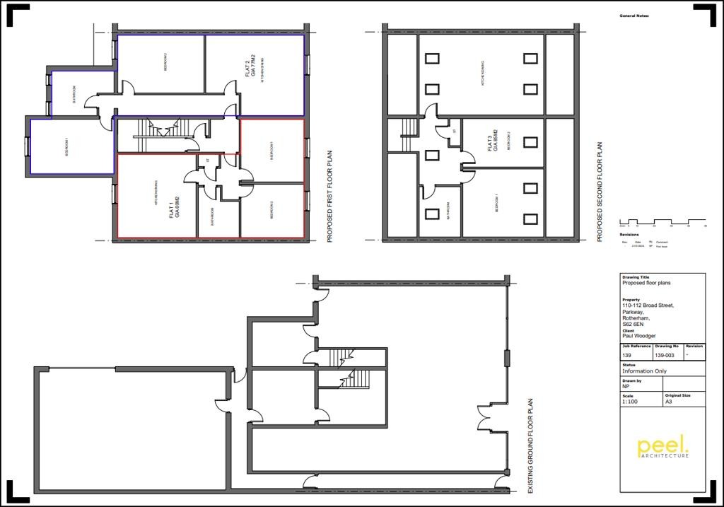
COMMERCIAL INVESTMENT WITH DEVELOPMENT POTENTIAL - £20,400pa Substantial inner terrace retail premises occupying a high profile location in the heart of Parkgate - a busy area to the north west of Rotherham town centre. The accommodation is located over 3 levels and comprises a ground floor outlet let for 5 years from 1st January 2023 at £12,000p and the first floor is also let for 5 years from 1st October 2024 at £8,400pa. In addition, plans have been drawn up for the use of the first and second floors as 3 residential units and Prior Approval has been granted for change of use from Commercial to Residential. Excellent potential is therefore offered for ongoing investment and future development.
Accommodation
All measurements taken from proposed plans

Ground FloorRetail, Office & Kitchen 123.31 sq m
First FloorSnooker Hall (proposed two units) 137 sq m 
Second FloorProposed Residential Unit 85 sq m 
TOTAL
345.31 sq m 
Planning
Prior Approval was granted conditionally by Rotherham MBC on the 25th March 2025 to determine change of use from Use Class E (Commercial Business and & Service) to Use Class C3 (Dwellinghouse).
Tenancy

Property TermRent (pcm)Rent (pa)
Ground Floor5 years from 1st January 2023 Â£1,000£12,000
First Floor5 years from 1st October 2024£700£8,400
TOTAL
£1,700£20,400
Costs
Details of the Buyer's Premium and any additional fees payable are contained within the legal documents.
General
1. All the information provided on our website is for indicative purposes only and interested parties should refer to the contents of the legal pack and rely upon their own due diligence as a prudent bidder.

2. PLEASE NOTE BIDDING COMMENCES ON TUESDAY 27TH MAY AND CLOSES ON WEDNESDAY 28TH MAY.

3. The property is entered in the 2023 Rating List as "Shop and Premises" with a Rateable Value of £13,000. The Rateable Value (RV) is not the amount payable.

4. Energy Performance Certificate = E.

Our Nearest Office

Sheffield 600x300

Sheffield

Search Available
Online Auctions
Search online auction icon
Guide to
Buying at Auction
Buying guide icon
Guide to Selling
Your Property
Selling guide icon
Sign Up For
Auction Alerts
Alert icon