We're now part of BTG Eddisons - Visit our new website BTGEddisonsPropertyAuctions.com
Lot
064
Auction: October 2024 Online Auction 16/10/2024 - Bidding opens Tuesday 15th October 10:00 AM

36 Harland Road, Sheffield, South Yorkshire, S11 8NB

Property Details
Location
Auction Details
Description
STUDENT INVESTMENT WITH DEVELOPMENT POTENTIAL - A substantial end of terrace HMO occupying a wider than average plot with driveway and substantial rear GARAGE/STORE offering additional income potential or development opportunity (subject to planning) The property occupies level position in this much favoured letting area, a short walk from Collegiate Crescent and comprehensive facilities on nearby Ecclesall Road. The property is let up until 29th June 2025 at a total rent equivalent to £19,002 but normally would be let to 5 at a minimum of £115 per week each (inclusive of bills) , giving an annual income just under £30,000pa.
Location
Harland Road runs off the main A625 Ecclesall Road opposite Collegiate Crescent and a short walk from a wide range of facilities including numerous pubs, restaurants and bars, in what is considered to be one of the most popular student letting areas of Sheffield. The city centre lies less than a mile away as does the inner ring road, giving easy access to Midland Station, both Universities and comprehensive amenities in and around the city centre
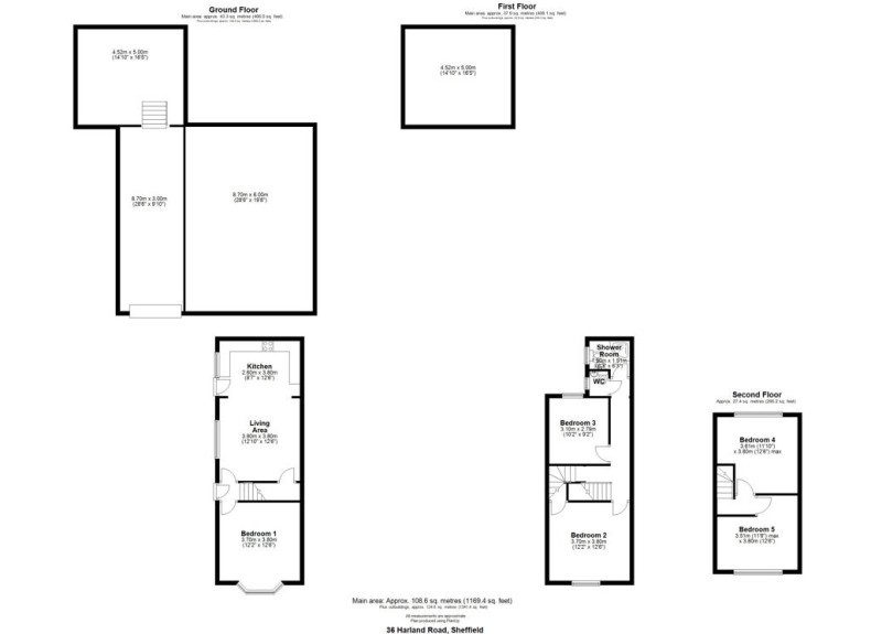
Accommodation

Ground FloorFront Bedroom, Lounge, Kitchen & Bathroom/WC
First Floor2 Bedrooms, Shower Room & Separate WC
Second Floor 2 Bedrooms 
Outside
Forecourt and side driveway leading to SUBSTANTIAL GARAGE/STORE offering potential for letting or redevelopment (subject to planning).
Tenancy

The property is usually let to 5 for the full academic year, giving an overall income just under £30,000  but the current rental details are as follows-

1st July 2024 - 31st January 2025 - to 5 tenants at £105 pw each  - £11,375

1st February 2025 - 29th June 2025 - to 4 at £110pw each  - £7,627

TOTAL - £19,002

Costs
Details of the Buyer's Premium and any additional fees payable are contained within the legal documents.
General
1. All the information provided on our website is for indicative purposes only and interested parties should refer to the contents of the legal pack and rely upon their own due diligence as a prudent bidder.

2. PLEASE NOTE BIDDING COMMENCES ON TUESDAY 15TH OCTOBER AND CLOSES ON WEDNESDAY 16TH OCTOBER.

3. Energy Performance Certificate = D

Our Nearest Office

Sheffield 600x300

Sheffield

Search Available
Online Auctions
Search online auction icon
Guide to
Buying at Auction
Buying guide icon
Guide to Selling
Your Property
Selling guide icon
Sign Up For
Auction Alerts
Alert icon