We're now part of BTG Eddisons - Visit our new website BTGEddisonsPropertyAuctions.com
Lot
008
Auction: September 2023 Online Auction 20/09/2023 - Bidding opens Tuesday 19th September 10:00 AM

Land At 15A Broomfield Road, Stocksbridge, Sheffield, South Yorkshire

Property Details
Location
Auction Details
Description
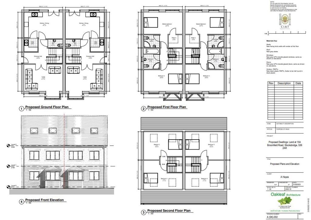
A freehold building plot of 536 sqm occupying a private location on the fringe of Stocksbridge, close to open countryside, yet well served by comprehensive facilities in Stocksbridge. A successful Pre-application has been made for the construction of two 4 bedroomed semi detached houses and potential is offered to pursue this scheme or a single detached dwelling similar to the adjoining site.
Location
Stocksbridge is located to the North West of Sheffield on the A616 Manchester Road and enjoys good access to the motorway network and a number of regional centres including Sheffield, Huddersfield and Barnsley. There are comprehensive facilities including the Fox Valley complex, reputable schools and leisure facilities as well as open countryside around historic Bolsterstone and local reservoirs. Broomfield Road runs off Coal Pit lane at Bracken Moor and the land is located off a rear access road just before Broomfield Court, as shown on the location plan
Accommodation

Proposed accommodation 
Ground FloorSide entrance Hall, Cloakroom/WC, Living Room & Dining Kitchen 
First FloorLanding, Master Bedroom with En-Suite, Bedroom 2 & Bathroom
Second Floor Landing &  Bedrooms 3 & 4

Approx Site Area
Approximately 536 sqm (641 Sq Yds).
Planning
Planning consent was originally granted for a Children's nursery as part of a wider scheme incorporating the adjoining site. More recently Preapplication advise was given in relation to the construction of two dwellings. (Ref 23/01759/PREAPP) A copy will be placed with the legal pack
For any further advice, interested parties should consult directly with the Local Planning Authority: Sheffield City Council, Howden House, 1 Union Street, Sheffield, S1 2SH. Telephone: 0114 203 9183.

ARCHITECTS
Oakleaf Architecture ltd. are happy to answer queries regarding the Pre-Application oakleafarchitecture@outlook.com
Costs
Details of the Buyer's Premium and any additional fees payable are contained within the legal documents.
General
1. All the information provided on our website is for indicative purposes only and interested parties should refer to the contents of the legal pack and rely upon their own due diligence as a prudent bidder.

2. PLEASE NOTE BIDDING COMMENCES ON TUESDAY 19TH SEPTEMBER AND CLOSES ON WEDNESDAY 20TH SEPTEMBER.

Our Nearest Office

Sheffield 600x300

Sheffield

Search Available
Online Auctions
Search online auction icon
Guide to
Buying at Auction
Buying guide icon
Guide to Selling
Your Property
Selling guide icon
Sign Up For
Auction Alerts
Alert icon