We're now part of BTG Eddisons - Visit our new website BTGEddisonsPropertyAuctions.com
Lot
004
Auction: September 2023 Online Auction 20/09/2023 - Bidding opens Tuesday 19th September 10:00 AM

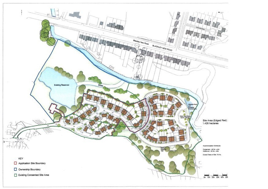
Land At Blackley Mere, Blackley New Road, Manchester, Greater Manchester, M9 8FS

Property Details
Location
Auction Details
Description
A residential development site extending to approximately 13.5 acres and benefitting from planning permission for the construction of 76 houses comprising a mixture of three and four bedrooms. Formerly an industrial site, the immediate surrounding area is mainly residential and within easy reach of a number of amenities and facilities.
Location
The site is conveniently situated on the fringes of Crumpsall and Blackley, approximately 4 miles north of Manchester City Centre and 0.5 miles to Bowker Vale Tram Stop. Various daily amenities and facilities are situated within easy reach including junction 19 of the M60 motorway network via A576. The site is accessed via Bowker Bank Avenue.
Accommodation

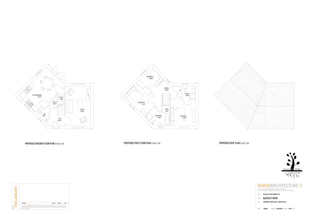
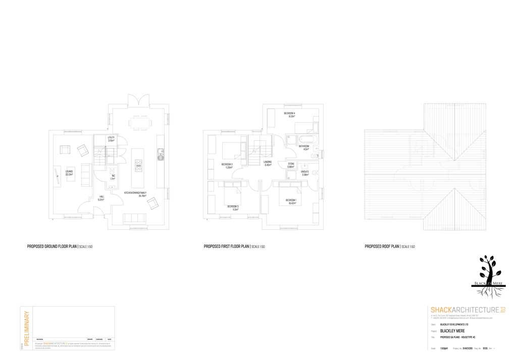
Under the current plans there are 4 house types as listed below:

House Type:3A3B4A4B4C
Size (Sq Ft):982.71076.31302.41442.31485.4
Units:2873263
Total (Sq Ft):27516.67534.141676.88653.84456.2

Approx Site Area
Approximately 5.48 Hectares (13.53 Acres).
Planning
An extant reserved matters planning consent was granted by Manchester City Council in July 2016 for 76 dwellings. A number of pre commencement conditions have been satisfied and further information can be found within the legal pack and data room.

For any pre-application advice, interested parties should consult directly with the Local Planning Authority: Manchester City Council, Town Hall, Albert Square, Manchester, M60 2LA. Telephone: 0161 234 4692. Email: planning@manchester.gov.uk.
Costs
Details of the Buyer's Premium and any additional fees payable are contained within the legal documents.
VAT
We understand VAT is payable in addition to the purchase price
General
1. All the information provided on our website is for indicative purposes only and interested parties should refer to the contents of the legal pack and rely upon their own due diligence as a prudent bidder.

2. PLEASE NOTE BIDDING COMMENCES ON TUESDAY 19TH SEPTEMBER AND CLOSES ON WEDNESDAY 20TH SEPTEMBER.

3. Access to a comprehensive data room containing all the relevant legal documentation is available upon request.

4. A 6 week completion is available on this lot.

5. The land is held under freehold title GM529902.
Addendum
1. We understand VAT is payable in addition to the purchase price.

2. An extant reserved matters planning consent was granted by Manchester City Council in July 2016 for 76 dwellings. A number of pre commencement conditions have been satisfied and further information can be found within the legal pack and data room. Buyer's are advised to rely solely upon their own enquiries in relation to the referenced extant planning permission.

Our Nearest Office

Manchesterresize 600x300

Manchester

Search Available
Online Auctions
Search online auction icon
Guide to
Buying at Auction
Buying guide icon
Guide to Selling
Your Property
Selling guide icon
Sign Up For
Auction Alerts
Alert icon