We're now part of BTG Eddisons - Visit our new website BTGEddisonsPropertyAuctions.com
Lot
229
Auction: 28th May 2026 Live Stream Auction 28/05/2026 - Bidding opens Thursday 28th May 9:00 AM

Land on the West side of 97 Grove Road, Stoke-On-Trent, Staffordshire ST4 4LN

Property placeholder image
Withdrawn
Withdrawn
We've unified our Auction Brands
If you're interested in this lot visit BTG Eddisons Property Auctions to book a viewing, submit an offer, send an enquiry and more.
View more details about this property on our new auction website
Share this Property
Property Details
Location
Auction Details
Description
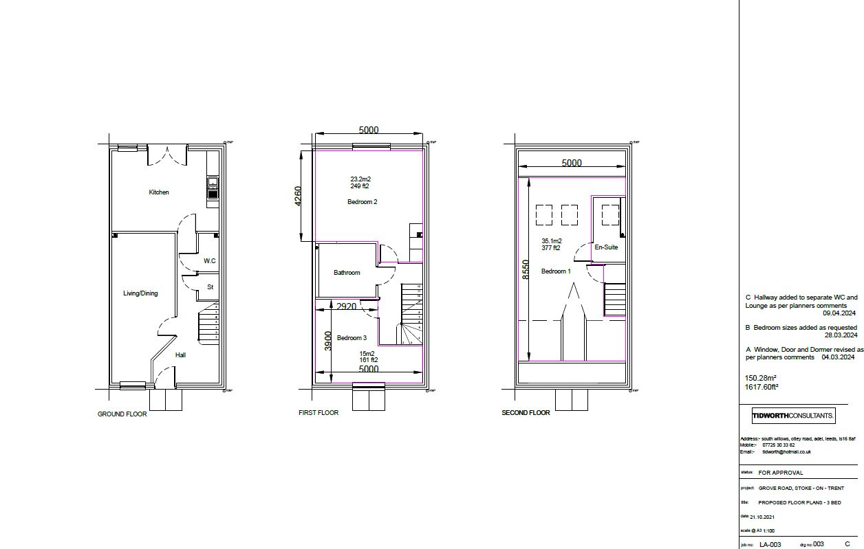
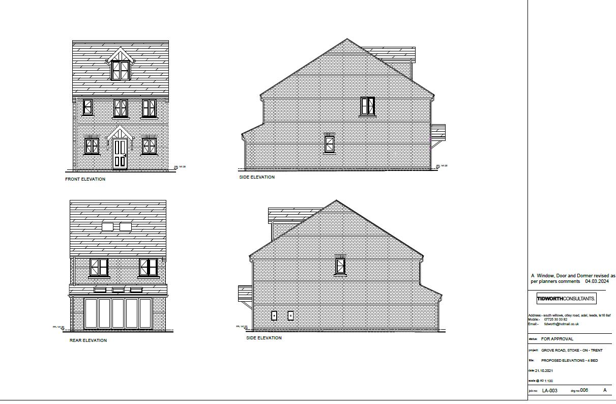
A freehold parcel of land extending to approximately 0.36 acres located along Grove Road benefitting from planning consent for the creation of 5 residential dwellings and associated landscaping and parking. The planning consists of 4 x 3 bed semis and 1 x 4 bed detached (5 dwellings valid until May 2027.)

The site is located in Heron Cross, on the outskirts of Fenton and forms an extension of existing housing stock along Grove Road. There is a junior school close to the site and access to the A50 dual carriageway is within half a mile. The site fronts Grove Road close to the Junction with Claud Street.

Interested parties are advised to inspect the legal pack for more information along with inspecting planning documents on the City of Stoke On Trent council planning portal number 70550/ful.
Costs
Auction Details

The sale of this property will take place on the stated date by way of Live streamed auction and is being sold under the Unconditional sale type.

Binding contracts will be exchanged at the point of sale.

All sales are subject to our Common Auction Conditions and Bidder Terms. Properties located in Scotland and Northern Ireland will be subject to applicable local laws.

Auction Deposit and Fees

The following deposits and non- refundable auctioneers fees apply:

• 5% deposit (subject to a minimum of £5,000)

• Buyer’s Fee of 4.8% of the purchase price (subject to a minimum of £6,000 inc. VAT)

There may be additional fees listed in the Special Conditions of Sale, which will be available to view within the Legal Pack. You must read the Legal Pack carefully before bidding.

Additional Information

For full details about our auction processes, please refer to the Bidder Terms which can be viewed on our home page.

This explains the types of auction and sale methods we offer, the bidding registration process, your payment obligations, and how to view the Legal Pack (and any applicable home report for residential Scottish properties).

Guide Price & Reserve Price

Each property sold is subject to a Reserve Price. The Reserve Price will be within + or - 10% of the Guide Price. The Guide Price is issued solely as a guide so that a buyer can consider whether or not to pursue their interest. A full definition can be found within the Buyers Terms. 
General

Note
Please be advised that whilst our joint agent has conducted an inspection, the auctioneers have not personally inspected the property. Prospective buyers are advised to make a viewing enquiry and any other necessary independent enquiries before placing their bid, as this will be binding.

Draft Sales Particulars
These sales details are awaiting vendor approval

Our Nearest Office

Manchesterresize 600x300

Manchester

Joint Agent

You may also like

101
Live Stream Auction

13 Olton Road, Mickleover, Derby DE3 0PL

Guide Price: £95,000 plus

102
Live Stream Auction

12 Northgate Street, Ilkeston DE7 8FR

Guide Price: £49,500 plus

103
Live Stream Auction

28 Northfield Avenue, Birstall, Leicester, Leicestershire LE4 4HW

Guide Price: £150,000 plus

104
Live Stream Auction

87 Kirkdale Road, Wigston, Leicestershire LE18 4SR

Guide Price: £100,000 plus

105
Live Stream Auction

104 Village Street, Derby DE23 8DF

Guide Price: £120,000 plus

106
Live Stream Auction

115 & 116 Moor Street, Burton-On-Trent, Staffordshire DE14 3SU

Guide Price: £135,000 plus

107
Live Stream Auction

15 Donisthorpe Lane, Moira, Swadlincote, Derbyshire DE12 6AZ

Guide Price: £75,000 plus

108
Live Stream Auction

Site next to 5 Harlesthorpe Avenue, Clowne, Chesterfield, Derbyshire S43 4AG

Guide Price: £17,500 plus

Search Available
Online Auctions
Search online auction icon
Guide to
Buying at Auction
Buying guide icon
Guide to Selling
Your Property
Selling guide icon
Sign Up For
Auction Alerts
Alert icon