We're now part of BTG Eddisons - Visit our new website BTGEddisonsPropertyAuctions.com
Auction: 30th April 2026 Live Stream Auction 30/04/2026 - Bidding opens Thursday 30th April 9:00 AM

60 Chesterfield Avenue, Long Eaton, Nottingham NG10 2DT

Guide Price
£110,000 plus
We've unified our Auction Brands
If you're interested in this lot visit BTG Eddisons Property Auctions to book a viewing, submit an offer, send an enquiry and more.
View more details about this property on our new auction website
Share this Property
Property Details
Location
Auction Details
Description
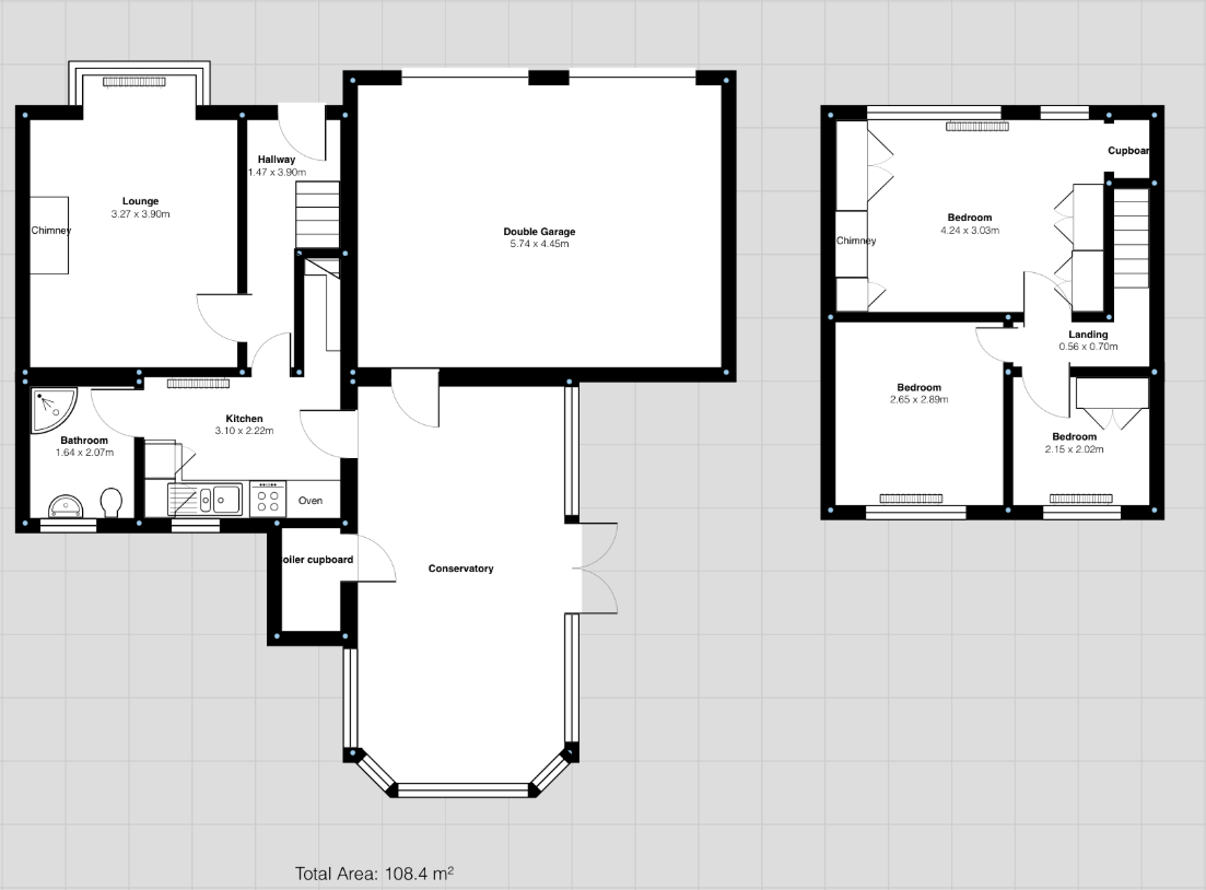
Positioned towards the end of this popular cul-de-sac location, is an attractively priced, traditionally built, three bedroomed semi detached property, offered for sale with immediate vacant possession.

Internally the well-equipped uPVC double glazed accommodation in brief comprises:- entrance hall with stairs, lounge, modern fitted kitchen with built-in-appliances, shower room, large double glazed conservatory measuring 22ft 4 x 11ft 1 with boiler room and access to the double attached garage with twin up an over doors. To the first floor landing, there are three bedrooms.

Outside to the front there is a brick built low level wall with small fore garden and adjacent driveway provides car standing for comfortably two vehicles. To the rear there is an enclosed garden enjoying a south westerly aspect and with a certain degree of privacy.

The property is situated within easy reach of the town centre which offers an excellent range of amenities and facilities. Nearby road network connections provide swift access onto the A52, M1 Motorway and the cities of Derby and Nottingham.
Costs
Auction Details

The sale of this property will take place on the stated date by way of Live streamed auction and is being sold under the Unconditional sale type.

Binding contracts will be exchanged at the point of sale.

All sales are subject to our Common Auction Conditions and Bidder Terms. Properties located in Scotland and Northern Ireland will be subject to applicable local laws.

Auction Deposit and Fees

The following deposits and non- refundable auctioneers fees apply:

• 10% deposit (subject to a minimum of £5,000)

• Buyer’s Fee of 1.2% of the purchase price (subject to a minimum of £1,500 inc. VAT)

There may be additional fees listed in the Special Conditions of Sale, which will be available to view within the Legal Pack. You must read the Legal Pack carefully before bidding.

Additional Information

For full details about our auction processes, please refer to the Bidder Terms which can be viewed on our home page.

This explains the types of auction and sale methods we offer, the bidding registration process, your payment obligations, and how to view the Legal Pack (and any applicable home report for residential Scottish properties).

Guide Price & Reserve Price

Each property sold is subject to a Reserve Price. The Reserve Price will be within + or - 10% of the Guide Price. The Guide Price is issued solely as a guide so that a buyer can consider whether or not to pursue their interest. A full definition can be found within the Buyers Terms. 
General

Draft Sales Particulars
These sales details are awaiting vendor approval

Our Nearest Office

Nottingham 600x300

Nottingham

You may also like

Live Stream Auction

Flat 3, Granite House, 34A Heyworth Street, Derby, Derbyshire DE22 3DL

Guide Price: £38,000 plus

Live Stream Auction

89 Mill Lane, Codnor, Ripley, Derbyshire DE5 9QG

Guide Price: £135,000 plus

Live Stream Auction

Land Adjoining Wood Royd, Wood Lane, Castleford, West Yorkshire WF10 5PJ

Guide Price: £90,000 plus

Live Stream Auction

12 Leopold Street, Derby, Derbyshire DE1 2HE

Guide Price: £120,000 plus

Live Stream Auction

Land at Tim Lane, Oakworth, Keighley, West Yorkshire BD22 7SA

Guide Price: £2,500 plus

Live Stream Auction

7 Lad Lane, Newcastle, Staffordshire ST5 1RE

Guide Price: £100,000 plus

Live Stream Auction

Land on the West side of 97 Grove Road, Stoke-On-Trent, Staffordshire ST4 4LN

Guide Price: £40,000 plus

Live Stream Auction

35 Ypres Road, Allestree, Derby, Derbyshire DE22 2NA

Guide Price: £170,000 plus

Search Available
Online Auctions
Search online auction icon
Guide to
Buying at Auction
Buying guide icon
Guide to Selling
Your Property
Selling guide icon
Sign Up For
Auction Alerts
Alert icon