We're now part of BTG Eddisons - Visit our new website BTGEddisonsPropertyAuctions.com
Lot
324
Auction: 30th April 2026 Live Stream Auction 30/04/2026 - Bidding opens Thursday 30th April 9:00 AM

63-67 Haywood Street, Leek, Staffordshire ST13 5JH

Sold for
£400,000
We've unified our Auction Brands
If you're interested in this lot visit BTG Eddisons Property Auctions to book a viewing, submit an offer, send an enquiry and more.
View more details about this property on our new auction website
Share this Property
Property Details
Location
Auction Details
Description
A freehold investment opportunity of brick elevations and tiled, pitched roof coverings comprising a large commercial unit on the ground floor and four apartments above providing an income.

The ground floor commercial unit is let under a Lease dated 1st April 2026 for a term of 6 years and 10 months at an initial rent of £20,000.00 per annum (exclusive of VAT). There is a rent-free period for the 1st year of the term, running from 1st April 2026 to 31st March 2027, after which the full rent becomes payable.

Two of the four flats are currently let on ASTs and we are advised are producing a combined income of £16,320 per annum.

Flat one is currently let on an AST producing £700 pcm.
Flat Two is producing £660 pcm.
Flats Three and Four are currently vacant.

Overall anticipated income £36,320 per annum with scope to increase by letting the two vacant apartments. We feel a total income of circa £54,000 is realistic.

To the rear of the property is space for four vehicles with separate access to the apartments opposite an area of public space. All apartments have gas central heating powered by individual combi boilers and UPVC double glazed windows. Although the ground floor unit is arranged as a single unit, it could very easily be split into two units which may be more appealing to the rental market.

The property occupies a prominent location within the town centre, opposite Farmfoods and within 20 yards of Aldi. Haywood Street is one of the main A roads which circles Leek providing access to Moorlands Shopping Centre, the bus station, and public carparks such as Smithfield Centre South and Smithfield North.

Leek is 11 miles from Stoke on Trent and 15 miles from Ashbourne in the opposite direction.
Accommodation

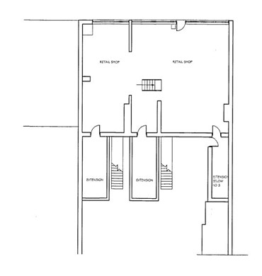
Ground Floor Retail:

Sales area - 1,242 sqft

Storerooms - 276 sqft

WC -

Lean-to - 103 sqft

Total net internal area - 1,621 sqft

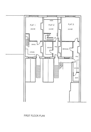
Flat One:
Over two floors, including lounge, kitchen, 2x bedrooms and
bathroom. Let to a private individual at £700 per calendar month.

Total gross internal area - 704 sqft

Flat Two:
Over two floors, including lounge, kitchen, 2x bedrooms and
bathroom. Let to a private individual at £660 per calendar month who has been in occupation for over two years.

Total gross internal area - 624 sqft

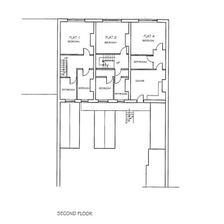
Flat Three:
Vacant. Over one floor, including lounge, kitchen, 1x bedroom and
bathroom.

Total gross internal area - 477 sqft

Flat Four:
Vacant. Over one floor, including lounge/bedroom, kitchen and
bathroom.

Overall net internal area: 3,822 sqft (not including all of commercial unit)

Note to Buyers
We are advised by the seller VAT is applicable, Flat one is currently let producing £700 pcm and Flat Two is let and producing £660 pcm.
Flats Three and Four are currently vacant. We have not been supplied with evidence of rent increase from the tenancy agreements within the legal pack (this has been requested) and therefore we cannot confirm the rental figure given in our marketing. Prospective buyers are advised to make all necessary independent enquiries prior to placing their bid as this will be binding.

Note
Please be advised that the auctioneers have not personally inspected the property. Prospective buyers are advised to make a viewing enquiry and any other necessary independent enquiries before placing their bid, as this will be binding.

Draft Sales Particulars
These sales details are awaiting vendor approval.

Costs
Auction Details

The sale of this property will take place on the stated date by way of Live streamed auction and is being sold under the Unconditional sale type.

Binding contracts will be exchanged at the point of sale.

All sales are subject to our Common Auction Conditions and Bidder Terms. Properties located in Scotland and Northern Ireland will be subject to applicable local laws.

Auction Deposit and Fees

The following deposits and non- refundable auctioneers fees apply:

• 5% deposit (subject to a minimum of £5,000)

• Buyer’s Fee of 3% of the purchase price

There may be additional fees listed in the Special Conditions of Sale, which will be available to view within the Legal Pack. You must read the Legal Pack carefully before bidding.

Additional Information

For full details about our auction processes, please refer to the Bidder Terms which can be viewed on our home page.

This explains the types of auction and sale methods we offer, the bidding registration process, your payment obligations, and how to view the Legal Pack (and any applicable home report for residential Scottish properties).

Guide Price & Reserve Price

Each property sold is subject to a Reserve Price. The Reserve Price will be within + or - 10% of the Guide Price. The Guide Price is issued solely as a guide so that a buyer can consider whether or not to pursue their interest. A full definition can be found within the Buyers Terms. 

Our Nearest Office

Manchesterresize 600x300

Manchester

Joint Agent

You may also like

101
Sold at auction

12 Leopold Street, Derby DE1 2HE

Guide Price: £120,000 plus

102
Sold at auction

46 Lock Lane, Sandiacre, Nottingham NG10 5LB

Guide Price: £50,000 plus

103
Sold at auction

669 Ashton Road, Oldham, Lancashire OL8 2RA

Guide Price: £55,000 plus

104
Sold at auction

Mary Grove Villa, St. Julians Avenue, Ludlow, Shropshire SY8 1ET

Guide Price: £190,000 plus

105
Postponed

13 Olton Road, Mickleover, Derby DE3 0PL

Guide Price: £95,000 plus

106
Live Stream Auction

Moreno, Horsley Lane, Coxbench, Derby DE21 5BH

Guide Price: £75,000 plus

107
Sold at auction

243 Goodman Street, Burton-On-Trent, Staffordshire DE14 2RG

Guide Price: £35,000 plus

108
Sold Prior to Auction

24 Chapel Street, Dukinfield, Greater Manchester SK16 4DW

Guide Price: £95,000 plus

Search Available
Online Auctions
Search online auction icon
Guide to
Buying at Auction
Buying guide icon
Guide to Selling
Your Property
Selling guide icon
Sign Up For
Auction Alerts
Alert icon