We're now part of BTG Eddisons - Visit our new website BTGEddisonsPropertyAuctions.com
Lot
134
Auction: 28th May 2026 Live Stream Auction 28/05/2026 - Bidding opens Thursday 28th May 9:00 AM

4, 6, 8 and 10 Church Street, Haworth BD22 8DR

Property Details
Location
Auction Details
Description
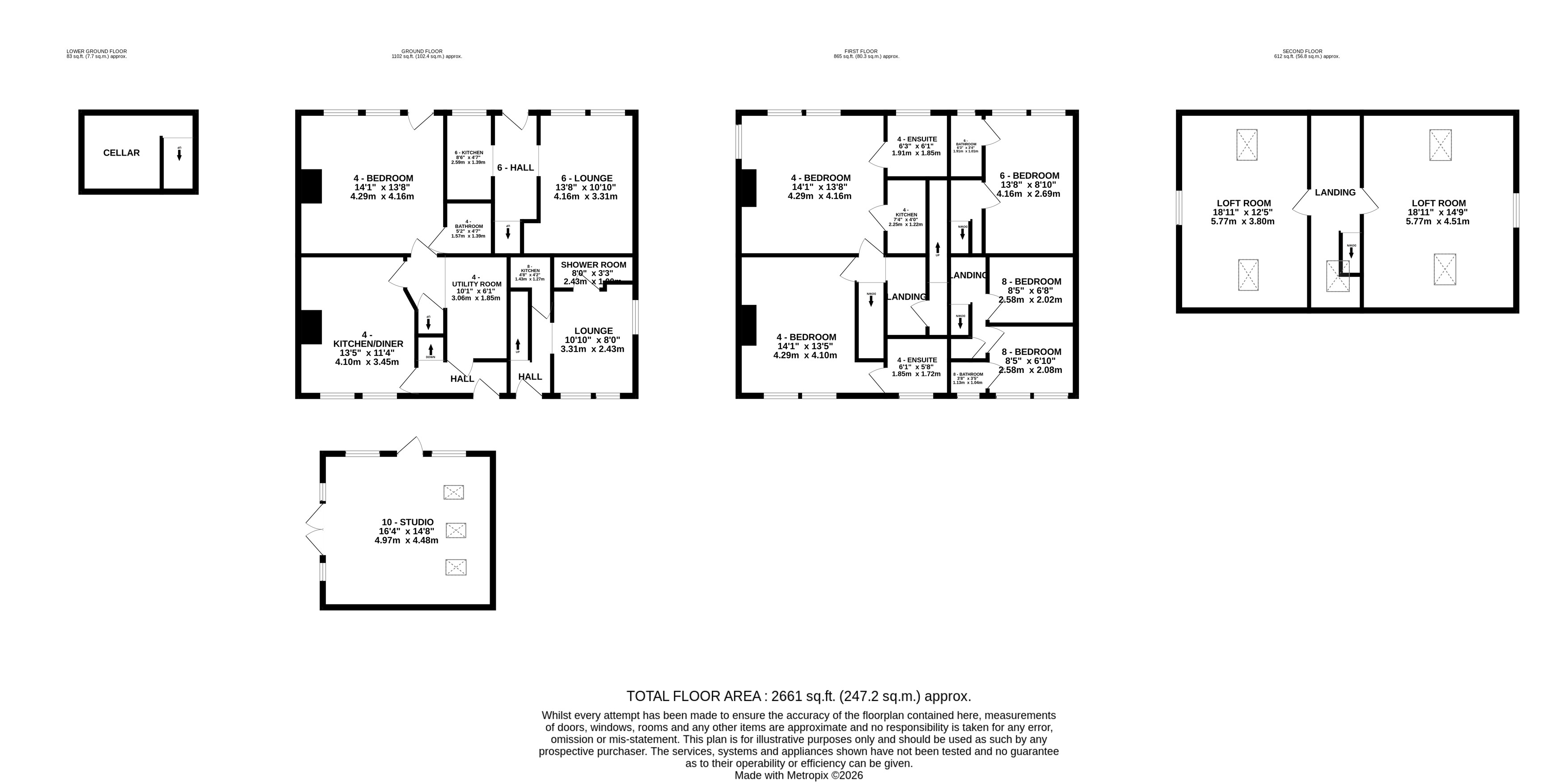
A cluster of historical buildings in the heart of Howarth village. The site comprises 1 x 2 bedroom cottage, 2 x 1 bedroom cottages, and a single storey studio to the rear. Properties 4 & 6 are let on rolling ASTs, with 8 and 10 being sold with vacant possession.

With a bustling tourism trade, the building would lend itself to use as AirBnB once brought up to the necessary standards. Alternatively, the building as a whole could potentially be redesigned, to accommodate any number of functions, i.e Guest House. This is all subject to the necessary consents.

Tucked away, behind the main cobbled street and next to the church, the property is well positioned for the historical sites of the village within a conservation area.

The images provided are from a recent inspection, of all units. Please note, however, BTG Eddisons only hold keys for 8 and 10.

There is a prohibition notice on part of number 4, preventing it from being let until the local fire department are satisfied it meets current fire safety requirements. We have been advised that rent has not been paid for some time, and arrears currently stand at £25,200.

Council Tax Bands: 4 - C, 6 - A, 8 - A.
Costs
Auction Details

The sale of this property will take place on the stated date by way of Live streamed auction and is being sold under the Unconditional sale type.

Binding contracts will be exchanged at the point of sale.

All sales are subject to our Common Auction Conditions and Bidder Terms. Properties located in Scotland and Northern Ireland will be subject to applicable local laws.

Auction Deposit and Fees

The following deposits and non- refundable auctioneers fees apply:

• 10% deposit (subject to a minimum of £5,000)

• Buyer’s Fee of 1.2% of the purchase price (subject to a minimum of £1,500 inc. VAT)

There may be additional fees listed in the Special Conditions of Sale, which will be available to view within the Legal Pack. You must read the Legal Pack carefully before bidding.

Additional Information

For full details about our auction processes, please refer to the Bidder Terms which can be viewed on our home page.

This explains the types of auction and sale methods we offer, the bidding registration process, your payment obligations, and how to view the Legal Pack (and any applicable home report for residential Scottish properties).

Guide Price & Reserve Price

Each property sold is subject to a Reserve Price. The Reserve Price will be within + or - 10% of the Guide Price. The Guide Price is issued solely as a guide so that a buyer can consider whether or not to pursue their interest. A full definition can be found within the Buyers Terms. 
General

Note
Please be advised that the auctioneers have not personally inspected the property. Prospective buyers are advised to make a viewing enquiry and any other necessary independent enquiries before placing their bid, as this will be binding.

Addendum
COPY A Summary of Fees form has not been provided by the seller's lawyer and buyers are referred to the additional fees payable as set out within the special conditions of sale. These are additional to the sums specified in the paragraph ‘Auction Deposit and Fees’ set out in our marketing. Prospective buyers are advised to make all necessary independent enquiries prior to placing their bid as this will be binding.

Our Nearest Office

Leeds 600x300

Leeds

You may also like

101
Live Stream Auction

13 Olton Road, Mickleover, Derby DE3 0PL

Guide Price: £95,000 plus

102
Live Stream Auction

12 Northgate Street, Ilkeston DE7 8FR

Guide Price: £49,500 plus

103
Live Stream Auction

28 Northfield Avenue, Birstall, Leicester, Leicestershire LE4 4HW

Guide Price: £150,000 plus

104
Live Stream Auction

87 Kirkdale Road, Wigston, Leicestershire LE18 4SR

Guide Price: £100,000 plus

105
Live Stream Auction

104 Village Street, Derby DE23 8DF

Guide Price: £120,000 plus

106
Live Stream Auction

115 & 116 Moor Street, Burton-On-Trent, Staffordshire DE14 3SU

Guide Price: £135,000 plus

107
Live Stream Auction

15 Donisthorpe Lane, Moira, Swadlincote, Derbyshire DE12 6AZ

Guide Price: £75,000 plus

108
Live Stream Auction

Site next to 5 Harlesthorpe Avenue, Clowne, Chesterfield, Derbyshire S43 4AG

Guide Price: £17,500 plus

Search Available
Online Auctions
Search online auction icon
Guide to
Buying at Auction
Buying guide icon
Guide to Selling
Your Property
Selling guide icon
Sign Up For
Auction Alerts
Alert icon