We're now part of BTG Eddisons - Visit our new website BTGEddisonsPropertyAuctions.com
Lot
220
Auction: 26th March 2026 Live Stream Auction 26/03/2026 - Bidding opens Thursday 26th March 9:00 AM

Land to the North side of Main Street, Kimberley, Nottingham NG16 2NL

Guide Price
£69,500 plus
We've unified our Auction Brands
If you're interested in this lot visit BTG Eddisons Property Auctions to book a viewing, submit an offer, send an enquiry and more.
View more details about this property on our new auction website
Share this Property
Property Details
Location
Auction Details
Description
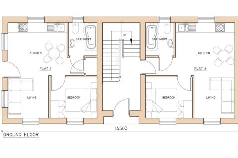
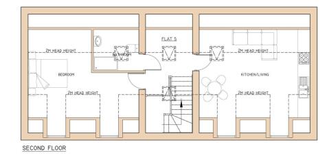
An opportunity has arisen to purchase a parcel of land with full planning permission passed for a three storey development of five apartments.

Situated close to the vibrant town centre of Kimberley, the current planning permission passed provides for five apartments over three floors and a penthouse style apartment
to the second floor.

Once built, these apartments will be ideal for long term rental or to be offered to the open market for first time buyers, professionals and those looking to downsize.

Kimberley is a vibrant market town in the Borough of Broxtowe, lying approximately six miles north-west of Nottingham along the A610. Kimberley has undergone a positive
transformation following recent residential redevelopment schemes and has been recently awarded levelling up funds from the Government, boosting the town even further.

The building plot fronts Main Street and is approximately 230sqm in size. Permission was granted on 31st July 2023 by Broxtowe Borough Council, File Ref. 22/00871/FUL.
Costs
Auction Details

The sale of this property will take place on the stated date by way of Live streamed auction and is being sold under the Unconditional sale type.

Binding contracts will be exchanged at the point of sale.

All sales are subject to our Common Auction Conditions and Bidder Terms. Properties located in Scotland and Northern Ireland will be subject to applicable local laws.

Auction Deposit and Fees

The following deposits and non- refundable auctioneers fees apply:

• 5% deposit (subject to a minimum of £5,000)

• Buyer’s Fee of 4.8% of the purchase price (subject to a minimum of £6,000 inc. VAT)

There may be additional fees listed in the Special Conditions of Sale, which will be available to view within the Legal Pack. You must read the Legal Pack carefully before bidding.

Additional Information

For full details about our auction processes, please refer to the Bidder Terms which can be viewed on our home page.

This explains the types of auction and sale methods we offer, the bidding registration process, your payment obligations, and how to view the Legal Pack (and any applicable home report for residential Scottish properties).

Guide Price & Reserve Price

Each property sold is subject to a Reserve Price. The Reserve Price will be within + or - 10% of the Guide Price. The Guide Price is issued solely as a guide so that a buyer can consider whether or not to pursue their interest. A full definition can be found within the Buyers Terms. 
General

Please Note
We have been informed that a retaining wall construction is required on this plot. Prospective buyers are advised to carry our their own due diligence.

Note
Please be advised the auctioneers have not personally inspected the site. Prospective buyers are advised to make necessary independent enquiries before placing their bid, as this will be binding.

Our Nearest Office

Nottingham 600x300

Nottingham

Joint Agent

You may also like

101
Live Stream Auction

39 Crosshill, Cotgrave, Nottingham NG12 3NB

Guide Price: £59,500 plus

102
Live Stream Auction

30 Mardon Road, Birmingham, West Midlands B26 3EX

Guide Price: £95,000 plus

103
Live Stream Auction

Garage Site at New Road, Barlborough, Derbyshire S43 4HY

Guide Price: £10,000 plus

104
Live Stream Auction

Land with caravan parking, garages & paddock, Alfreton Road, Little Eaton, Derbyshire DE21 5AD

Guide Price: £90,000 plus

105
Live Stream Auction

19 May Street, Derby DE22 3UQ

Guide Price: £55,000 plus

106
Live Stream Auction

Holmewood Industrial Estate Units, Stainsby Close, Holmewood S42 5UG

Guide Price: £575,000 plus

107
Live Stream Auction

Holmewood Business Park, Chesterfield Road, Holmewood S42 5US

Guide Price: £1,200,000 plus

108
Live Stream Auction

2 Longfield, Falmouth, Cornwall TR11 4SJ

Guide Price: £220,000 plus

Search Available
Online Auctions
Search online auction icon
Guide to
Buying at Auction
Buying guide icon
Guide to Selling
Your Property
Selling guide icon
Sign Up For
Auction Alerts
Alert icon