Lot
048
Auction Ends: 25/02/2026

1 Wellington Road South, Stockport, Cheshire, SK4 1AA

Property Details
Location
Description
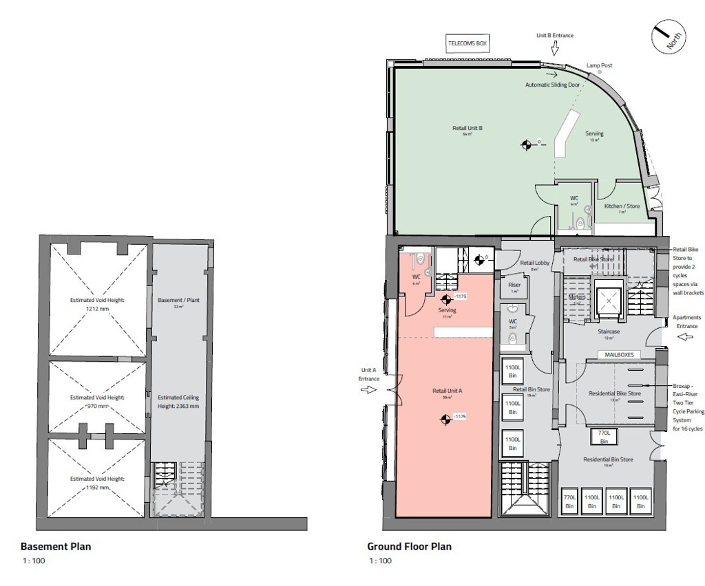
A redevelopment opportunity comprising a detached period brick building situated in a prime position in the centre of Stockport. The property presents as two storeys to the Wellington Road South frontage and four storeys on to Mersey Square, and benefits from planning consent for redevelopment to provide ground floor commercial accommodation with 14no. apartments to the upper floors.
Location
The property is located at the heart of Stockport, directly opposite the new Stockport Bus Interchange. At the rear of the property is Mersey Way Shopping Centre and Stockport Train Station is just 0.5 miles to the south. Stockport itself lies approximately 7 miles south of Manchester city centre, just south of the M60 orbital road.
Accommodation

The proposed development will provide the following accommodation:

DescriptionSq MSq Ft

Basement

Plant Room


32.00


344

Ground Floor

Retail Unit A

Retail Unit B



57.00

88.00

145.00


614

947

1,561

First Floor

Apartment 1

Apartment 2

Apartment 3

Apartment 4



53.00

40.00

59.00

51.00

203.00


570

431

635

549

2,185

Second Floor

Apartment 5

Apartment 6

Apartment 7

Apartment 8



54.00

43.00

60.00

51.00

208.00


581

463

646

549

2,239

Third Floor

Apartment 9

Apartment 10

Apartment 11

Apartment 12



54.00

43.00

60.00

51.00

208.00


581

463

646

549

2,239

Fourth Floor

Apartment 13

Apartment 14



40.00

47.00

87.00


431

506

937


883.009,505


Approx Site Area
Approximately 0.032 Hectares (0.08 Acres).
Tenure
We understand the property is held freehold under Title No. GM106413.
Planning
The property benefits from planning consent (DC/085262) for "Redevelopment of existing building, including partial demolition, to create a mixed-use commercial and residential scheme comprising of 14 apartments."

For any pre-application advice, interested parties should consult directly with the Local Planning Authority: Stockport Metropolitan Borough Council, Fred Perry House, Edward Street, Stockport, SK1 3UR. Email: Planning.DC@stockport.gov.uk / Searches.DC@stockport.gov.uk
Costs
Details of the Buyer's Premium and any additional fees payable are contained within the legal documents.
General
1. All the information provided on our website is for indicative purposes only and interested parties should refer to the contents of the legal pack and rely upon their own due diligence as a prudent bidder.

2. PLEASE NOTE BIDDING COMMENCES ON TUESDAY 24TH FEBRUARY AND CLOSES ON WEDNESDAY 25TH FEBRUARY.

3. Energy Performance Certificate = TBC.

Our Nearest Office

Manchesterresize 600x300

Manchester

Joint Agent

Fleurets
Contact: Tim Martin

You may also like

035

219-221 Stamford Street, Ashton-Under-Lyne, Greater Manchester, OL6 7QH

Auction Ends: 28/01/2026

Guide Price: £230,000 plus

068

17-21 & 23 Bridge Street, And 1-3 & 5-15 Castle Yard, Stockport, Cheshire, SK1 1XY

Auction Ends: 28/01/2026

Guide Price: £675,000 plus

070

1a Mowbray Street & 65 Middle Hillgate, Stockport, Cheshire, SK1 3EH

Auction Ends: 28/01/2026

Guide Price: £125,000 plus

090

118 George Street, Altrincham, Cheshire, WA14 1RF

Auction Ends: 28/01/2026

Guide Price: £550,000 plus

Search Available
Online Auctions
Search online auction icon
Guide to
Buying at Auction
Buying guide icon
Guide to Selling
Your Property
Selling guide icon
Sign Up For
Auction Alerts
Alert icon