Lot
041
Auction Ends: 28/01/2026 12:00 - Bidding opens Tuesday 27th January 10:00 AM

14/14a High Street, Wigton, Cumbria, CA7 9NJ

Property Details
Location
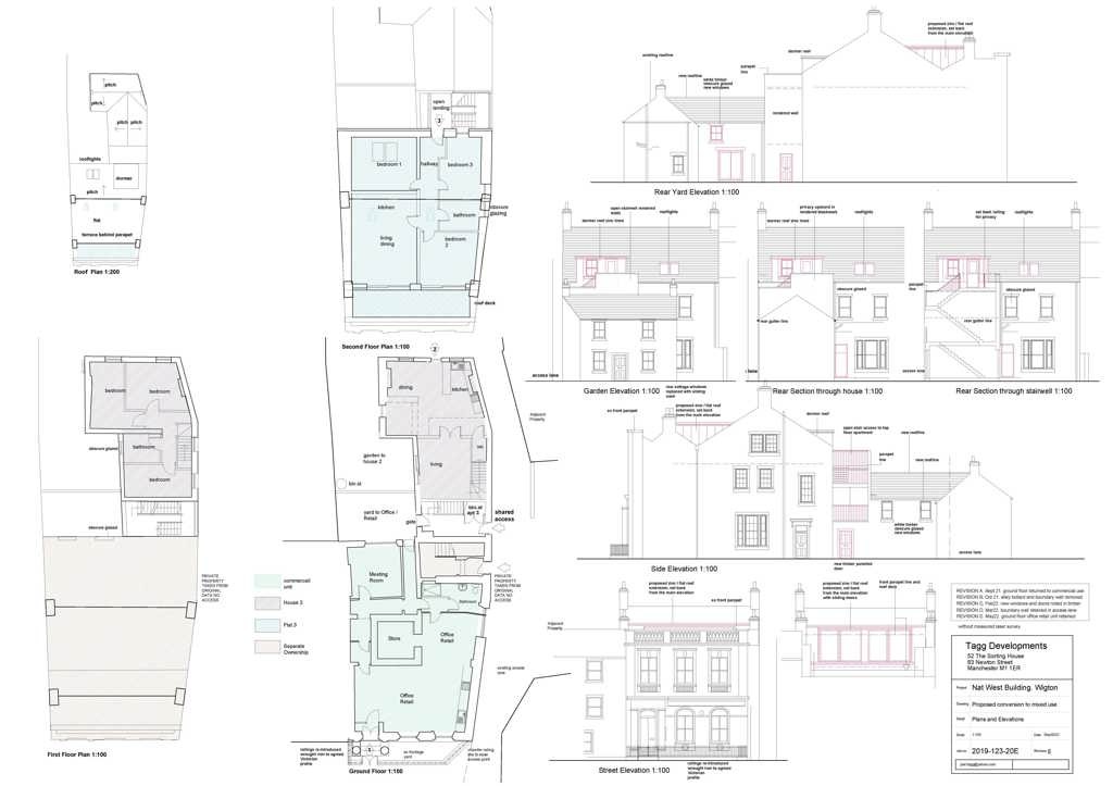
Description
A mixed use development opportunity comprising a semi detached building detailing a former banking premises on the ground floor and a four bedroom residential apartment on the first floor. The ground floor extends to approximately 145 Sq.M (1,560 Sq.Ft) and has recently expired planning permission to retain a commercial unit on the ground floor, develop the second floor into another three bedroom apartment, and conversion of the rear of the building into a detached three bedroom dwelling. A full copy of all the plans is included within the legal pack.

The property fronts High Street in Wigton which is a market town in Cumbria located approximately 15 miles south west of Carlisle and 8 miles from the Lake District National Park.
Accommodation
Ground Floor145 Sq.M
First FloorFour bedroom flat
Planning
Planning permission was approved (now expired) by Allerdale Borough Council on 6th June 2022 for the conversion of the former NatWest Bank to provide a ground floor commercial unit and conversion of the second floor into a residential apartment (via an external staircase) and the reinstatement of former cottage (resubmission of application FUL/2020/0051).

For any pre-application advice, interested parties should consult directly with the Local Planning Authority: Cumberland Council, Development Management, Market Hall, Market Place, Whitehaven, CA28 7JG. Telephone: 01946 598414. Email: Development.Control3@cumberland.gov.uk
Costs
Details of the Buyer's Premium and any additional fees payable are contained within the legal documents.
General
1. All the information provided on our website is for indicative purposes only and interested parties should refer to the contents of the legal pack and rely upon their own due diligence as a prudent bidder.

2. PLEASE NOTE BIDDING COMMENCES ON TUESDAY 27TH JANUARY AND CLOSES ON WEDNESDAY 28TH JANUARY.

3. Energy Performance Certificate: 14 =C & 14a = G

Our Nearest Office

Newcastle 600x300

Newcastle

You may also like

001

Former Kinsley Craft Workshop, Wakefield Road, Kinsley, Pontefract, West Yorkshire, WF9 5EH

Auction Ends: 28/01/2026

Guide Price: £70,000 plus

004

Land Adjacent To 137 Ruabon Road, Wrexham, Wrexham, LL13 7RB

Guide Price: £20,000

005

52 Church Street, Connah's Quay, Deeside, Flintshire, CH5 4AQ

Auction Ends: 28/01/2026

Guide Price: £125,000 plus

006

Flats 1-4, 47 Olivet Road, Woodseats, Sheffield, South Yorkshire, S8 8QR

Auction Ends: 28/01/2026

Guide Price: £200,000 plus

007

17 A,B & C Whitehall Court, Retford, Nottinghamshire, DN22 6JQ

Auction Ends: 28/01/2026

Guide Price: £195,000 plus

008

Unit 1 - 4, New York Cottages, Bangor Road, Penmaenmawr, Conwy, LL34 6NP

Auction Ends: 28/01/2026

Guide Price: £125,000

009

4 Ashworth House, Manchester Road, Burnley, Lancashire, BB11 1ER

Auction Ends: 28/01/2026

Guide Price: £35,000 plus

010

Calverley Library Building, Thornhill Street, Calverley, Pudsey, West Yorkshire, LS28 5PD

Auction Ends: 28/01/2026

Guide Price: £185,000 plus

Search Available
Online Auctions
Search online auction icon
Guide to
Buying at Auction
Buying guide icon
Guide to Selling
Your Property
Selling guide icon
Sign Up For
Auction Alerts
Alert icon