Lot
072
Auction Ends: 10/12/2025 - Bidding opens Tuesday 9th December 10:00 AM

40 Newbridge Lane, Stockport, Cheshire, SK1 2NA

Property Details
Location
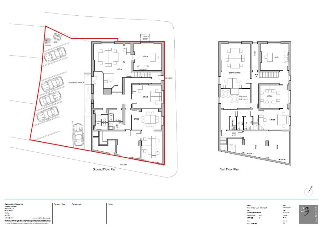
Description
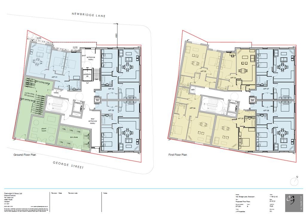
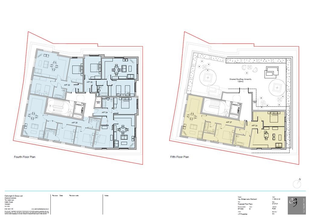
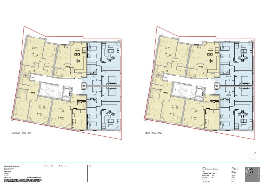
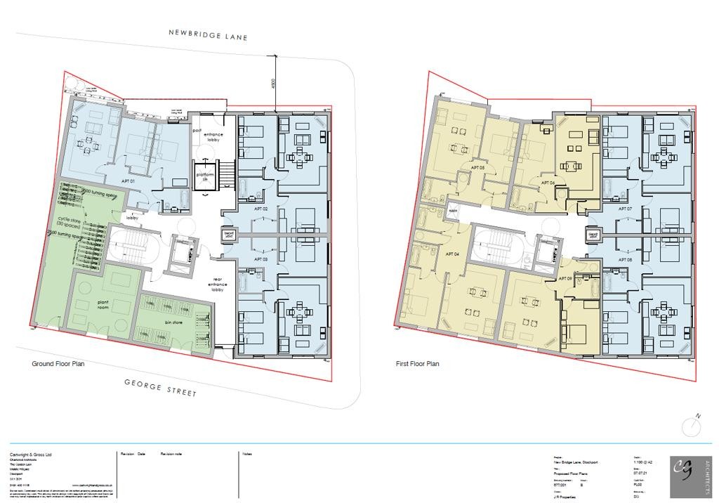
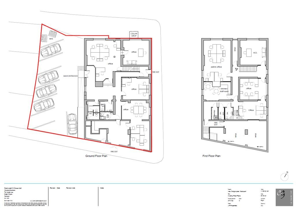
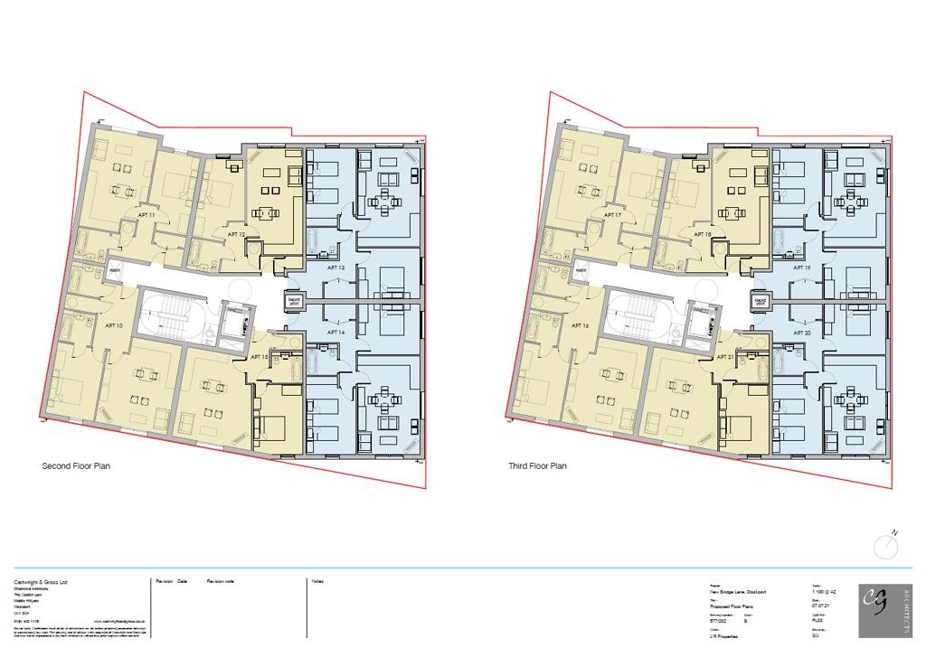
A prime residential re-development opportunity comprising an existing detached commercial premises with internal accommodation extending to approximately 690 Sq.M (7,427 Sq.Ft). The site measures approximately 0.11 acres and benefits from approved planning permission for the demolition of the current building and construction of a striking six storey block of 27 apartments. Under the current plans the new apartments would detail 14 x 2 bedroom units and 13 x 1 bedroom units with accommodation ranging from 51-60 Sq.M for 1 bedroom units and 67-76 Sq.M for 2 bedroom units totalling 1,662 Sq.M . A full copy of plans will be available within the legal pack.

The site fronts onto Newbridge Lane on the edge of Stockport and within the Town Centre East Regeneration framework which is set to deliver a number of new residential and commercial development projects in the coming years. A variety of amenities and facilities including national and independent retailers, supermarkets, cafe's, restaurants and Stockport Produce Hall & Market are within a 10 minute walk. Junction 27 of the M60 motorway network is within a short drive and provides access to Manchester City Centre and surrounding areas.
Accommodation

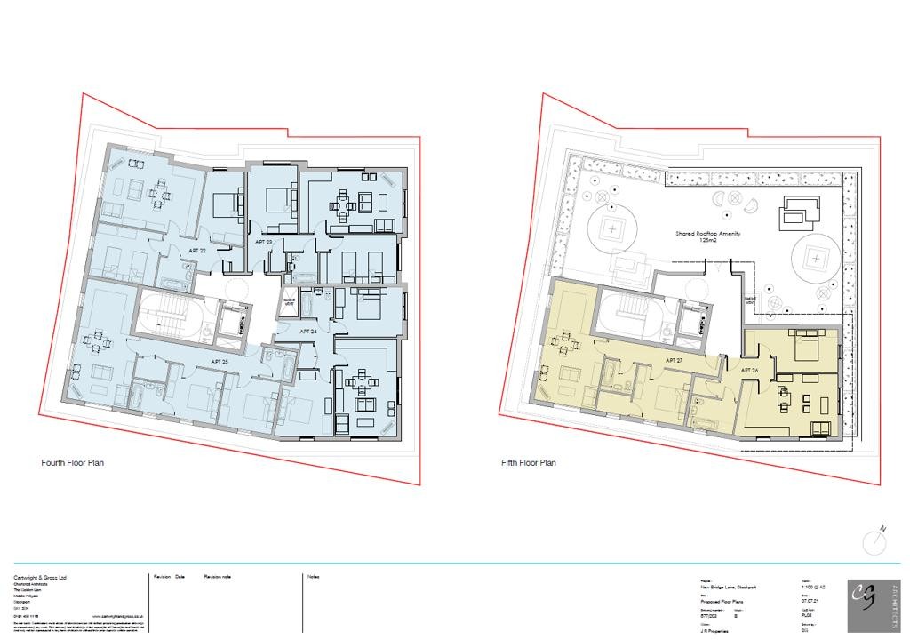
Under the current approved plans the newly built accommodation would comprise;

Ground Floor3 x 2 bed units
First Floor4 x 1 bed units & 2 x 2 bed units
Second Floor4 x 1 bed units & 2 x 2 bed units
Third Floor4 x 1 bed units & 2 x 2 bed units
Fourth Floor4 x 2 bed units 
Fifth Floor2 x 1 bed units

Approx Site Area
Approximately 474 Sq M (566 Sq Yds).
Planning
Full planning permission was approved by Stockport Council on 7th December 2022 for the demolition of the existing office building and erection of a six storey residential development comprising 27 flats along with associated landscaping and other works. Planning ref - DC/082482
Costs
Details of the Buyer's Premium and any additional fees payable are contained within the legal documents.
General
1. All the information provided on our website is for indicative purposes only and interested parties should refer to the contents of the legal pack and rely upon their own due diligence as a prudent bidder.

2. PLEASE NOTE BIDDING COMMENCES ON TUESDAY 9TH DECEMBER AND CLOSES ON WEDNESDAY 10TH DECEMBER.

3. Energy Performance Certificate = E

Our Nearest Office

Manchesterresize 600x300

Manchester

You may also like

063

164 Stretford Road, Hulme, Manchester, Greater Manchester, M15 5JH

Auction Ends: 10/12/2025

Guide Price: £72,000 plus

067

219-221 Stamford Street, Ashton-Under-Lyne, Greater Manchester, OL6 7QH

Auction Ends: 10/12/2025

Guide Price: £230,000 plus

068

118 George Street, Altrincham, Cheshire, WA14 1RF

Auction Ends: 10/12/2025

Guide Price: £575,000 plus

Search Available
Online Auctions
Search online auction icon
Guide to
Buying at Auction
Buying guide icon
Guide to Selling
Your Property
Selling guide icon
Sign Up For
Auction Alerts
Alert icon