Lot
070
Auction Ends: 10/12/2025 - Bidding opens Tuesday 9th December 10:00 AM

14/14a High Street, Wigton, Cumbria, CA7 9NJ

Property Details
Location
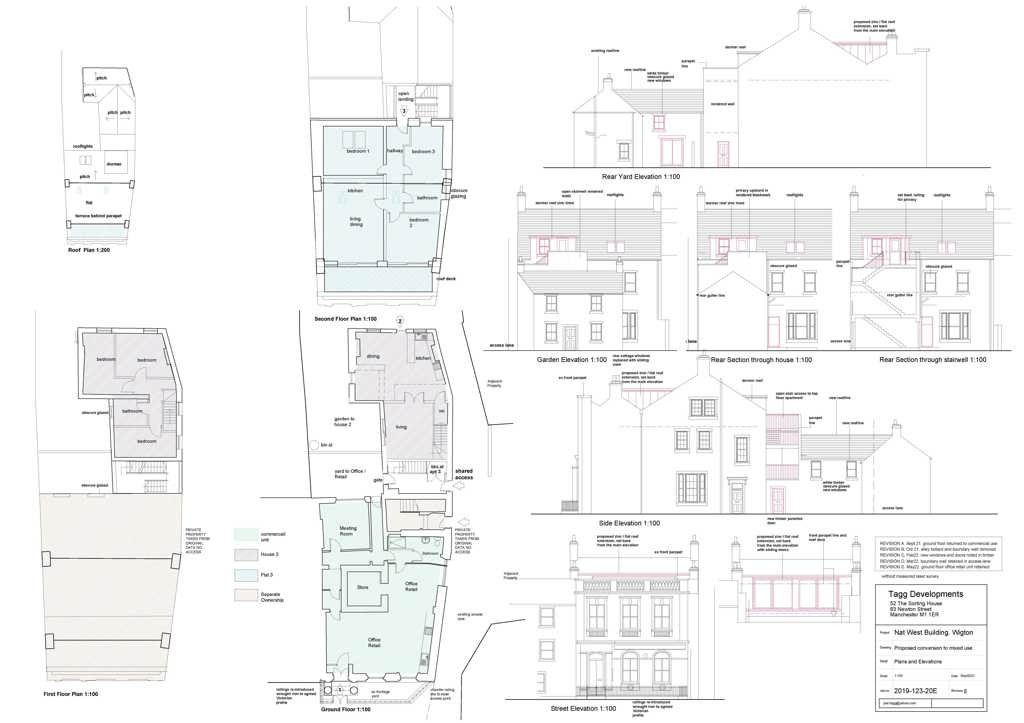
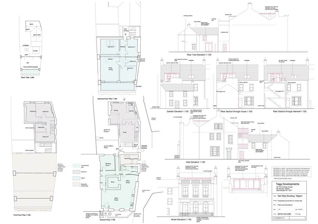
Description
A mixed use development opportunity comprising a semi detached building detailing a former banking premises on the ground floor and a four bedroom residential apartment on the first floor. The ground floor extends to approximately 145 Sq.M (1,560 Sq.Ft) and has recently expired planning permission to retain a commercial unit on the ground floor, develop the second floor into another three bedroom apartment, and conversion of the rear of the building into a detached three bedroom dwelling. A full copy of all the plans is included within the legal pack.

The property fronts High Street in Wigton which is a market town in Cumbria located approximately 15 miles south west of Carlisle and 8 miles from the Lake District National Park.
Accommodation
Ground Floor145 Sq.M
First FloorFour bedroom flat
Planning
Planning permission was approved (now expired) by Allerdale Borough Council on 6th June 2022 for the conversion of the former NatWest Bank to provide a ground floor commercial unit and conversion of the second floor into a residential apartment (via an external staircase) and the reinstatement of former cottage (resubmission of application FUL/2020/0051).

For any pre-application advice, interested parties should consult directly with the Local Planning Authority: Cumberland Council, Development Management, Market Hall, Market Place, Whitehaven, CA28 7JG. Telephone: 01946 598414. Email: Development.Control3@cumberland.gov.uk
Costs
Details of the Buyer's Premium and any additional fees payable are contained within the legal documents.
General
1. All the information provided on our website is for indicative purposes only and interested parties should refer to the contents of the legal pack and rely upon their own due diligence as a prudent bidder.

2. PLEASE NOTE BIDDING COMMENCES ON TUESDAY 9TH DECEMBER AND CLOSES ON WEDNESDAY 10TH DECEMBER.

3. Energy Performance Certificate: 14 =C & 14a = G

Our Nearest Office

Newcastle 600x300

Newcastle

You may also like

001

Unigraph House, 287 Pitsmoor Road, Sheffield, South Yorkshire, S3 9AS

Auction Ends: 10/12/2025

Guide Price: £275,000 plus

002

232 Holme Lane, Malin Bridge, Sheffield, South Yorkshire, S6 4JZ

Auction Ends: 10/12/2025

Guide Price: £70,000 plus

003

Crystal Palace, 21 Dalkeith Street, Barrow-In-Furness, Cumbria, LA14 1ST

Auction Ends: 10/12/2025

Guide Price: £325,000 plus

004

Wheatsheaf, 124 Hindpool Road, Barrow-In-Furness, Cumbria, LA14 1XZ

Auction Ends: 10/12/2025

Guide Price: £525,000 plus

005

Garage Site Adjacent To, 54 Cresswell Street, Pogmoor, Barnsley, South Yorkshire, S75 2DL

Auction Ends: 10/12/2025

Guide Price: £50,000 plus

006

Former Garage Site Off Crown Close, Worsbrough Common, Barnsley, South Yorkshire, S70 4DB

Auction Ends: 10/12/2025

Guide Price: £40,000 plus

007

Former Garage Site Off The Firs, Kendray, Barnsley, South Yorkshire, S70 3DF

Auction Ends: 10/12/2025

Guide Price: £30,000 plus

008

Land Adjacent To 113 Hoyland Road, Hoyland Common, Barnsley, South Yorkshire, S74 0AP

Auction Ends: 10/12/2025

Guide Price: £30,000 plus

Search Available
Online Auctions
Search online auction icon
Guide to
Buying at Auction
Buying guide icon
Guide to Selling
Your Property
Selling guide icon
Sign Up For
Auction Alerts
Alert icon