Lot
011
Auction Ends: 28/01/2026

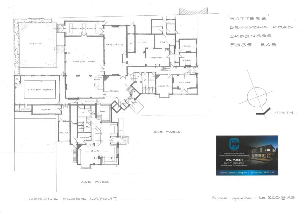
Hatters, Drummond Road, Skegness, Lincolnshire, PE25 3AB

Property Details
Location
Description
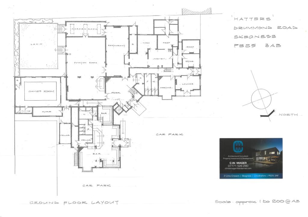
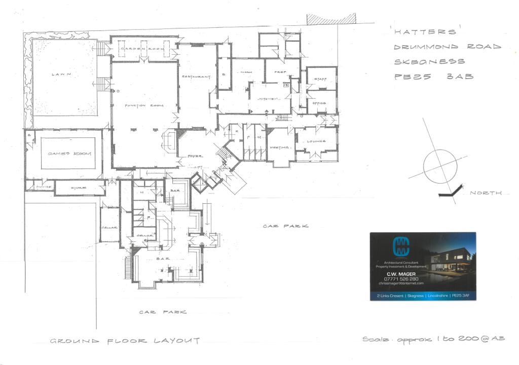
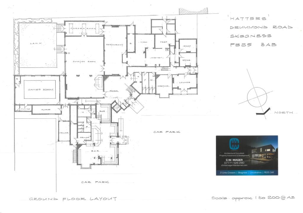
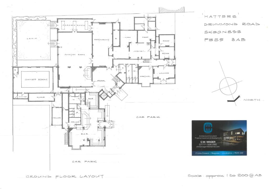
A residential development opportunity comprising an existing 29 bedroom hotel and guest house extending to approximately 2130SqM (22,927SqFt) on a site measuring circa 0.77 acres. The site benefits from recently approved outline planning permission to demolish the existing building and construct 8 residential dwellings in it's place. Alternatively, there is the opportunity for the hotel to be re-opened and details 29 en-suite bedrooms with various bars and restaurant.
The site is located immediately adjacent a UK top 100 golf course in a well established and popular residential location.

The site is situated on the corner of Drummond Road and Shardloes Road just a short walk from the town centre, beach front and Seacroft Golf Club. Skegness is a popular year round tourist destination located on the east coast offering a large array of amenities, facilities and coastal pursuits.
Approx Site Area
Approximately 0.77 Acres (0.31 Hectares)
Tenure
Freehold title number LL263374
Planning
Planning permission has been approved by East Lindsey district council for the demolition of the existing hotel and construction of 8 residential dwellings. Planning ref - 03162/25/OUT
Costs
Details of the Buyer's Premium and any additional fees payable are contained within the legal documents.
General
1. All the information provided on our website is for indicative purposes only and interested parties should refer to the contents of the legal pack and rely upon their own due diligence as a prudent bidder.

2. PLEASE NOTE BIDDING COMMENCES ON TUESDAY 27TH JANUARY AND CLOSES ON WEDNESDAY 28TH JANUARY.

3. Energy Performance Certificate = B

Our Nearest Office

Nottingham 600x300

Nottingham

You may also like

001

Unigraph House, 287 Pitsmoor Road, Sheffield, South Yorkshire, S3 9AS

Auction Ends: 10/12/2025

Guide Price: £275,000 plus

002

232 Holme Lane, Malin Bridge, Sheffield, South Yorkshire, S6 4JZ

Auction Ends: 10/12/2025

Guide Price: £70,000 plus

003

Crystal Palace, 21 Dalkeith Street, Barrow-In-Furness, Cumbria, LA14 1ST

Auction Ends: 10/12/2025

Guide Price: £325,000 plus

004

Wheatsheaf, 124 Hindpool Road, Barrow-In-Furness, Cumbria, LA14 1XZ

Auction Ends: 10/12/2025

Guide Price: £525,000 plus

005

Garage Site Adjacent To, 54 Cresswell Street, Pogmoor, Barnsley, South Yorkshire, S75 2DL

Auction Ends: 10/12/2025

Guide Price: £50,000 plus

006

Former Garage Site Off Crown Close, Worsbrough Common, Barnsley, South Yorkshire, S70 4DB

Auction Ends: 10/12/2025

Guide Price: £40,000 plus

007

Former Garage Site Off The Firs, Kendray, Barnsley, South Yorkshire, S70 3DF

Auction Ends: 10/12/2025

Guide Price: £30,000 plus

008

Land Adjacent To 113 Hoyland Road, Hoyland Common, Barnsley, South Yorkshire, S74 0AP

Auction Ends: 10/12/2025

Guide Price: £30,000 plus

Search Available
Online Auctions
Search online auction icon
Guide to
Buying at Auction
Buying guide icon
Guide to Selling
Your Property
Selling guide icon
Sign Up For
Auction Alerts
Alert icon