Lot
064
Auction Ends: 10/12/2025 - Bidding opens Tuesday 9th December 10:00 AM

2-6 Witton Street, Northwich, Cheshire, CW9 5AP

Property Details
Location
Description
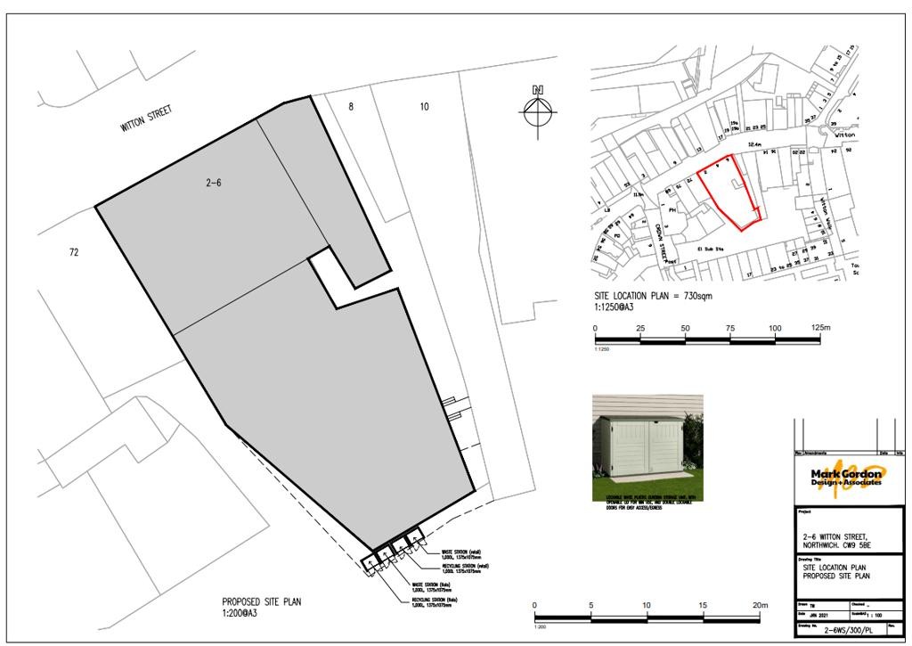
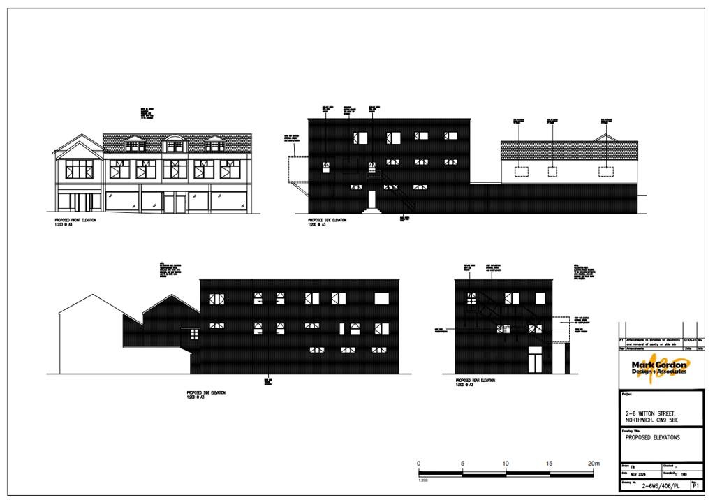
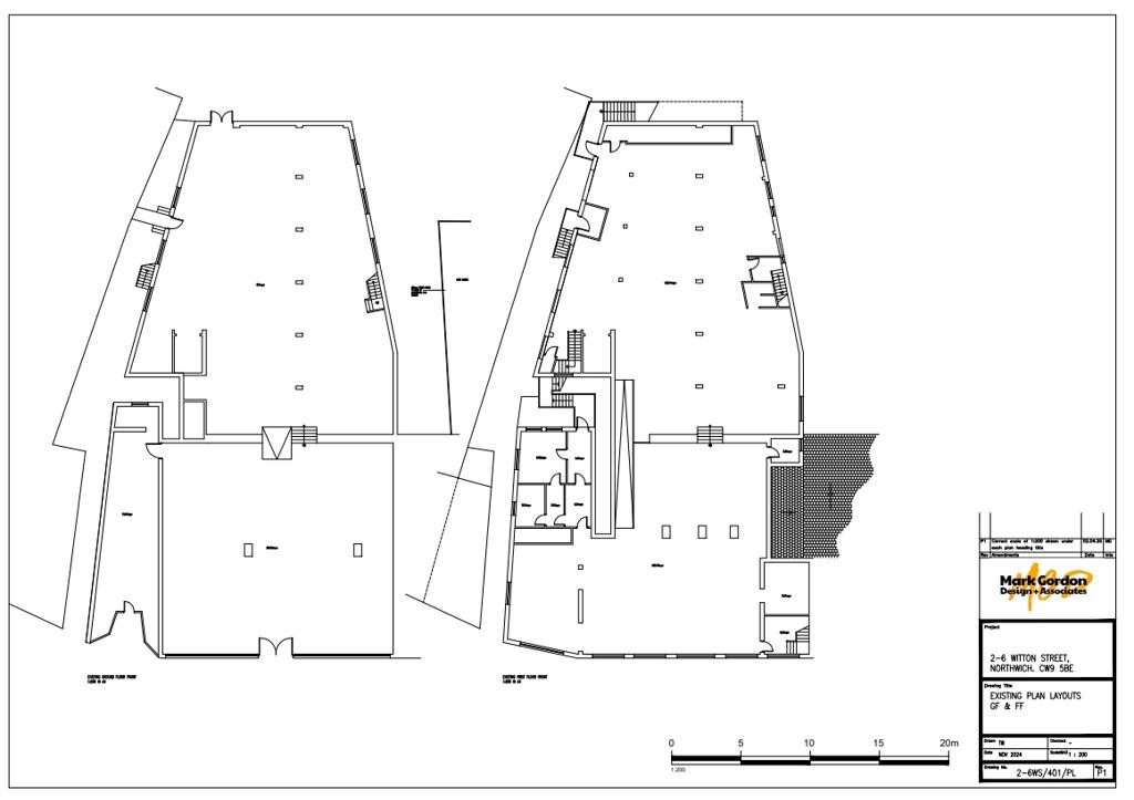
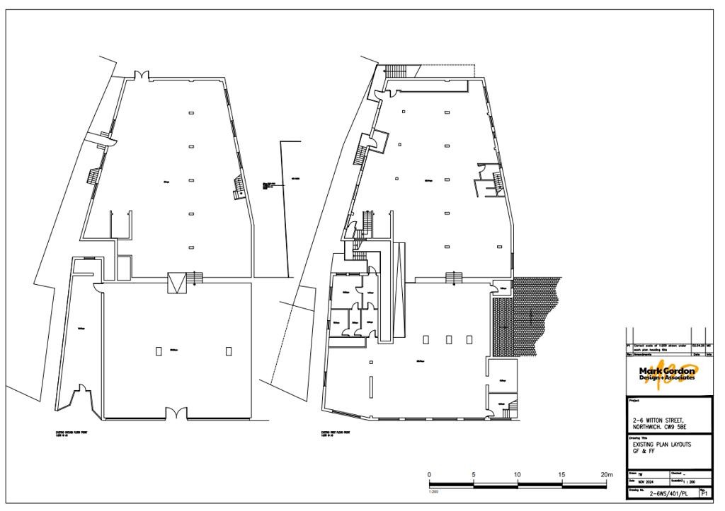
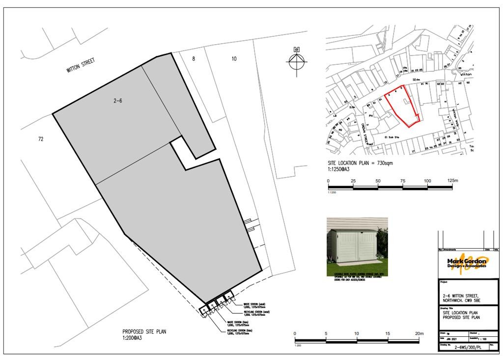
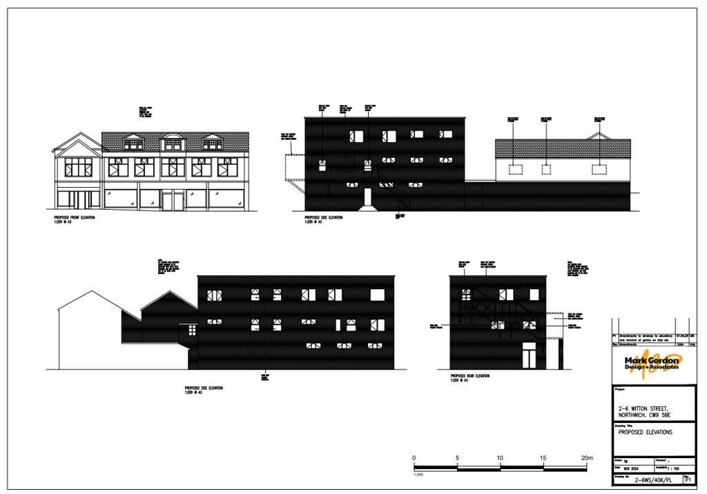
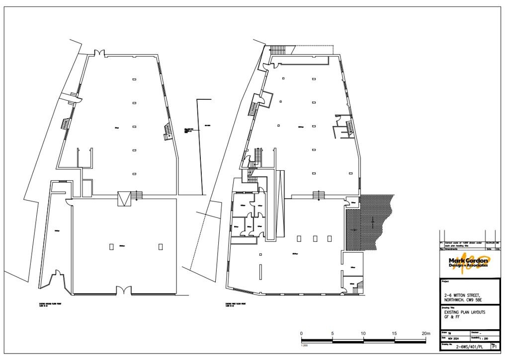
A substantial Town Centre retail unit extending to over 20,000 Sq.Ft (1,862 Sq.M) (source EPC) comprising the former Bratts department store. The vast accommodation is arranged over three floors and provides a potential redevelopment opportunity on the upper floors with a planning application currently live with the local authority to convert part of the property into 12 apartments. The property has recently undergone a rates valuation and now benefits from zero rates payable.

The property fronts onto Witton Street close to the new Baron's Quay leisure development in Northwich Town Centre. Nearby occupies include Holland & Barrett, Vision Express and Boots.
Approx Site Area
Approximatley 195 Sq M (233 Sq Yds).
Planning
A planning application was submitted to Cheshire West and Chester on 4th March 2025 for the conversion of part of ground floor and all upper floors to 12 apartments and a decision is pending, Planning ref - 25/00677/FUL
Costs
Details of the Buyer's Premium and any additional fees payable are contained within the legal documents.
General
1. All the information provided on our website is for indicative purposes only and interested parties should refer to the contents of the legal pack and rely upon their own due diligence as a prudent bidder.

2. PLEASE NOTE BIDDING COMMENCES ON TUESDAY 9TH DECEMBER AND CLOSES ON WEDNESDAY 10TH DECEMBER.

3. Energy Performance Certificate = C

4. The pre-authorisation of the bidding deposit for this lot is £5,000.

Our Nearest Office

Manchesterresize 600x300

Manchester

You may also like

001

Unigraph House, 287 Pitsmoor Road, Sheffield, South Yorkshire, S3 9AS

Auction Ends: 10/12/2025

Guide Price: £275,000 plus

002

232 Holme Lane, Malin Bridge, Sheffield, South Yorkshire, S6 4JZ

Auction Ends: 10/12/2025

Guide Price: £70,000 plus

003

Crystal Palace, 21 Dalkeith Street, Barrow-In-Furness, Cumbria, LA14 1ST

Auction Ends: 10/12/2025

Guide Price: £325,000 plus

004

Wheatsheaf, 124 Hindpool Road, Barrow-In-Furness, Cumbria, LA14 1XZ

Auction Ends: 10/12/2025

Guide Price: £525,000 plus

005

Garage Site Adjacent To, 54 Cresswell Street, Pogmoor, Barnsley, South Yorkshire, S75 2DL

Auction Ends: 10/12/2025

Guide Price: £50,000 plus

006

Former Garage Site Off Crown Close, Worsbrough Common, Barnsley, South Yorkshire, S70 4DB

Auction Ends: 10/12/2025

Guide Price: £40,000 plus

007

Former Garage Site Off The Firs, Kendray, Barnsley, South Yorkshire, S70 3DF

Auction Ends: 10/12/2025

Guide Price: £30,000 plus

008

Land Adjacent To 113 Hoyland Road, Hoyland Common, Barnsley, South Yorkshire, S74 0AP

Auction Ends: 10/12/2025

Guide Price: £30,000 plus

Search Available
Online Auctions
Search online auction icon
Guide to
Buying at Auction
Buying guide icon
Guide to Selling
Your Property
Selling guide icon
Sign Up For
Auction Alerts
Alert icon