Lot
046
Auction Ends: 10/12/2025 - Bidding opens Tuesday 9th December 10:00 AM

56 - 64 Willow Lane, Lancaster, Lancashire, LA1 5QF

Property Details
Location
Description
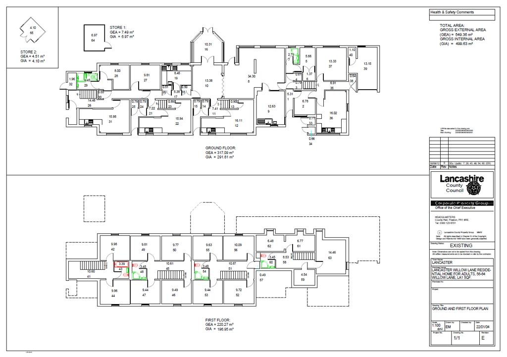
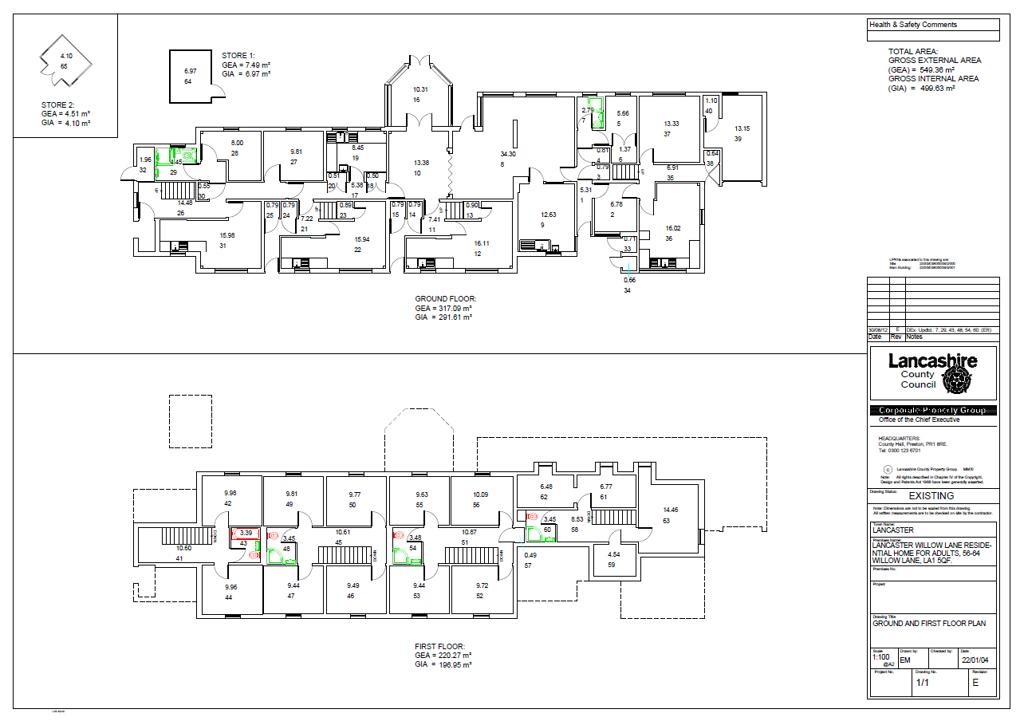
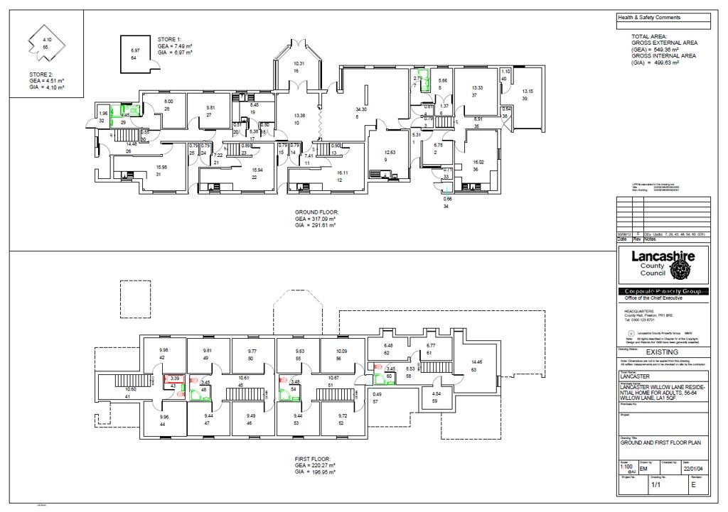
A freehold re-development opportunity comprising a row of 5 interlinked terrace style properties on a total site area of approximately 0.64 acres (0.26 hectares). The property was most recently used as an adult residential centre with approximately 15 bedrooms along with numerous kitchen and bathroom facilities and further ancillary accommodation. The accommodation, with is arranged over ground and first floors, extends to 499 Sq.M (5,317 Sq.Ft) and is in need of refurbishment. The property is offered with vacant possession and could be suitable for change of use and development, subject to any necessary consents.

The site benefits from a wide frontage onto Willow Lane on the corners of Europa Way and St Thomas Moor Walk in a predominantly residential area, 1.5 miles to the west of Lancaster City Centre.
Accommodation

Plans and measurements have been provided by the vendor and are approximate. As such purchasers are advised to rely solely upon their own inspections ;

Ground Floor291.61 Sq.M (GIA)
First Floor196.95 Sq.M (GIA)

Outside
There is a large, paved patio to rear and mainly lawned gardens to front side and rear. Off street surfaced parking can accommodate approximately 3 cars, in addition to the garage.
Approx Site Area
Approximately 0.26 hectares (0.64 acres)
Costs
Details of the Buyer's Premium and any additional fees payable are contained within the legal documents.
General
1. All the information provided on our website is for indicative purposes only and interested parties should refer to the contents of the legal pack and rely upon their own due diligence as a prudent bidder.

2. PLEASE NOTE BIDDING COMMENCES ON TUESDAY 9TH DECEMBER AND CLOSES ON WEDNESDAY 10TH DECEMBER.

3. Energy Performance Certificate = C

Our Nearest Office

Liverpool 600x300

Liverpool

You may also like

001

Unigraph House, 287 Pitsmoor Road, Sheffield, South Yorkshire, S3 9AS

Auction Ends: 10/12/2025

Guide Price: £275,000 plus

002

232 Holme Lane, Malin Bridge, Sheffield, South Yorkshire, S6 4JZ

Auction Ends: 10/12/2025

Guide Price: £70,000 plus

003

Crystal Palace, 21 Dalkeith Street, Barrow-In-Furness, Cumbria, LA14 1ST

Auction Ends: 10/12/2025

Guide Price: £325,000 plus

004

Wheatsheaf, 124 Hindpool Road, Barrow-In-Furness, Cumbria, LA14 1XZ

Auction Ends: 10/12/2025

Guide Price: £525,000 plus

005

Garage Site Adjacent To, 54 Cresswell Street, Pogmoor, Barnsley, South Yorkshire, S75 2DL

Auction Ends: 10/12/2025

Guide Price: £50,000 plus

006

Former Garage Site Off Crown Close, Worsbrough Common, Barnsley, South Yorkshire, S70 4DB

Auction Ends: 10/12/2025

Guide Price: £40,000 plus

007

Former Garage Site Off The Firs, Kendray, Barnsley, South Yorkshire, S70 3DF

Auction Ends: 10/12/2025

Guide Price: £30,000 plus

008

Land Adjacent To 113 Hoyland Road, Hoyland Common, Barnsley, South Yorkshire, S74 0AP

Auction Ends: 10/12/2025

Guide Price: £30,000 plus

Search Available
Online Auctions
Search online auction icon
Guide to
Buying at Auction
Buying guide icon
Guide to Selling
Your Property
Selling guide icon
Sign Up For
Auction Alerts
Alert icon