Lot
067
Auction Ends: 10/12/2025 - Bidding opens Tuesday 9th December 10:00 AM

219-221 Stamford Street, Ashton-Under-Lyne, Greater Manchester, OL6 7QH

Property Details
Location
Description
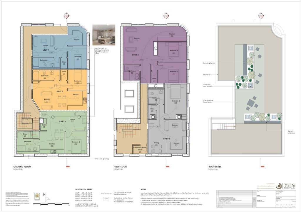
A residential development opportunity comprising a former HSBC Bank extending to 320 Sq.M (3,444 Sq.Ft) (source EPC) with approved planning permission for conversion into 5 self contained apartments with large basement and 4 car parking spaces. Internally the building has been stripped back and is ready for conversion works to commence. Under the current plans the converted accommodation would detail 3 x 1 bedroom apartments on the ground floor and and 1 x 1 bedroom and 1 x 2 bedroom apartments on the first floor. The sale represents an excellent opportunity for a local builder or developer looking for their next project.

The property fronts onto the corner of Stamford Street and Mill Lane in Ashton-Under-Lyne town centre. The immediate surrounding area is a mixture of residential, retail and office buildings with a variety of nearby amenities including Lidl and Asda Supermarkets.
Approx Site Area
Approximately 257 Sq M (307 Sq Yds)
Planning
Planning permission was approved by Tameside Council on 3rd July 2025 for the change of use from existing commercial use (HSBC Bank) to proposed 5no. apartments with associated works. Planning ref - 25/00371/FUL
Costs
Details of the Buyer's Premium and any additional fees payable are contained within the legal documents.
General
1. All the information provided on our website is for indicative purposes only and interested parties should refer to the contents of the legal pack and rely upon their own due diligence as a prudent bidder.

2. PLEASE NOTE BIDDING COMMENCES ON TUESDAY 9TH DECEMBER AND CLOSES ON WEDNESDAY 10TH DECEMBER.

3. Energy Performance Certificate = D

4. We understand from the vendor that the property has recently undergone a business rates deletion, and now benefits from zero rates payable.

Our Nearest Office

Manchesterresize 600x300

Manchester

You may also like

063

164 Stretford Road, Hulme, Manchester, Greater Manchester, M15 5JH

Auction Ends: 10/12/2025

Guide Price: £72,000 plus

072

40 Newbridge Lane, Stockport, Cheshire, SK1 2NA

Auction Ends: 10/12/2025

Guide Price: £385,000 plus

Search Available
Online Auctions
Search online auction icon
Guide to
Buying at Auction
Buying guide icon
Guide to Selling
Your Property
Selling guide icon
Sign Up For
Auction Alerts
Alert icon