Lot
057
Auction Ends: 10/12/2025 - Bidding opens Tuesday 9th December 10:00 AM

30 Wheatley Street, Denaby Main, Doncaster, South Yorkshire, DN12 4AU

Property Details
Location
Description
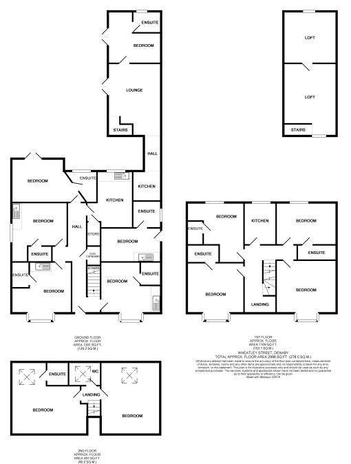
A substantial detached property of approx. 2,998 Sq Ft (2.78 Sq M) currently arranged as 10 studio / bedsit apartments and a 2 bedroom duplex apartments, arranged over three floors and requiring a full scheme of general modernisation and refurbishment throughout. The property could also provide potential for conversion to six larger self contained flats (subject to planning permission). Currently, each flat has its own open plan studio space, en-suite shower room and kitchenette as well as having two further communal Kitchens in the building. Outside, there is ample off street parking at the front and rear of the building.
Accommodation

GROUND FLOOR

Studio Apartment 1Open Plan Studio/ Kitchenette, En-Suite Bathroom
Studio Apartment 2Open Plan Studio/ Kitchenette, En-Suite Bathroom
Studio Apartment 3Open Plan Studio/ Kitchenette, En-Suite Bathroom
Studio Apartment 4Open Plan Studio/ Kitchenette, En-Suite Bathroom
Studio Apartment 5 Open Plan Studio/ Kitchenette, En-Suite Bathroom
2 Bedroom Duplex Apartment Hall, Lounge / Dining Room, Kitchen, Bedroom One. En-Suite Bathroom

FIRST FLOOR

Studio Apartment 6Open Plan Studio/ Kitchenette, En-Suite Bathroom
Studio Apartment 7Open Plan Studio/ Kitchenette, En-Suite Bathroom
Studio Apartment 8Open Plan Studio/ Kitchenette, En-Suite Bathroom
Studio Apartment 9Open Plan Studio/ Kitchenette, En-Suite Bathroom
2 Bedroom Duplex Apartment Bedroom Two, Room


SECOND FLOOR 

Studio Apartment 10Open Plan Studio/ Kitchenette, En-Suite Bathroom
Studio Apartment 11Open Plan Studio/ Kitchenette, En-Suite Bathroom


Outside
The property has hardstanding / off street parking to the front and rear of the building.
Approx Site Area
Approximately 499 Sq M (597 Sq Yds).
Costs
Details of the Buyer's Premium and any additional fees payable are contained within the legal documents.
General
1. All the information provided on our website is for indicative purposes only and interested parties should refer to the contents of the legal pack and rely upon their own due diligence as a prudent bidder.

2. PLEASE NOTE BIDDING COMMENCES ON TUESDAY 9TH DECEMBER AND CLOSES ON WEDNESDAY 10TH DECEMBER.

3. Energy Performance Certificate = G.

Our Nearest Office

Sheffield 600x300

Sheffield

You may also like

006

Former Garage Site Off Crown Close, Worsbrough Common, Barnsley, South Yorkshire, S70 4DB

Auction Ends: 10/12/2025

Guide Price: £40,000 plus

007

Former Garage Site Off The Firs, Kendray, Barnsley, South Yorkshire, S70 3DF

Auction Ends: 10/12/2025

Guide Price: £30,000 plus

008

Land Adjacent To 113 Hoyland Road, Hoyland Common, Barnsley, South Yorkshire, S74 0AP

Auction Ends: 10/12/2025

Guide Price: £30,000 plus

009

Land Between Dillington Square And Peel Street, Worsbrough Common, Barnsley, South Yorkshire, S70 4DU

Auction Ends: 10/12/2025

Guide Price: £30,000 plus

010

170 High Street, Worsbrough, Barnsley, South Yorkshire, S70 4SG

Auction Ends: 10/12/2025

Guide Price: £25,000 plus

011

172 High Street, Worsbrough, Barnsley, South Yorkshire, S70 4SG

Auction Ends: 10/12/2025

Guide Price: £25,000 plus

012

Former Day Care Centre , Littlefield Lane, Wombwell, Barnsley, South Yorkshire, S73 8DF

Auction Ends: 10/12/2025

Guide Price: £125,000 plus

014

Highfield Road Garage Site, Darfield, Barnsley, South Yorkshire, S73 9BA

Auction Ends: 10/12/2025

Guide Price: £30,000 plus

015

Former Church Premises, Greenhead Lane, Chapeltown, Sheffield, South Yorkshire, S35 2TN

Auction Ends: 10/12/2025

Guide Price: £225,000

026

9 Lords Head Lane, Warmsworth, Doncaster, South Yorkshire, DN4 9LP

Auction Ends: 10/12/2025

Guide Price: £75,000 plus

040

15 Mount Pleasant Road, Rotherham, South Yorkshire, S61 1SB

Auction Ends: 10/12/2025

Guide Price: £49,000 plus

044

1A Wellgate, Rotherham, South Yorkshire, S60 2LT

Auction Ends: 10/12/2025

Guide Price: £87,000 plus

055

105a & 107 Bellhouse Road, Sheffield, South Yorkshire, S5 6HP

Auction Ends: 10/12/2025

Guide Price: £195,000 plus

Search Available
Online Auctions
Search online auction icon
Guide to
Buying at Auction
Buying guide icon
Guide to Selling
Your Property
Selling guide icon
Sign Up For
Auction Alerts
Alert icon