Lot
035
Auction Ends: 10/12/2025 - Bidding opens Tuesday 9th December 10:00 AM

65 Hollinbank Lane, Heckmondwike, West Yorkshire, WF16 9NW

Property Details
Location
Description
An opportunity to purchase a spacious three-bedroom detached property occupying a corner plot with ample off-street parking together with a range of outbuildings and stables that offer the potential for further development, subject to obtaining the necessary consents. The property is conveniently located for easy access into Heckmondwike and Batley town centres and benefits from double glazed windows, gas central heating, detached double garage and attractive gardens.
Location
The property is situated at the junction of Hollinbank Lane and Thackray Avenue, in an established residential area, less than 1 mile from Heckmondwike town centre and approximately 1.5 miles from Batley. Junction 27 of the M62 is approximately 3 miles to the north.
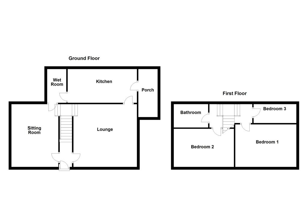
Accommodation


Ground Floor:Entrance Hall, Living Room, Sitting Room, Shower Room, Kitchen, Lean-to Porch
First Floor:3 Bedrooms, Bathroom

Outside
The property occupies a corner plot with gardens to front and side. To the rear of the property is a detached double garage with the yard area providing a further range of out buildings and stables together with access to an under-house storage area. To the side of the property is an additional garage and parking space.
Approx Site Area
Approximately 0.06 Hectares (0.15 Acres).
Tenure
We understand the property is held freehold under Title No's YY49245 and WYK3359.
Planning
For any pre-application advice, interested parties should consult directly with the Local Planning Authority: Kirklees Council, Princess Street, Huddersfield, HD1 2TT. Telephone: 01484 221 000. Email: local.development@kirklees.gov.uk
Costs
Details of the Buyer's Premium and any additional fees payable are contained within the legal documents.
General
1. All the information provided on our website is for indicative purposes only and interested parties should refer to the contents of the legal pack and rely upon their own due diligence as a prudent bidder.

2. PLEASE NOTE BIDDING COMMENCES ON TUESDAY 9TH DECEMBER AND CLOSES ON WEDNESDAY 10TH DECEMBER.

3. The property is listed with a Council Tax assessment in Band C.

4. Energy Performance Certificate = TBC.

Our Nearest Office

Leeds 600x300

Leeds

Joint Agent

Contact: Mark Watson

You may also like

013

St. Anns Mills, Commercial Road, Leeds, West Yorkshire, LS5 3AE

Auction Ends: 10/12/2025

Guide Price: £250,000 plus

018

Land Adjacent To 11 Pit Field Road, Carlton, Wakefield, West Yorkshire, WF3 3QZ

Auction Ends: 10/12/2025

Guide Price: £70,000 plus

020

The Children's Place, Netherfield Road, Ravensthorpe, Dewsbury, West Yorkshire, WF13 3JY

Auction Ends: 10/12/2025

Guide Price: £200,000 plus

023

34 Great Horton Road/Randall Well Street, Bradford, West Yorkshire, BD7 1AL

Auction Ends: 10/12/2025

Guide Price: £140,000 plus

051

Car Park North Of Pine Street, Bradford, West Yorkshire, BD1 4EY

Auction Ends: 10/12/2025

Guide Price: £60,000 plus

052

Car Park South Of Pine Street, Bradford, West Yorkshire, BD1 4EY

Auction Ends: 10/12/2025

Guide Price: £100,000 plus

010

Calverley Library Building, Thornhill Street, Calverley, Pudsey, West Yorkshire, LS28 5PD

Auction Ends: 28/01/2026

Guide Price: £185,000 plus

012

10 Tower Mews, Tower Lane, Leeds, West Yorkshire, LS12 3SA

Auction Ends: 28/01/2026

Guide Price: £35,000

013

Development Opportunity At 213a Bradford Road, East Ardsley, Wakefield, West Yorkshire, WF3 2DL

Auction Ends: 28/01/2026

Guide Price: £150,000 plus

016

Edgerton Cemetery Lodge, Cemetery Road, Edgerton, Huddersfield, West Yorkshire, HD1 5NF

Auction Ends: 28/01/2026

Guide Price: £150,000 plus

Search Available
Online Auctions
Search online auction icon
Guide to
Buying at Auction
Buying guide icon
Guide to Selling
Your Property
Selling guide icon
Sign Up For
Auction Alerts
Alert icon