Lot
013
Auction Ends: 26/11/2025 10:36 - Bidding opens Tuesday 25th November 10:00 AM

14/14a High Street, Wigton, Cumbria, CA7 9NJ

Property Details
Location
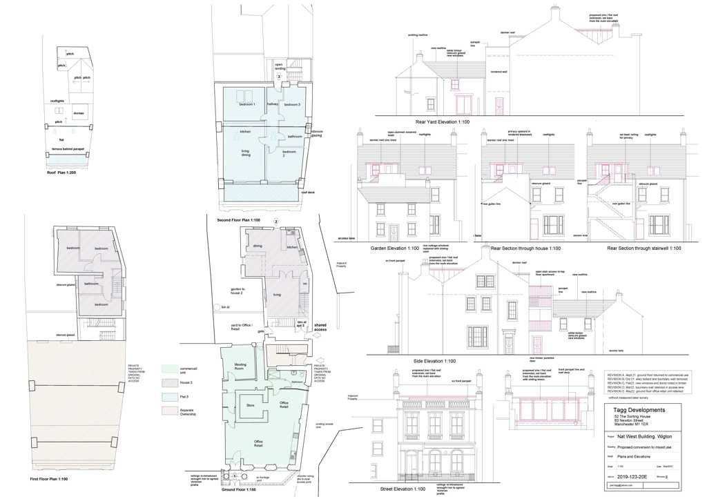
Description
A mixed use development opportunity comprising a semi detached building detailing a former banking premises on the ground floor and a four bedroom residential apartment on the first floor. The ground floor extends to approximately 145 Sq.M (1,560 Sq.Ft) and has recently expired planning permission to retain a commercial unit on the ground floor, develop the second floor into another three bedroom apartment, and conversion of the rear of the building into a detached three bedroom dwelling. A full copy of all the plans is included within the legal pack.

The property fronts High Street in Wigton which is a market town in Cumbria located approximately 15 miles south west of Carlisle and 8 miles from the Lake District National Park.
Accommodation
Ground Floor145 Sq.M
First FloorFour bedroom flat
Planning
Planning permission was approved (now expired) by Allerdale Borough Council on 6th June 2022 for the conversion of the former NatWest Bank to provide a ground floor commercial unit and conversion of the second floor into a residential apartment (via an external staircase) and the reinstatement of former cottage (resubmission of application FUL/2020/0051).

For any pre-application advice, interested parties should consult directly with the Local Planning Authority: Cumberland Council, Development Management, Market Hall, Market Place, Whitehaven, CA28 7JG. Telephone: 01946 598414. Email: Development.Control3@cumberland.gov.uk
Costs
Details of the Buyer's Premium and any additional fees payable are contained within the legal documents.
General
1. All the information provided on our website is for indicative purposes only and interested parties should refer to the contents of the legal pack and rely upon their own due diligence as a prudent bidder.

2. PLEASE NOTE BIDDING COMMENCES ON TUESDAY 25TH NOVEMBER AND CLOSES ON WEDNESDAY 26TH NOVEMBER.

3. Energy Performance Certificate: 14 =C & 14a = G

Our Nearest Office

Newcastle 600x300

Newcastle

You may also like

000

9 Towngate, Great Harwood, Blackburn, Lancashire, BB6 7NE

Guide Price: £140,000 plus

001

The Maltings, Flaxley Road, Selby, North Yorkshire, YO8 4BG

Auction Ends: 26/11/2025

Guide Price: £1,250,000 plus

002

Ground Floor, 22 Cavendish Street, Chesterfield, Derbyshire, S40 1UY

Auction Ends: 26/11/2025

Guide Price: £95,000 plus

003

Land At Ashfield Road, Burnley, Lancashire, BB11 1BS

Auction Ends: 26/11/2025

Guide Price: £40,000 plus

004

7 Yorke Street, Burnley, Lancashire, BB11 1HD

Auction Ends: 26/11/2025

Guide Price: £178,000 plus

005

54 Lancaster Road, Carnforth, Lancashire, LA5 9LD

Auction Ends: 26/11/2025

Guide Price: £110,000 plus

006

Car Park North Of Pine Street, Bradford, West Yorkshire, BD1 4EY

Auction Ends: 26/11/2025

Guide Price: £60,000 plus

007

Car Park South Of Pine Street, Bradford, West Yorkshire, BD1 4EY

Auction Ends: 26/11/2025

Guide Price: £100,000 plus

Search Available
Online Auctions
Search online auction icon
Guide to
Buying at Auction
Buying guide icon
Guide to Selling
Your Property
Selling guide icon
Sign Up For
Auction Alerts
Alert icon