Lot
001
Auction Ends: 10/12/2025 - Bidding opens Tuesday 9th December 10:00 AM

Unigraph House, 287 Pitsmoor Road, Sheffield, South Yorkshire, S3 9AS

Property Details
Location
Description
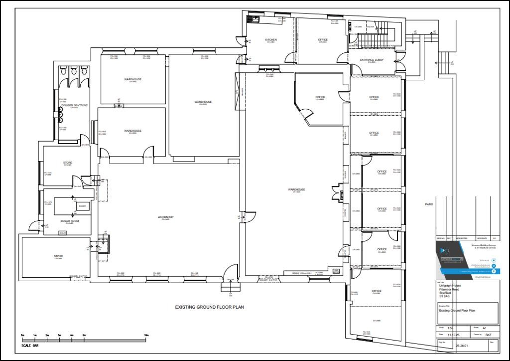
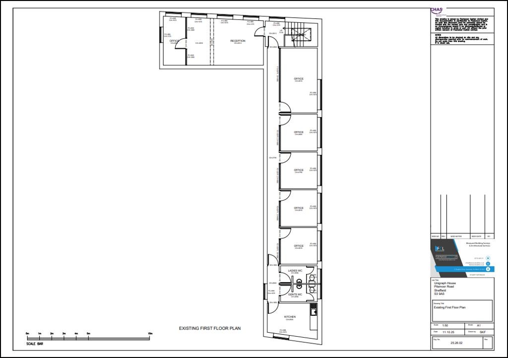
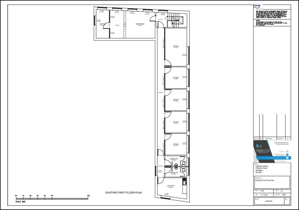
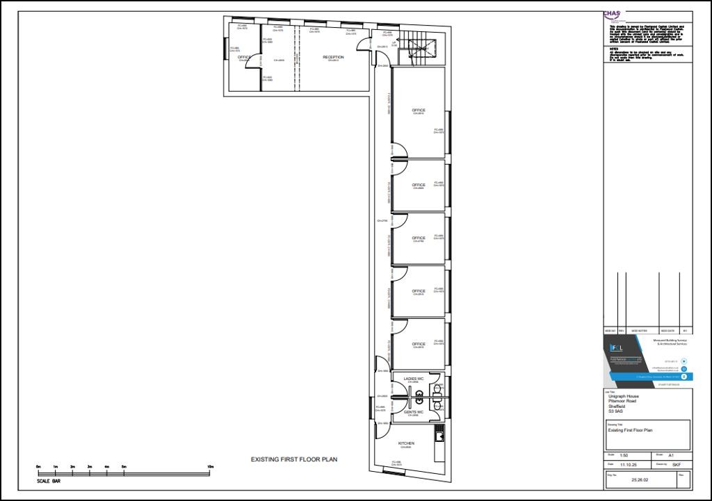
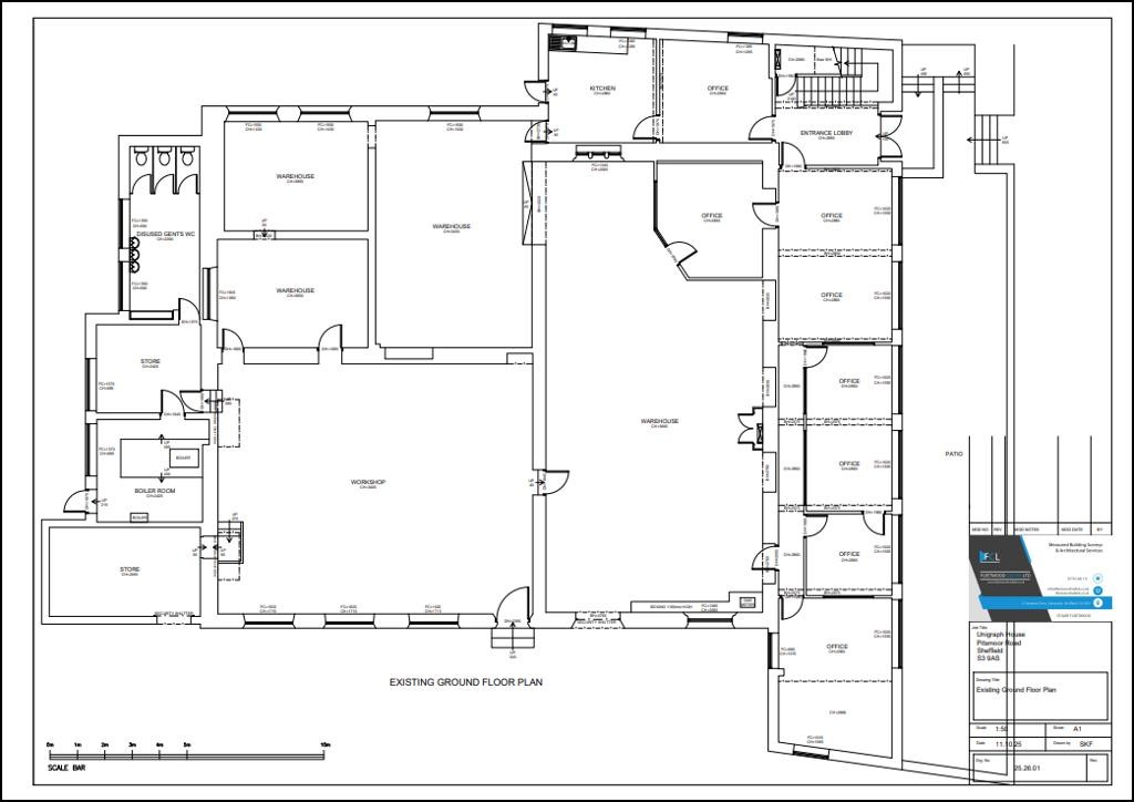
A substantial mixed use building forming a familiar sight in the heart of this long established area of Sheffield, just off the A6135 - one of the main arterial routes into Sheffield from the north of the city, close to Abbeyfield Park and the Northern General Hospital. The property occupies a freehold site of just over 0.20 acre and comprises an older stone building offering 323 Sq.M (3,475 Sq.M) of warehouse accommodation together with more recent office accommodation comprising 201 Sq.M (2,162 Sqft) over two levels. Considerable potential is offered to continue its current use and interested parties may wish to consider conversion or redevelopment options, subject to the appropriate consents.
Accommodation
Ground FloorWarehouse Storage323 Sq.M

Offices 99 Sq.M
First FloorOffices102 Sq.M



TOTAL
524 Sq.M (5,638 sqft) 
Approx Site Area
Approx site area 880 Sq M (0.217 Acre).
Planning
For any pre-application advice, interested parties should consult directly with the Local Planning Authority: Sheffield City Council, Howden House, 1 Union Street, Sheffield, S1 2SH. Telephone: 0114 203 9183.
Costs
Details of the Buyer's Premium and any additional fees payable are contained within the legal documents.
General
1. All the information provided on our website is for indicative purposes only and interested parties should refer to the contents of the legal pack and rely upon their own due diligence as a prudent bidder.

2. PLEASE NOTE BIDDING COMMENCES ON TUESDAY 9TH DECEMBER AND CLOSES ON WEDNESDAY 10TH DECEMBER.

3. Energy Performance Certificate = G.
Addendum
The completion date is set as the 2nd February 2026.

Our Nearest Office

Sheffield 600x300

Sheffield

You may also like

002

232 Holme Lane, Malin Bridge, Sheffield, South Yorkshire, S6 4JZ

Auction Ends: 10/12/2025

Guide Price: £70,000 plus

010

170 High Street, Worsbrough, Barnsley, South Yorkshire, S70 4SG

Auction Ends: 10/12/2025

Guide Price: £25,000 plus

011

172 High Street, Worsbrough, Barnsley, South Yorkshire, S70 4SG

Auction Ends: 10/12/2025

Guide Price: £25,000 plus

012

Former Day Care Centre , Littlefield Lane, Wombwell, Barnsley, South Yorkshire, S73 8DF

Auction Ends: 10/12/2025

Guide Price: £125,000 plus

015

Former Church Premises, Greenhead Lane, Chapeltown, Sheffield, South Yorkshire, S35 2TN

Auction Ends: 10/12/2025

Guide Price: £225,000

044

1A Wellgate, Rotherham, South Yorkshire, S60 2LT

Auction Ends: 10/12/2025

Guide Price: £87,000 plus

045

Vestry Hall, 1A Tannery Street, Woodhouse, Sheffield, South Yorkshire, S13 7JW

Auction Ends: 10/12/2025

Guide Price: £75,000 plus

050

46 Daniel Hill, Sheffield, South Yorkshire, S6 3JF

Auction Ends: 10/12/2025

Guide Price: £120,000 plus

055

105a & 107 Bellhouse Road, Sheffield, South Yorkshire, S5 6HP

Auction Ends: 10/12/2025

Guide Price: £195,000 plus

015

69 Leppings Lane, Hillsborough, Sheffield, South Yorkshire, S6 1SS

Auction Ends: 28/01/2026

Guide Price: £175,000 plus

Search Available
Online Auctions
Search online auction icon
Guide to
Buying at Auction
Buying guide icon
Guide to Selling
Your Property
Selling guide icon
Sign Up For
Auction Alerts
Alert icon