Lot
010
Auction Ends: 26/11/2025 10:27 - Bidding opens Tuesday 25th November 10:00 AM

2 Alma Parade, Scarborough, North Yorkshire, YO11 1SJ

Property Details
Location
Description
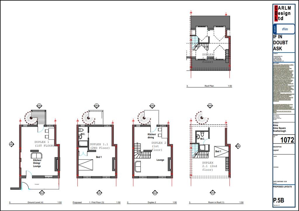
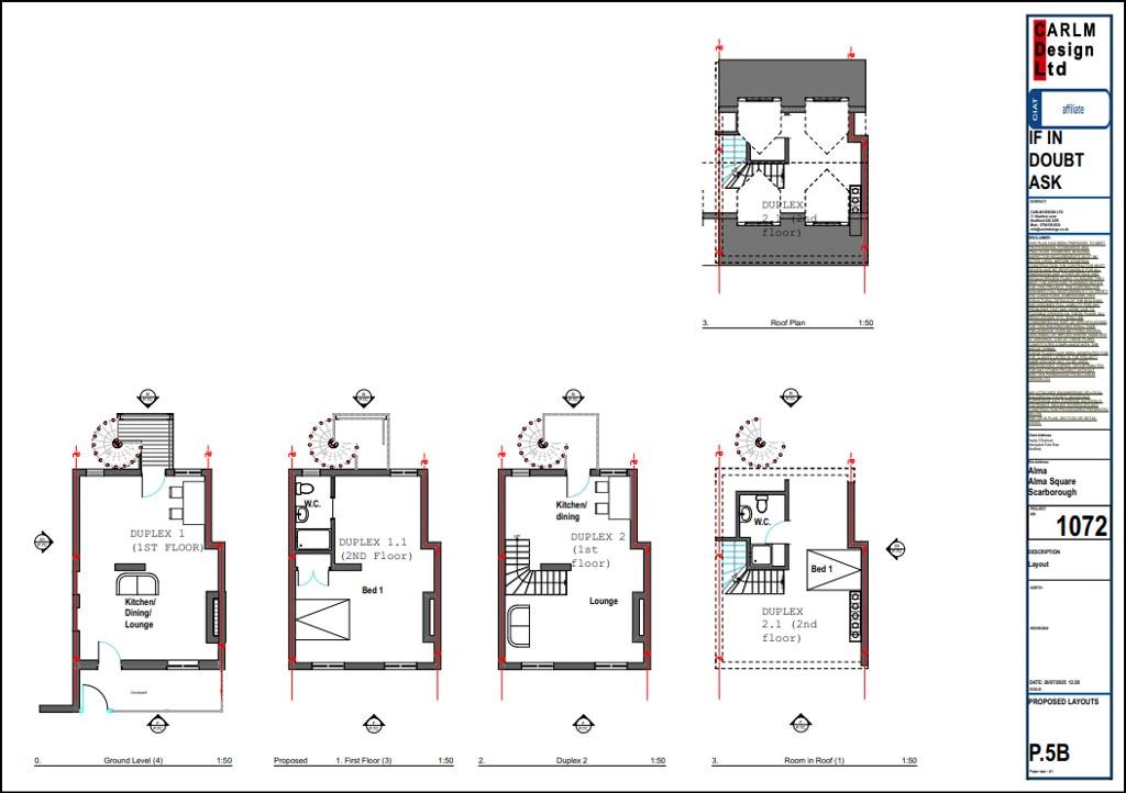
WITH FULLPLANNING FOR 2 FLATS - A substantial three storey inner terrace property, formerly part of a public house located a short walk form the seafront in the popular North Yorkshire town of Scarborough. The accommodation requires a comprehensive scheme of refurbishment and benefits from full planning for the creation of two flats with new dormer windows and staircase to the rear.
Accommodation

Proposed Accommodation 


Duplex 1
Ground FloorOpen plan Lounge/Diner/Kitchen
First FloorBedroom & Shower room/WC


Duplex 2
Second FloorOpen Plan Lounge/Diner/Kitchen 
Third Floor DormerBedroom & Shower Room/WC


Planning
Full planning permission was granted by North Yorkshire Council on the 31st march 2025 for the conversion into 2 flats (C3) , the formation of dormer windows to the front and rear, erection of a staircase and replacement windows. Ref ZF25/00447/FL
Costs
Details of the Buyer's Premium and any additional fees payable are contained within the legal documents.
General
1. All the information provided on our website is for indicative purposes only and interested parties should refer to the contents of the legal pack and rely upon their own due diligence as a prudent bidder.

2. PLEASE NOTE BIDDING COMMENCES ON TUESDAY 28TH OCTOBER AND CLOSES ON WEDNESDAY 29TH OCTOBER.

3. Energy Performance Certificate = E.

Our Nearest Office

Leeds 600x300

Leeds

You may also like

000

9 Towngate, Great Harwood, Blackburn, Lancashire, BB6 7NE

Guide Price: £140,000 plus

001

The Maltings, Flaxley Road, Selby, North Yorkshire, YO8 4BG

Auction Ends: 26/11/2025

Guide Price: £1,250,000 plus

002

Ground Floor, 22 Cavendish Street, Chesterfield, Derbyshire, S40 1UY

Auction Ends: 26/11/2025

Guide Price: £95,000 plus

003

Land At Ashfield Road, Burnley, Lancashire, BB11 1BS

Auction Ends: 26/11/2025

Guide Price: £40,000 plus

004

7 Yorke Street, Burnley, Lancashire, BB11 1HD

Auction Ends: 26/11/2025

Guide Price: £178,000 plus

005

54 Lancaster Road, Carnforth, Lancashire, LA5 9LD

Auction Ends: 26/11/2025

Guide Price: £110,000 plus

006

Car Park North Of Pine Street, Bradford, West Yorkshire, BD1 4EY

Auction Ends: 26/11/2025

Guide Price: £60,000 plus

007

Car Park South Of Pine Street, Bradford, West Yorkshire, BD1 4EY

Auction Ends: 26/11/2025

Guide Price: £100,000 plus

Search Available
Online Auctions
Search online auction icon
Guide to
Buying at Auction
Buying guide icon
Guide to Selling
Your Property
Selling guide icon
Sign Up For
Auction Alerts
Alert icon