We're now part of BTG Eddisons - Visit our new website BTGEddisonsPropertyAuctions.com
Lot
053
Auction: October 2025 Online Auction 29/10/2025 - Bidding opens Tuesday 28th October 10:00 AM

2-6 Witton Street, Northwich, Cheshire, CW9 5AP

Property Details
Location
Auction Details
Description
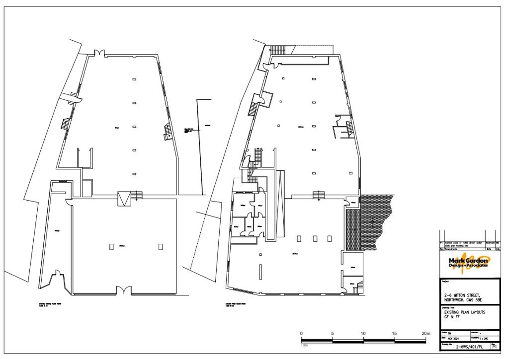
A substantial Town Centre retail unit extending to over 20,000 Sq.Ft (1,862 Sq.M) (source EPC) comprising the former Bratts department store. The vast accommodation is arranged over three floors and provides a potential redevelopment opportunity on the upper floors with a planning application currently live with the local authority to convert part of the property into 12 apartments. The property has recently undergone a rates valuation and now benefits from zero rates payable.

The property fronts onto Witton Street close to the new Baron's Quay leisure development in Northwich Town Centre. Nearby occupies include Holland & Barrett, Vision Express and Boots.
Approx Site Area
Approximatley 195 Sq M (233 Sq Yds).
Planning
A planning application was submitted to Cheshire West and Chester on 4th March 2025 for the conversion of part of ground floor and all upper floors to 12 apartments and a decision is pending, Planning ref - 25/00677/FUL
Costs
Details of the Buyer's Premium and any additional fees payable are contained within the legal documents.
General
1. All the information provided on our website is for indicative purposes only and interested parties should refer to the contents of the legal pack and rely upon their own due diligence as a prudent bidder.

2. PLEASE NOTE BIDDING COMMENCES ON TUESDAY 28TH OCTOBER AND CLOSES ON WEDNESDAY 29TH OCTOBER.

3. Energy Performance Certificate = C

4. The pre-authorisation of the bidding deposit for this lot is £5,000.

Our Nearest Office

Manchesterresize 600x300

Manchester

Search Available
Online Auctions
Search online auction icon
Guide to
Buying at Auction
Buying guide icon
Guide to Selling
Your Property
Selling guide icon
Sign Up For
Auction Alerts
Alert icon