Lot
014
Auction Ends: 29/10/2025 10:36 - Bidding opens Tuesday 28th October 10:00 AM

Flats 1-14, 1 & 3 Bath Street, Huddersfield, West Yorkshire, HD1 5BQ

Property Details
Location
Description
A substantial property of approx. 5,756.5 Sq Ft (535 Sq M) providing x14 unbroken apartments which comprise x1 Studio, x11 One bedroom & x2 Two bedroom apartments which are in need of a full scheme of general modernisation and refurbishment throughout providing an excellent opportunity for an investor / developer / builder to add value either for the resale market or to retain as a high yielding rental investment of which we understand the building could produce in the region of £113,400 per annum once refurbishment works have been completed (x1 Studio £575pcm / x11 One bed £675pcm per flat / x2 Two bed £675pcm ). The property is very well located on Bath Street within the town centre adjacent to the train station and within walking distance of the University of Huddersfield Queensgate Campus. The building is currently Vacant with the exception of Apartment No 1 which is subject to a periodic AST, however we understand the property will be fully vacant upon completion.
Accommodation

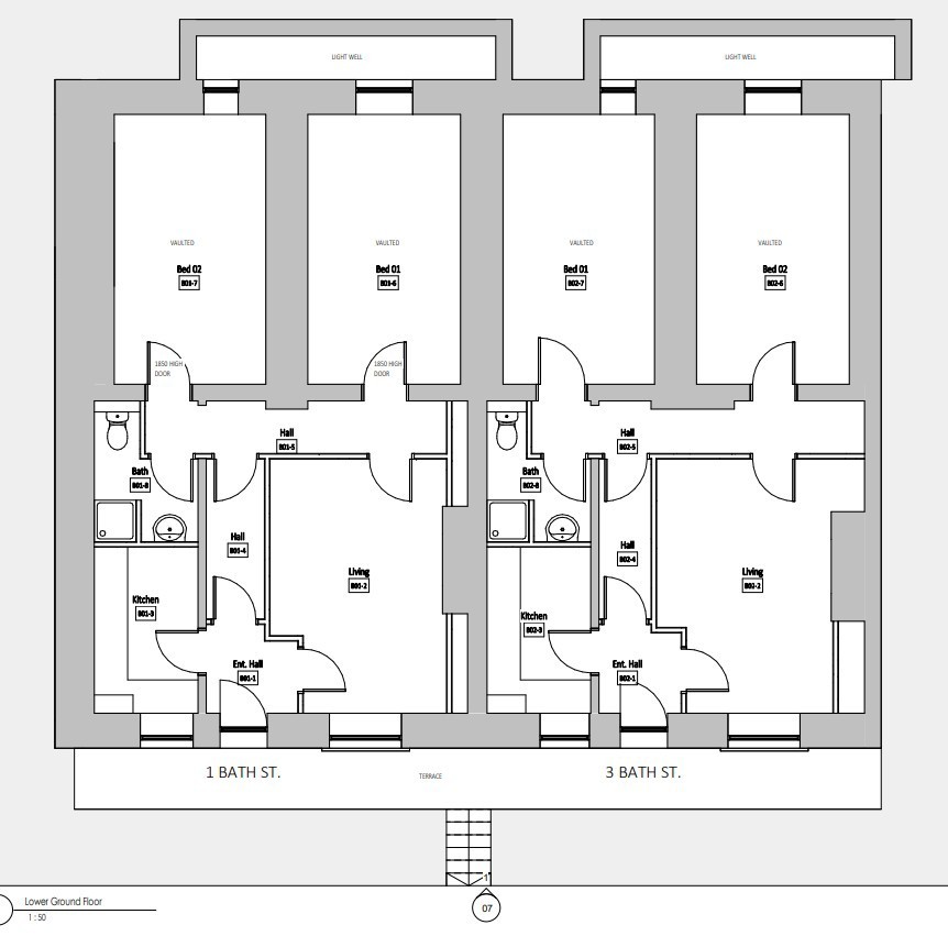
LOWER GROUND FLOOR :

Lower Ground Floor Apartment 

1 Bath Street

Entrance Hall, Kitchen, Lounge / Dining Room, Inner Hallway, Bedroom One, Bedroom Two, Bathroom 

Lower Ground Floor Apartment 

3 Bath Street

Entrance Hall, Kitchen, Lounge / Dining Room, Inner Hallway, Bedroom One, Bedroom Two, Bathroom 

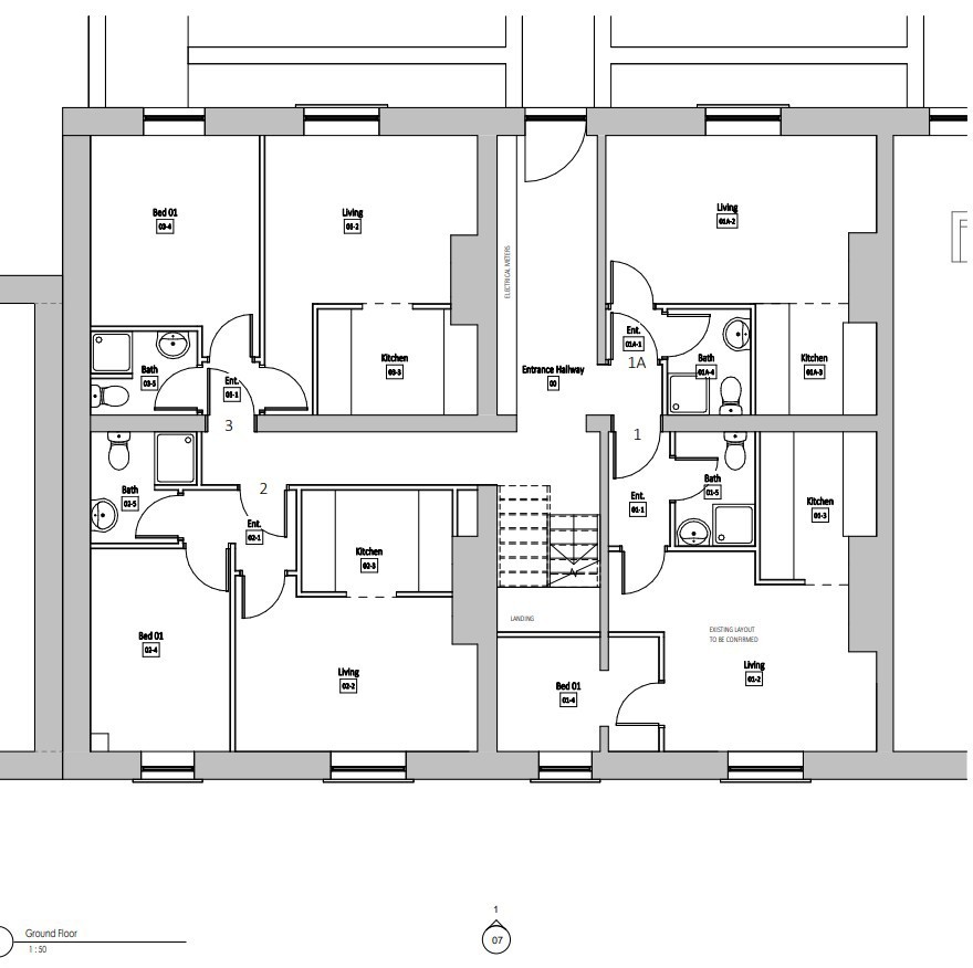
GROUND FLOOR:

Apartment 1A:Entrance Hall, Open Plan Living / Bedroom, Kitchen, Bathroom
Apartment 1:Entrance Hall, Lounge / Dining Room, Kitchen, Bedroom One, Bathroom 
Apartment 2:Entrance Hall, Lounge / Dining Room, Kitchen, Bedroom One, Bathroom 
Apartment 3:Entrance Hall, Lounge / Dining Room, Kitchen, Bedroom One, Bathroom 

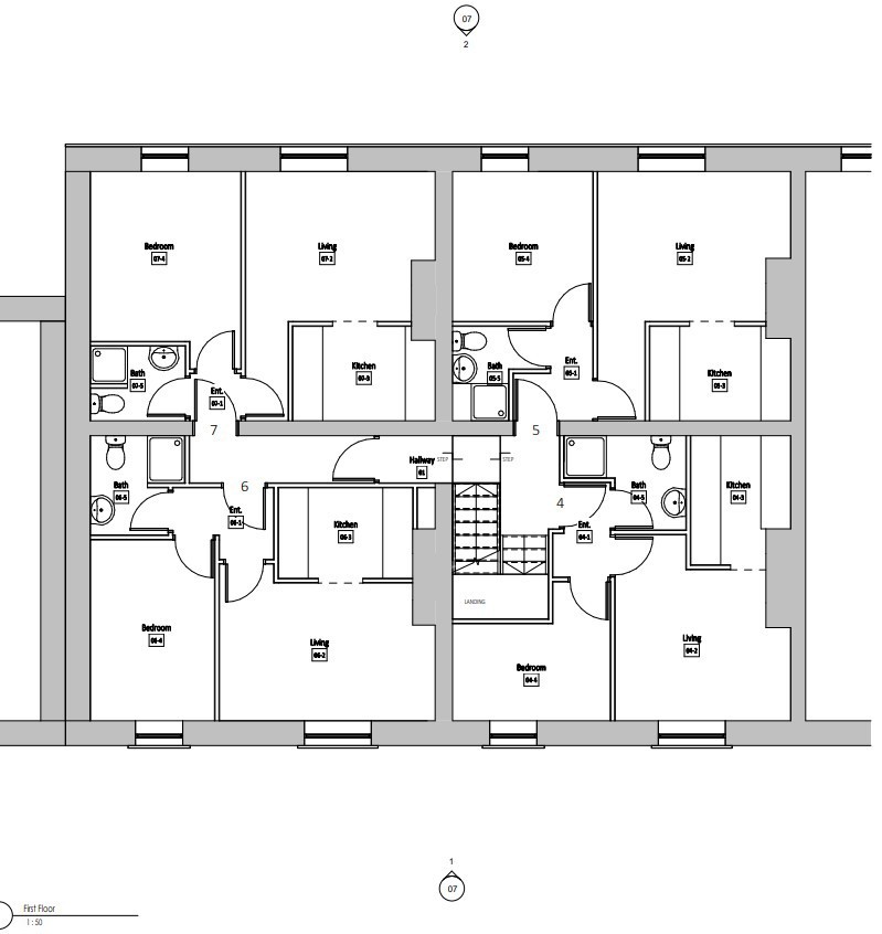
FIRST FLOOR: 

Apartment 4:Entrance Hall, Lounge / Dining Room, Kitchen, Bedroom One, Bathroom 
Apartment 5:Entrance Hall, Lounge / Dining Room, Kitchen, Bedroom One, Bathroom 
Apartment 6:Entrance Hall, Lounge / Dining Room, Kitchen, Bedroom One, Bathroom 
Apartment 7:Entrance Hall, Lounge / Dining Room, Kitchen, Bedroom One, Bathroom 

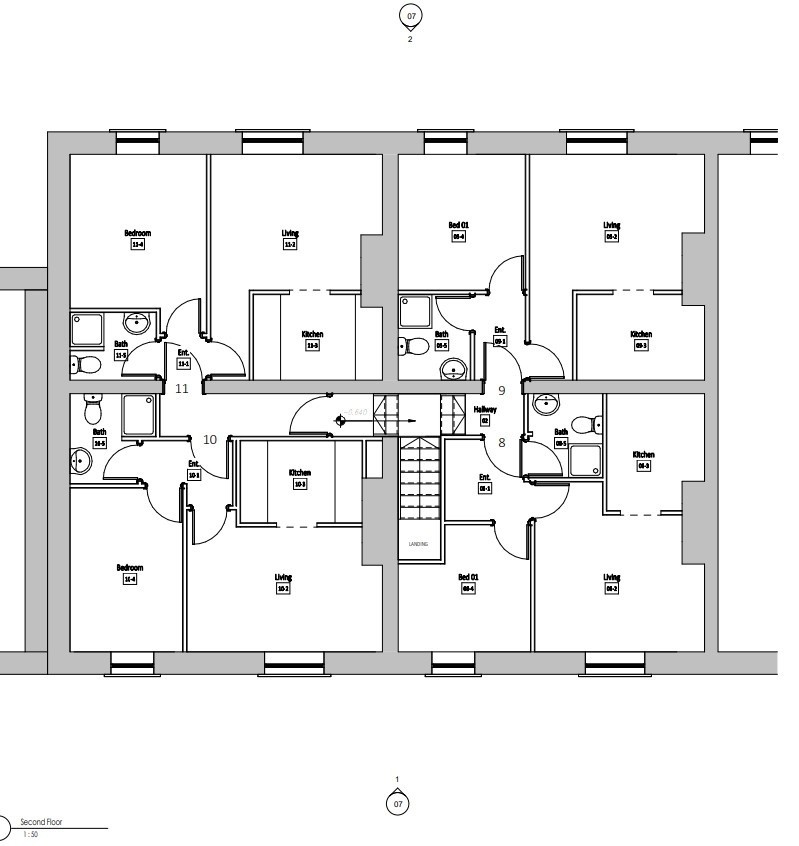
SECOND FLOOR:

Apartment 8:Entrance Hall, Lounge / Dining Room, Kitchen, Bedroom One, Bathroom 
Apartment 9:Entrance Hall, Lounge / Dining Room, Kitchen, Bedroom One, Bathroom 
Apartment 10:Entrance Hall, Lounge / Dining Room, Kitchen, Bedroom One, Bathroom 
Apartment 11:Entrance Hall, Lounge / Dining Room, Kitchen, Bedroom One, Bathroom 


Outside
The building has a Parking area providing parking for 4 vehicles as well as providing direct independant access to both the Lower Ground Floor Apartments.
Tenure
Leashold for a term of 999 years from 25v March 1875 with a passing Ground Rent of £142.10 per annum
Tenancy
Leasehold for a term of 999 years from 26th July 1875 with no Ground Rent
Costs
Details of the Buyer's Premium and any additional fees payable are contained within the legal documents.
General
1. All the information provided on our website is for indicative purposes only and interested parties should refer to the contents of the legal pack and rely upon their own due diligence as a prudent bidder.

2. PLEASE NOTE BIDDING COMMENCES ON TUESDAY 28TH OCTOBER AND CLOSES ON WEDNESDAY 29TH OCTOBER.

3. The property is listed with a Council Tax assessment in Band A.

4. Energy Performance Certificates: 1 Bath Street = D. 3 Bath Street = E.

Our Nearest Office

Leeds 600x300

Leeds

You may also like

020

The Children's Place, Netherfield Road, Ravensthorpe, Dewsbury, West Yorkshire, WF13 3JY

Auction Ends: 10/12/2025

Guide Price: £200,000 plus

023

34 Great Horton Road/Randall Well Street, Bradford, West Yorkshire, BD7 1AL

Auction Ends: 10/12/2025

Guide Price: £140,000 plus

035

65 Hollinbank Lane, Heckmondwike, West Yorkshire, WF16 9NW

Auction Ends: 10/12/2025

Guide Price: £215,000 plus

016

Edgerton Cemetery Lodge, Cemetery Road, Edgerton, Huddersfield, West Yorkshire, HD1 5NF

Auction Ends: 28/01/2026

Guide Price: £150,000 plus

Search Available
Online Auctions
Search online auction icon
Guide to
Buying at Auction
Buying guide icon
Guide to Selling
Your Property
Selling guide icon
Sign Up For
Auction Alerts
Alert icon