We're now part of BTG Eddisons - Visit our new website BTGEddisonsPropertyAuctions.com
Lot
096
Auction: July 2025 Online Auction 30/07/2025 - Bidding opens Tuesday 29th July 10:00 AM

Upper Floors At 28A Prescot Road, Fairfield, Liverpool, Merseyside, L7 0LQ

Property Details
Location
Auction Details
Description
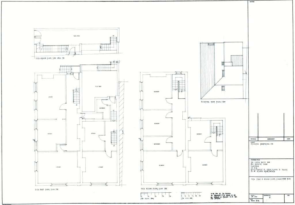
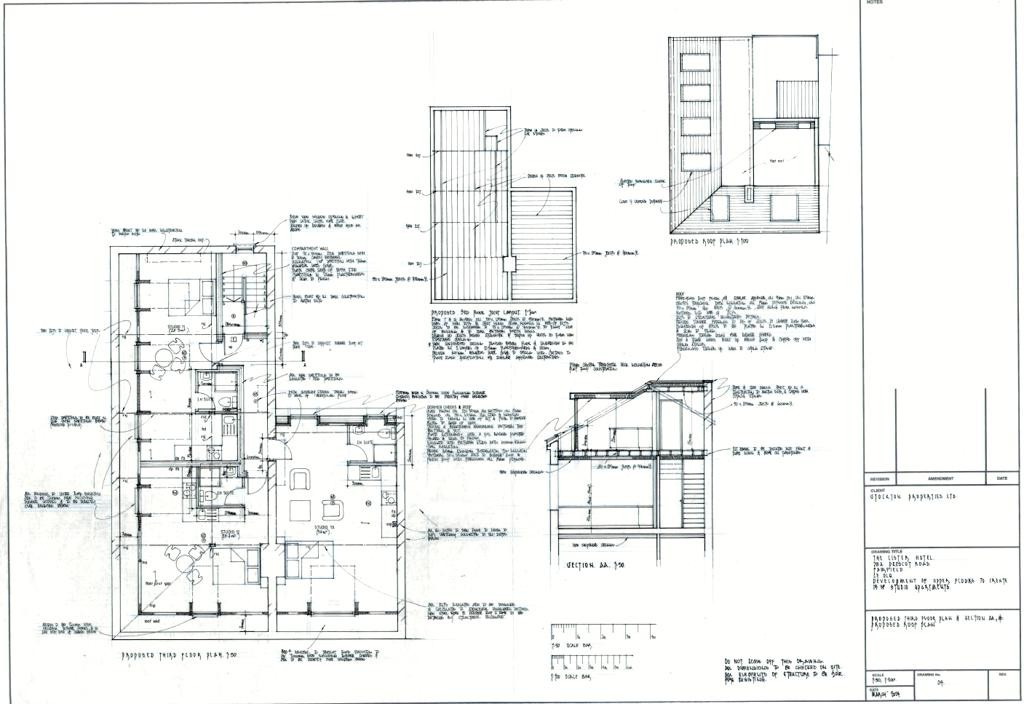
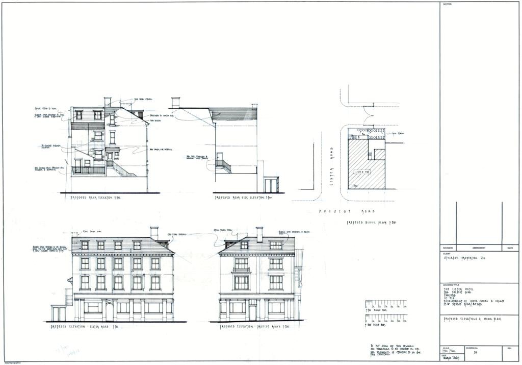
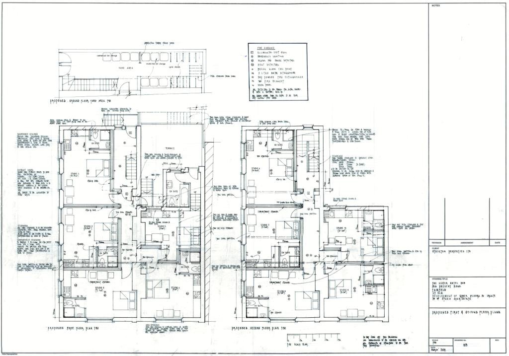
A potential residential development opportunity comprising the first and second floors of a large end terrace building, currently arranged as two flats requiring significant refurbishment. Indicative plans have been drawn to convert the upper floors into 13 self contained studio apartments, subject to planning. Under current plans the development would detail ten flats over the first and second floors and three flats in the newly converted loft space. A full copy of the plans can be found within the legal pack.

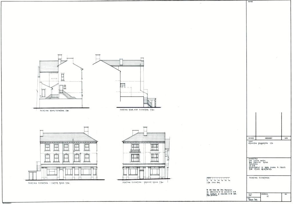
The site fronts onto the corner of Prescot Road and Lister Road in Kensington, a bustling suburb of Liverpool popular with students and young professionals alike. A number of new retail and residential developments have been constructed in the immediate vicinity in recent years and we would anticipate each of the flats to command circa £150p/wk providing an estimated annual rental return of approximately £100,000 once developed. The ground floor public house is not included within the sale.
Tenure
To be offered on a new 999 year lease
Costs
Details of the Buyer's Premium and any additional fees payable are contained within the legal documents.
General
1. All the information provided on our website is for indicative purposes only and interested parties should refer to the contents of the legal pack and rely upon their own due diligence as a prudent bidder.

2. PLEASE NOTE BIDDING COMMENCES ON TUESDAY 29TH JULY AND CLOSES ON WEDNESDAY 30TH JULY.

3. Energy Performance Certificate = C

Our Nearest Office

Liverpool 600x300

Liverpool

Search Available
Online Auctions
Search online auction icon
Guide to
Buying at Auction
Buying guide icon
Guide to Selling
Your Property
Selling guide icon
Sign Up For
Auction Alerts
Alert icon