Lot
025
Auction Ends: 30/07/2025 11:06 - Bidding opens Tuesday 29th July 10:00 AM

Rear Of 31 Whitehouse Road, Sheffield, South Yorkshire, S6 2WB

Property Details
Location
Description
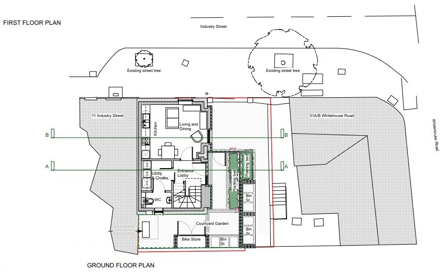
A two storey lock up garage / workshop unit of approx. 627.4 Sq (58.3 Sq M) over ground and first floor with driveway / yard located between the rear of 31/31A Whiteside Road and 11 Industry Street in a popular and well established residential area. The property provides an excellent opportunity for parking / garaging and storage / workshop space as well as providing further conversion and development potential by way of having planning permission granted for change of use from an ancillary building to a dwellinghouse - details of the planning permission can be found on the sheffield.gov.uk website under planning reference; 24/01847/FUL.
Outside
The property has a driveway / yard area.
Costs
Details of the Buyer's Premium and any additional fees payable are contained within the legal documents.
General
1. All the information provided on our website is for indicative purposes only and interested parties should refer to the contents of the legal pack and rely upon their own due diligence as a prudent bidder.

2. PLEASE NOTE BIDDING COMMENCES ON TUESDAY 29TH JULY AND CLOSES ON WEDNESDAY 30TH JULY.

Our Nearest Office

Sheffield 600x300

Sheffield

You may also like

001

Unigraph House, 287 Pitsmoor Road, Sheffield, South Yorkshire, S3 9AS

Auction Ends: 10/12/2025

Guide Price: £275,000 plus

002

232 Holme Lane, Malin Bridge, Sheffield, South Yorkshire, S6 4JZ

Auction Ends: 10/12/2025

Guide Price: £70,000 plus

010

170 High Street, Worsbrough, Barnsley, South Yorkshire, S70 4SG

Auction Ends: 10/12/2025

Guide Price: £25,000 plus

011

172 High Street, Worsbrough, Barnsley, South Yorkshire, S70 4SG

Auction Ends: 10/12/2025

Guide Price: £25,000 plus

012

Former Day Care Centre , Littlefield Lane, Wombwell, Barnsley, South Yorkshire, S73 8DF

Auction Ends: 10/12/2025

Guide Price: £125,000 plus

015

Former Church Premises, Greenhead Lane, Chapeltown, Sheffield, South Yorkshire, S35 2TN

Auction Ends: 10/12/2025

Guide Price: £225,000

044

1A Wellgate, Rotherham, South Yorkshire, S60 2LT

Auction Ends: 10/12/2025

Guide Price: £87,000 plus

045

Vestry Hall, 1A Tannery Street, Woodhouse, Sheffield, South Yorkshire, S13 7JW

Auction Ends: 10/12/2025

Guide Price: £75,000 plus

050

46 Daniel Hill, Sheffield, South Yorkshire, S6 3JF

Auction Ends: 10/12/2025

Guide Price: £120,000 plus

055

105a & 107 Bellhouse Road, Sheffield, South Yorkshire, S5 6HP

Auction Ends: 10/12/2025

Guide Price: £195,000 plus

015

69 Leppings Lane, Hillsborough, Sheffield, South Yorkshire, S6 1SS

Auction Ends: 28/01/2026

Guide Price: £175,000 plus

Search Available
Online Auctions
Search online auction icon
Guide to
Buying at Auction
Buying guide icon
Guide to Selling
Your Property
Selling guide icon
Sign Up For
Auction Alerts
Alert icon