Lot
003
Auction Ends: 27/08/2025 10:03 - Bidding opens Tuesday 26th August 12:00 PM

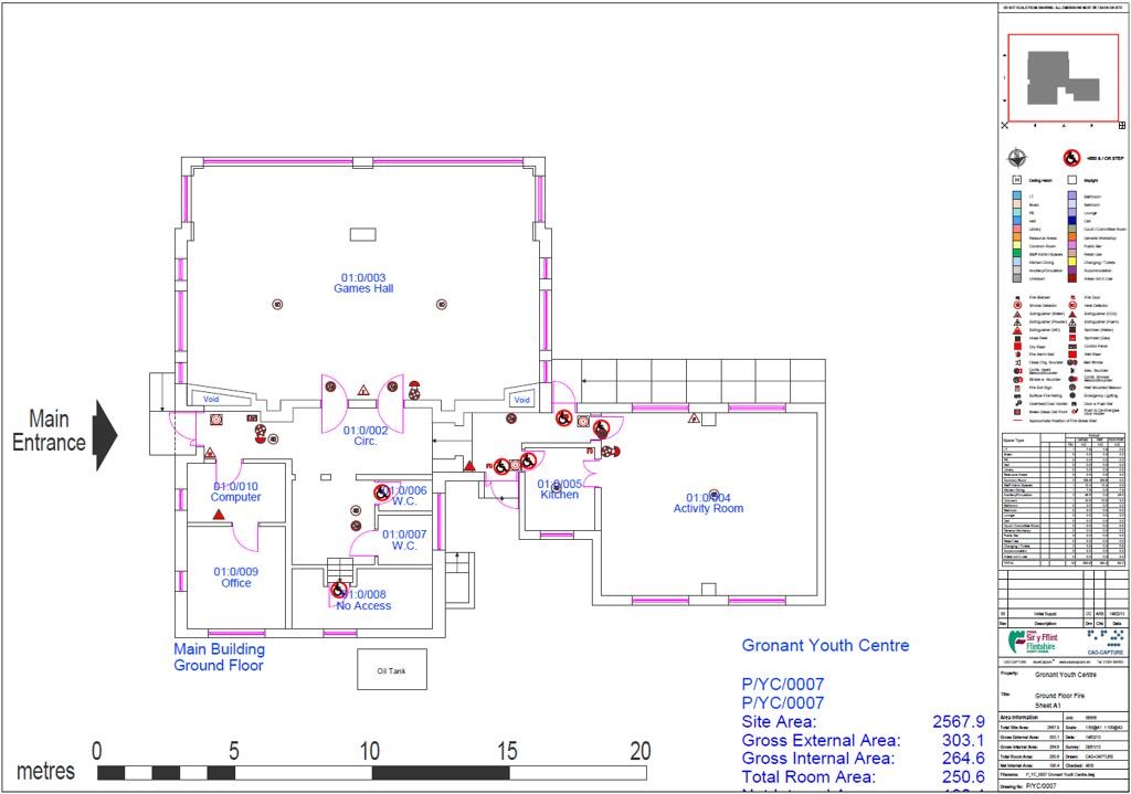
Former Youth Club, Pentre Lane, Gronant, Prestatyn, Flintshire, LL19 9TP

Property Details
Location
Description
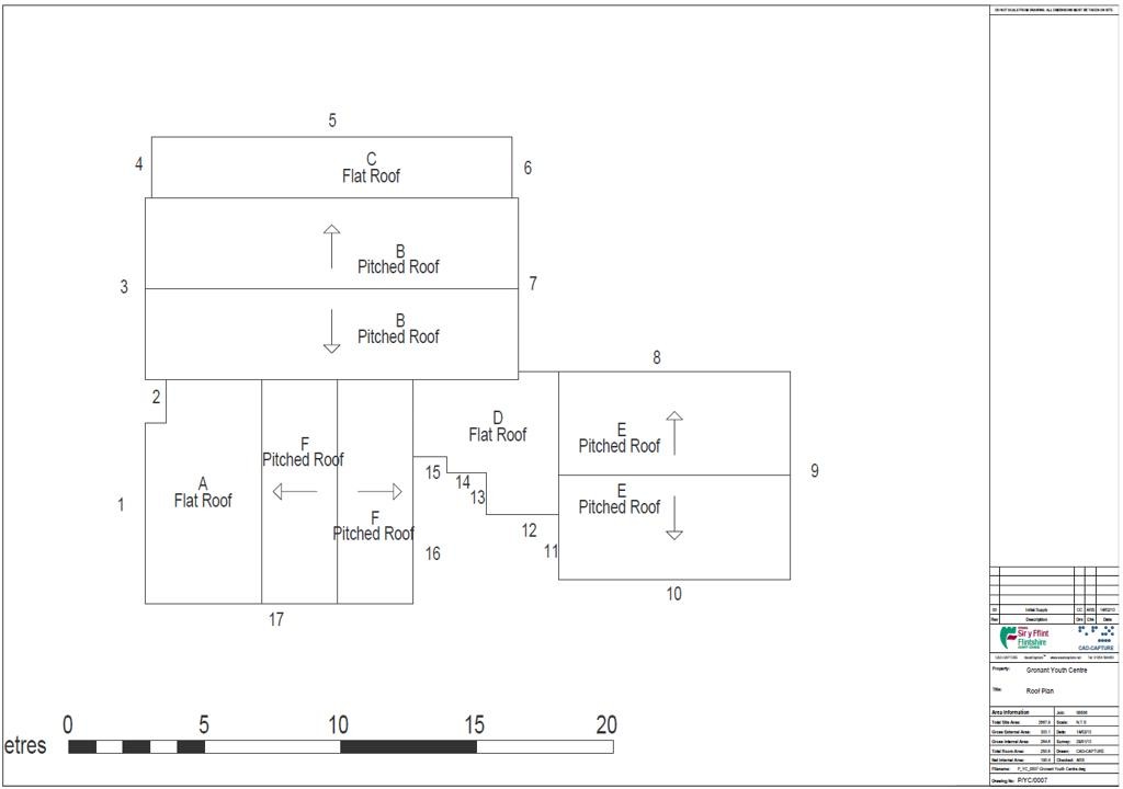
A potential re-development opportunity comprising a brick built single storey building with a gross internal area of approximately 264 SqM (2,841 SqFt). The property was formerly used as a youth club / community hub and sits on a total site area of 0.47 Acres (0.191 Hectares). Internally the accommodation requires a comprehensive scheme of refurbishment and repair and may be more suitable to demolition for residential development, subject to necessary consents.
Location
The site fronts onto Pentre Lane close to it's junction with Llanasa Road in the village of Gronant. Prestatyn sits just 3 miles to the west and provides a wide variety of daily amenities and facilities whilst the A55 expressway is within easy access.
Accommodation

Ground Floor264.6 Sq M / 2,841 Sq Ft
Approx Site Area
Approximately 0.471 Acres (0.191 Hectares)
Costs
Details of the Buyer's Premium and any additional fees payable are contained within the legal documents.
General
1. All the information provided on our website is for indicative purposes only and interested parties should refer to the contents of the legal pack and rely upon their own due diligence as a prudent bidder.

2. PLEASE NOTE BIDDING COMMENCES ON TUESDAY 26TH AUGUST AND CLOSES ON WEDNESDAY 27TH AUGUST.

3. Energy Performance Certificate = G

4. Hard hats must be worn by all parties entering the property on any viewing appointments.
Addendum
The sale is subject to an overage clause which is specified in the contract which forms part of the legal pack

Our Nearest Office

Liverpool 600x300

Liverpool

You may also like

001

Unigraph House, 287 Pitsmoor Road, Sheffield, South Yorkshire, S3 9AS

Auction Ends: 10/12/2025

Guide Price: £275,000 plus

002

232 Holme Lane, Malin Bridge, Sheffield, South Yorkshire, S6 4JZ

Auction Ends: 10/12/2025

Guide Price: £70,000 plus

003

Crystal Palace, 21 Dalkeith Street, Barrow-In-Furness, Cumbria, LA14 1ST

Auction Ends: 10/12/2025

Guide Price: £325,000 plus

004

Wheatsheaf, 124 Hindpool Road, Barrow-In-Furness, Cumbria, LA14 1XZ

Auction Ends: 10/12/2025

Guide Price: £525,000 plus

005

Garage Site Adjacent To, 54 Cresswell Street, Pogmoor, Barnsley, South Yorkshire, S75 2DL

Auction Ends: 10/12/2025

Guide Price: £50,000 plus

006

Former Garage Site Off Crown Close, Worsbrough Common, Barnsley, South Yorkshire, S70 4DB

Auction Ends: 10/12/2025

Guide Price: £40,000 plus

007

Former Garage Site Off The Firs, Kendray, Barnsley, South Yorkshire, S70 3DF

Auction Ends: 10/12/2025

Guide Price: £30,000 plus

008

Land Adjacent To 113 Hoyland Road, Hoyland Common, Barnsley, South Yorkshire, S74 0AP

Auction Ends: 10/12/2025

Guide Price: £30,000 plus

Search Available
Online Auctions
Search online auction icon
Guide to
Buying at Auction
Buying guide icon
Guide to Selling
Your Property
Selling guide icon
Sign Up For
Auction Alerts
Alert icon