Lot
053
Auction Ends: 30/07/2025 12:30 - Bidding opens Tuesday 29th July 10:00 AM

Park Works, West Dudley Street, Winsford, Cheshire, CW7 3AG

Property Details
Location
Description
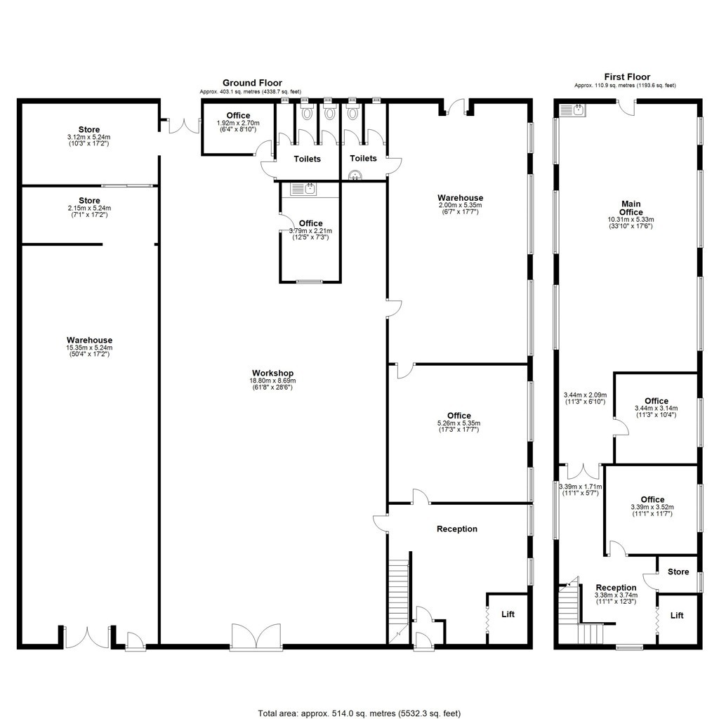
A detached industrial workshop premises with internal accommodation extending to approximately 517 SqM / 5,574 SqFt and offered with vacant possession. The unit is accessed via roller shutter doors and comprises various workshops and warehouse space on the ground floor with office and storage space to the first floor. Three phase electric and mains gas are both installed although the property would benefit from some refurbishment works but could be suitable for a variety of future business uses. Additionally there is approved planning permission for demolition of the current building and construction of a residential dwelling in it's place. The total area site extends to 434 SqM (519 Sq Yds) and is offered for sale on a freehold basis.

The property is located in the town centre of Winsford on Wharton Road, which links directly to the main A54. J18 of the M6 is only 5 miles away, which provides links to the national motorway networks.
Accommodation

The following accommodation details have been provided by the joint agent;

Ground Floor4,370 SqFt / 405.99 SqM 
First Floor1,204 SqFt / 111.86 SqM

Approx Site Area
Approximately 434 Sq M (519 Sq Yds)
Planning
Planning permission was approved by Cheshire West & Chester council on 1st December 2023 for the demolition of main office and workshop and proposed residential development . Planning reference Number: 23/01785/FUL
Costs
Details of the Buyer's Premium and any additional fees payable are contained within the legal documents.
General
1. All the information provided on our website is for indicative purposes only and interested parties should refer to the contents of the legal pack and rely upon their own due diligence as a prudent bidder.

2. PLEASE NOTE BIDDING COMMENCES ON TUESDAY 29TH JULY AND CLOSES ON WEDNESDAY 30TH JULY.

3. Energy Performance Certificate = D

Our Nearest Office

Manchesterresize 600x300

Manchester

Joint Agent

Rock Real Estate
Contact: Guy Jackson

You may also like

001

Former Kinsley Craft Workshop, Wakefield Road, Kinsley, Pontefract, West Yorkshire, WF9 5EH

Auction Ends: 28/01/2026

Guide Price: £70,000 plus

002

Land At Coutances Way, Burley In Wharfedale, Ilkley, West Yorkshire, LS29 7HQ

Auction Ends: 28/01/2026

Guide Price: £10,000 plus

003

Templeton Lodge, Templeton Road, Platt Bridge, Wigan, Lancashire, WN2 5PB

Auction Ends: 28/01/2026

Guide Price: £180,000 plus

004

Land Adjacent To 137 Ruabon Road, Wrexham, Wrexham, LL13 7RB

Guide Price: £20,000

005

52 Church Street, Connah's Quay, Deeside, Flintshire, CH5 4AQ

Auction Ends: 28/01/2026

Guide Price: £125,000 plus

006

Flats 1-4, 47 Olivet Road, Woodseats, Sheffield, South Yorkshire, S8 8QR

Auction Ends: 28/01/2026

Guide Price: £200,000 plus

007

17 A,B & C Whitehall Court, Retford, Nottinghamshire, DN22 6JQ

Auction Ends: 28/01/2026

Guide Price: £195,000 plus

008

Unit 1 - 4, New York Cottages, Bangor Road, Penmaenmawr, Conwy, LL34 6NP

Auction Ends: 28/01/2026

Guide Price: £125,000 plus

Search Available
Online Auctions
Search online auction icon
Guide to
Buying at Auction
Buying guide icon
Guide to Selling
Your Property
Selling guide icon
Sign Up For
Auction Alerts
Alert icon