We're now part of BTG Eddisons - Visit our new website BTGEddisonsPropertyAuctions.com
Lot
058
Auction: May 2025 Online Auction 28/05/2025 - Bidding opens Tuesday 27th May 12:00 PM

Basement Of 83-85 George Street, Hull, East Riding of Yorkshire, HU1 3BN

Property Details
Location
Auction Details
Description
THIS LOT WILL BE OFFERED WITH NIL RESERVE
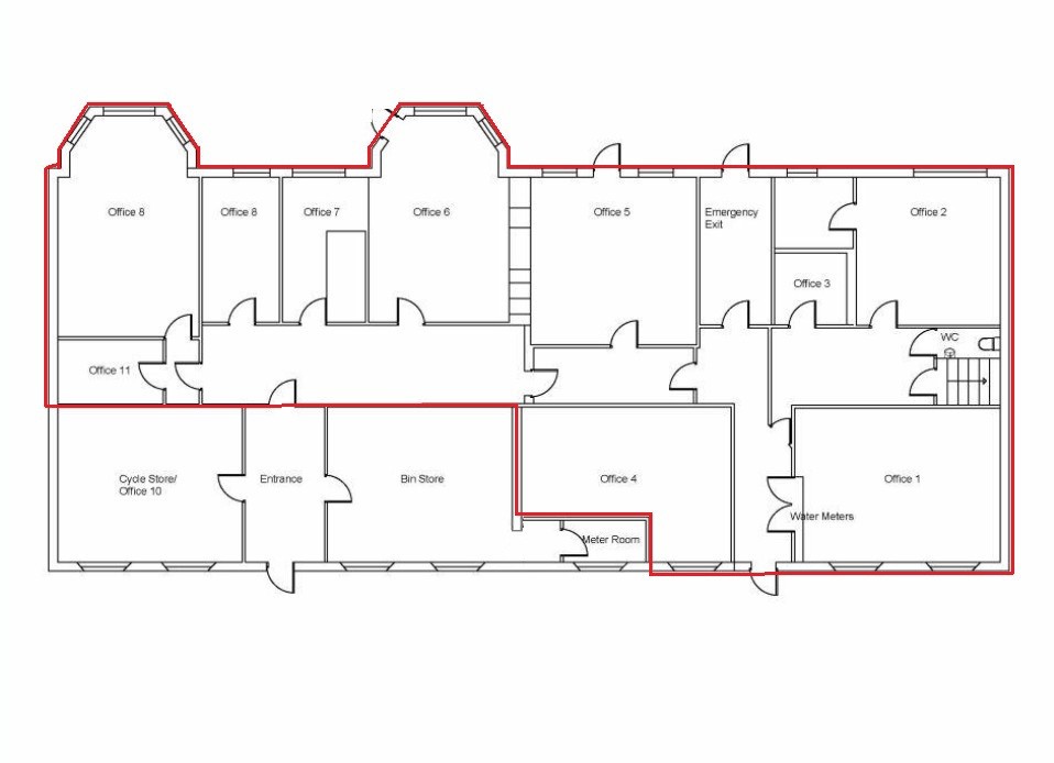
A basement-level commercial premises located within a prominent Grade II Listed building in Hull city centre which extends to approximately 2,522 Sq Ft (235 Sq M) and comprises various office spaces, both larger open-plan and single rooms as well as storage. There are two front entrance doors, the first one is a shared entrance which leads to a cycle store and bin store (not included in the sale but forming part of the apartments above). The other entrance to the front elevation has its own direct access to the office accommodation. The building retains a number of original features with some areas having York stone flooring. The offices have fluorescent lighting and perimeter electrical trunking.
Accommodation
Lower Ground Floor:Entrance Hall, Office 1, Office 2, Office 3, Store, W.C, Emergency Exit, Inner Hall, Office 5, Office 6, Office 7, Office 8, Office 9, Office 10, Office 11
Outside
There is a rear courtyard area, paved in York stone.
Planning
For any pre-application advice, interested parties should consult directly with the Local Planning Authority: Hull City Council, 95 Park Grove, Princes Avenue, Kingston Upon Hull, HU5 2US. Telephone: 01482 300 300. Email: dev.control@hullcc.gov.uk
Costs
Details of the Buyer's Premium and any additional fees payable are contained within the legal documents.
General
1. All the information provided on our website is for indicative purposes only and interested parties should refer to the contents of the legal pack and rely upon their own due diligence as a prudent bidder.

2. PLEASE NOTE BIDDING COMMENCES ON TUESDAY 27TH MAY AND CLOSES ON WEDNESDAY 28TH MAY.

3. Energy Performance Certificate = D.

Our Nearest Office

Leeds 600x300

Leeds

Search Available
Online Auctions
Search online auction icon
Guide to
Buying at Auction
Buying guide icon
Guide to Selling
Your Property
Selling guide icon
Sign Up For
Auction Alerts
Alert icon