We're now part of BTG Eddisons - Visit our new website BTGEddisonsPropertyAuctions.com
Lot
050
Auction: May 2025 Online Auction 28/05/2025 - Bidding opens Tuesday 27th May 12:00 PM

58 Richmond Street, Manchester, Greater Manchester, M1 3WB

Property Details
Location
Auction Details
Description
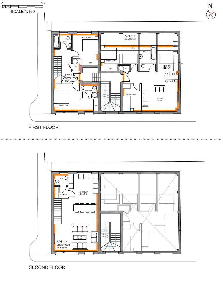
A large grade II listed building in the heart of Manchester with lapsed planning for extension and conversion into 6 luxury apartments.

The property is also suitable for a variety of other uses, such as, commercial offices, House of multiple occupancy, two signature houses or the previous planning for luxury apartments. Please see the floorplan tab to show what is included as there is a useful piece of land next to the building.

Please see planning documents - 121644/LO/2018

A very rare opportunity to acquire a historic building in the heart of Manchester within the sought-after M1 postcode near to the famous Canal Street
Location
The property is situated fronting Richmond Street within close proximity of Canal Street, between Princess Street (A34) and Sackville Street.
Planning
For any pre-application advice, interested parties should consult directly with the Local Planning Authority: Manchester City Council, Town Hall, Albert Square, Manchester, M60 2LA. Telephone: 0161 234 4692. Email: planning@manchester.gov.uk.
Costs
Details of the Buyer's Premium and any additional fees payable are contained within the legal documents.
General
1. All the information provided on our website is for indicative purposes only and interested parties should refer to the contents of the legal pack and rely upon their own due diligence as a prudent bidder.

2. PLEASE NOTE BIDDING COMMENCES ON TUESDAY 27TH MAY AND CLOSES ON WEDNESDAY 28TH MAY.

Our Nearest Office

Manchesterresize 600x300

Manchester

Search Available
Online Auctions
Search online auction icon
Guide to
Buying at Auction
Buying guide icon
Guide to Selling
Your Property
Selling guide icon
Sign Up For
Auction Alerts
Alert icon