We're now part of BTG Eddisons - Visit our new website BTGEddisonsPropertyAuctions.com
Agency

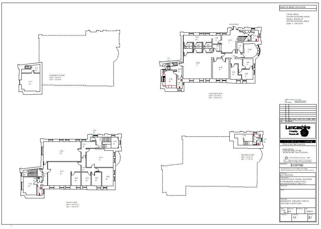
44 Union Street, Accrington, Lancashire, BB5 1PL

Property Details
Location
Auction Details
Description
*FOR SALE BY FORMAL TENDER WITH A CLOSING DATE OF 9TH MAY* A prominent two storey office building with internal accommodation extending to approximately 547.2m2 (5,890ft2). The freehold site extends to a total area of 0.101 hectares (0.25 acres) which includes approximately 17 car parking spaces to the front and rear. The building is located in the heart of Accrington town centre.

Interested parties are advised to make any related enquiries directly to Lancashire County Council - property.sales@lancashire.gov.uk
Location
The site is adjacent to the Accrington Arndale shopping centre and the multi-story car park. The A680 is easily accessible offering transport links to both the M65 and A56. The building is centrally located and is in walking distance from both Accrington Train Station, Bus Station and town centre retail.
Tenure
Freehold
Planning
As part of Hyndburn 2025 Local Plan, which was submitted March 2025 for approval, Hyndburn BC have identified the site to be SP6 - Town and Local Centres. The Masterplan Framework for Accrington Town Centre indicates that the site is immediately adjacent to the proposed redevelopment area forming part of the new green neighbourhood with mixed residential, commercia l opportunities and improvements to public realm. For further discussions please contact the Hyndburn Planning Control by telephone: 01254 388111 or email: planning@hyndburnbc.gov.uk
General
Pugh & Co have not inspected the premises internally and all information has been supplied by Lancashire County Council.

Prospective purchasers are invited to submit formal offers for the whole of the property
as shown edged red on the site plan. The property is offered for sale by way of formal tender, tenders should be submitted by 10:00am, Friday 9 May 2025. All offers should be submitted as per the tender documentation. Parties submitting tender returns will be notified within two weeks of the final date of submission as to the success of their bid.

Our Nearest Office

Manchesterresize 600x300

Manchester

Search Available
Online Auctions
Search online auction icon
Guide to
Buying at Auction
Buying guide icon
Guide to Selling
Your Property
Selling guide icon
Sign Up For
Auction Alerts
Alert icon