We're now part of BTG Eddisons - Visit our new website BTGEddisonsPropertyAuctions.com
Lot
050
Auction: April 2025 Online Auction 30/04/2025 - Bidding opens Tuesday 29th April 10:00 AM

4-6 Fox Street, Preston, Lancashire, PR1 2AB

Property Details
Location
Auction Details
Description
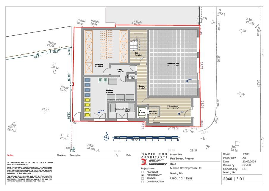
A mixed use development opportunity comprising an existing two storey retail unit with outline planning permission for it's demolition and construction of new ground floor retail offering and 19 apartments over five upper floors. Under the current plans the new build residential accommodation would comprise 18 x 1 bedroom and 1 x 2 bedroom units. There is a car park to the rear of the property.
Location
The property fronts onto Fox Street immediately adjacent to Premier Inn and a 2 minute walk to Preston town centre and its main retail and restaurant area. A wide variety of amenities and facilities are situated in the immediate vicinity.
Outside
Car park to rear
Planning
Outline planning permission was approved by Preston Council on 14th November 2024 for the demolition of the existing building and a new build six storey building comprising 19 apartments and ground floor commercial unit. Planning ref - 06/2024/0644
Costs
Details of the Buyer's Premium and any additional fees payable are contained within the legal documents.
General
1. All the information provided on our website is for indicative purposes only and interested parties should refer to the contents of the legal pack and rely upon their own due diligence as a prudent bidder.

2. PLEASE NOTE BIDDING COMMENCES ON TUESDAY 29TH APRIL AND CLOSES ON WEDNESDAY 30TH APRIL.

3. Energy Performance Certificate = E

Our Nearest Office

Manchesterresize 600x300

Manchester

Search Available
Online Auctions
Search online auction icon
Guide to
Buying at Auction
Buying guide icon
Guide to Selling
Your Property
Selling guide icon
Sign Up For
Auction Alerts
Alert icon