Lot
038
Auction Ends: 30/04/2025 11:51 - Bidding opens Tuesday 29th April 10:00 AM

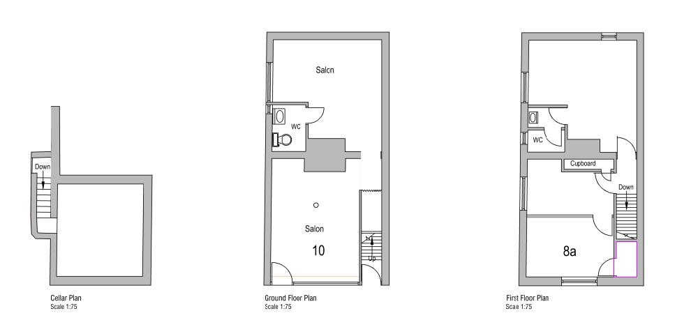
8a & 10 King Street, With Car Park, Wakefield, West Yorkshire, WF1 2SQ

Property Details
Location
Description
Two-storey commercial premises and car park sold with the benefit of planning permission for change of use to 2 x flats. The property is sold vacant and last traded as a hairdressers on the ground floor and separate office space on the first floor. The car park has 4 spaces, one of which is sold subject to a licence detailing £125 + VAT quarterly.
Location
The property fronts King Street in Wakefield town centre. Nearby premises are a range of commercial uses, and nearby occupiers include Holiday Inn, Specsavers, and Boots. King Street joins Marygate and Cliffe Parade and has easy access to the A61 ring road.
Tenure
Sold freehold.
Planning
In October 2024, full planning permission was approved for change of use from class E to class C (2 x flats), partial demolition of chimney, fenestration alterations, replacement windows. The application reference is 23/00947/FUL and can be found here: https://planning.wakefield.gov.uk/online-applications/applicationDetails.do?keyVal=RUUZQYQQM1V00&activeTab=summary
Costs
Details of the Buyer's Premium and any additional fees payable are contained within the legal documents.
General
1. All the information provided on our website is for indicative purposes only and interested parties should refer to the contents of the legal pack and rely upon their own due diligence as a prudent bidder.

2. PLEASE NOTE BIDDING COMMENCES ON TUESDAY 29TH APRIL AND CLOSES ON WEDNESDAY 30TH APRIL.

3. Energy Performance Certificate:
8a King Street = G
10 King Street = C

Our Nearest Office

Leeds 600x300

Leeds

You may also like

001

Former Kinsley Craft Workshop, Wakefield Road, Kinsley, Pontefract, West Yorkshire, WF9 5EH

Auction Ends: 28/01/2026

Guide Price: £70,000 plus

013

Development Opportunity At 213a Bradford Road, East Ardsley, Wakefield, West Yorkshire, WF3 2DL

Auction Ends: 28/01/2026

Guide Price: £150,000 plus

027

Former Gipton South Children's Centre, Coldcotes Grove, Gipton, Leeds, West Yorkshire, LS9 6QJ

Auction Ends: 28/01/2026

Guide Price: £290,000 plus

048

Development Opportunity At Strawberry Lane, Leeds, West Yorkshire, LS12 1SF

Auction Ends: 28/01/2026

Guide Price: £365,000 plus

058

Former Knowle Manor Residential Home, Tennyson Terrace, Morley, Leeds, West Yorkshire, LS27 8QP

Auction Ends: 28/01/2026

Guide Price: £380,000 plus

Search Available
Online Auctions
Search online auction icon
Guide to
Buying at Auction
Buying guide icon
Guide to Selling
Your Property
Selling guide icon
Sign Up For
Auction Alerts
Alert icon