Lot
043
Auction Ends: 28/05/2025 12:06 - Bidding opens Tuesday 27th May 12:00 PM

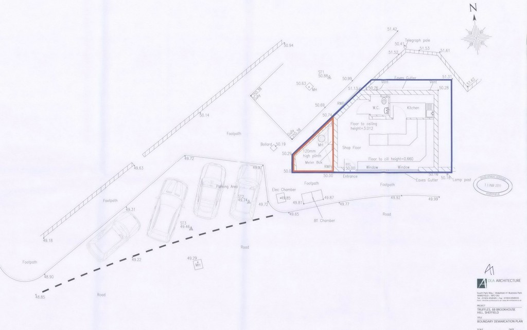
68A Brookhouse Hill, Sheffield, South Yorkshire, S10 3TB

Property Details
Location
Description
A stone built single storey detached commercial building of approx. 364 Sq Ft (33.9 Sq M) in very good order throughout and currently let subject to a six year Lease from 6th October 2020 which produces £5,500 per annum with the current tenant in still in occupation holding over. We understand a new Lease extension has been agreed for a further 2 years until 5th October 2028. The property comprises an open sales / retail / office area with a small kitchenette & W.C. Planning permission has previously been conditionally granted for the extension of the ground floor and plans have also been drawn up for the addition of a first floor above to provide a separate self contained flat. Details for the planning permission can be found on the sheffield.gov.uk website underplaning reference number(s); 11/00873/FUL & 09/03298/FUL.
Accommodation

Ground Floor - 364 Sq Ft (33.9 Sq M): Open Retail / Sales / Office Arear, Kitchenette, W.C

Outside
The property has a rear service area area / bin store.
Planning
For any pre-application advice, interested parties should consult directly with the Local Planning Authority: Sheffield City Council, Howden House, 1 Union Street, Sheffield, S1 2SH. Telephone: 0114 203 9183.
Tenancy

Tenancy Details Rent (pa)Rent (pcm)
Tenant in occupation since 2013 a Lease in place until 5th October 2028£5,500£458.33

Costs
Details of the Buyer's Premium and any additional fees payable are contained within the legal documents.
General
1. All the information provided on our website is for indicative purposes only and interested parties should refer to the contents of the legal pack and rely upon their own due diligence as a prudent bidder.

2. PLEASE NOTE BIDDING COMMENCES ON TUESDAY 27TH MAY AND CLOSES ON WEDNESDAY 28TH MAY.

3. The property is entered in the 2023 Rating List as "Shop and Premises" with a Rateable Value of £4,250. The Rateable Value (RV) is not the amount payable.

4. Energy Performance Certificate = C.

Our Nearest Office

Sheffield 600x300

Sheffield

You may also like

001

Unigraph House, 287 Pitsmoor Road, Sheffield, South Yorkshire, S3 9AS

Auction Ends: 10/12/2025

Guide Price: £275,000 plus

002

232 Holme Lane, Malin Bridge, Sheffield, South Yorkshire, S6 4JZ

Auction Ends: 10/12/2025

Guide Price: £70,000 plus

015

Former Church Premises, Greenhead Lane, Chapeltown, Sheffield, South Yorkshire, S35 2TN

Auction Ends: 10/12/2025

Guide Price: £225,000

044

1A Wellgate, Rotherham, South Yorkshire, S60 2LT

Auction Ends: 10/12/2025

Guide Price: £87,000 plus

045

Vestry Hall, 1A Tannery Street, Woodhouse, Sheffield, South Yorkshire, S13 7JW

Auction Ends: 10/12/2025

Guide Price: £75,000 plus

050

46 Daniel Hill, Sheffield, South Yorkshire, S6 3JF

Auction Ends: 10/12/2025

Guide Price: £120,000 plus

055

105a & 107 Bellhouse Road, Sheffield, South Yorkshire, S5 6HP

Auction Ends: 10/12/2025

Guide Price: £195,000 plus

015

69 Leppings Lane, Hillsborough, Sheffield, South Yorkshire, S6 1SS

Auction Ends: 28/01/2026

Guide Price: £175,000 plus

Search Available
Online Auctions
Search online auction icon
Guide to
Buying at Auction
Buying guide icon
Guide to Selling
Your Property
Selling guide icon
Sign Up For
Auction Alerts
Alert icon