Lot
121
Auction Ends: 26/02/2025 16:00 - Bidding opens Tuesday 25th February 10:00 AM

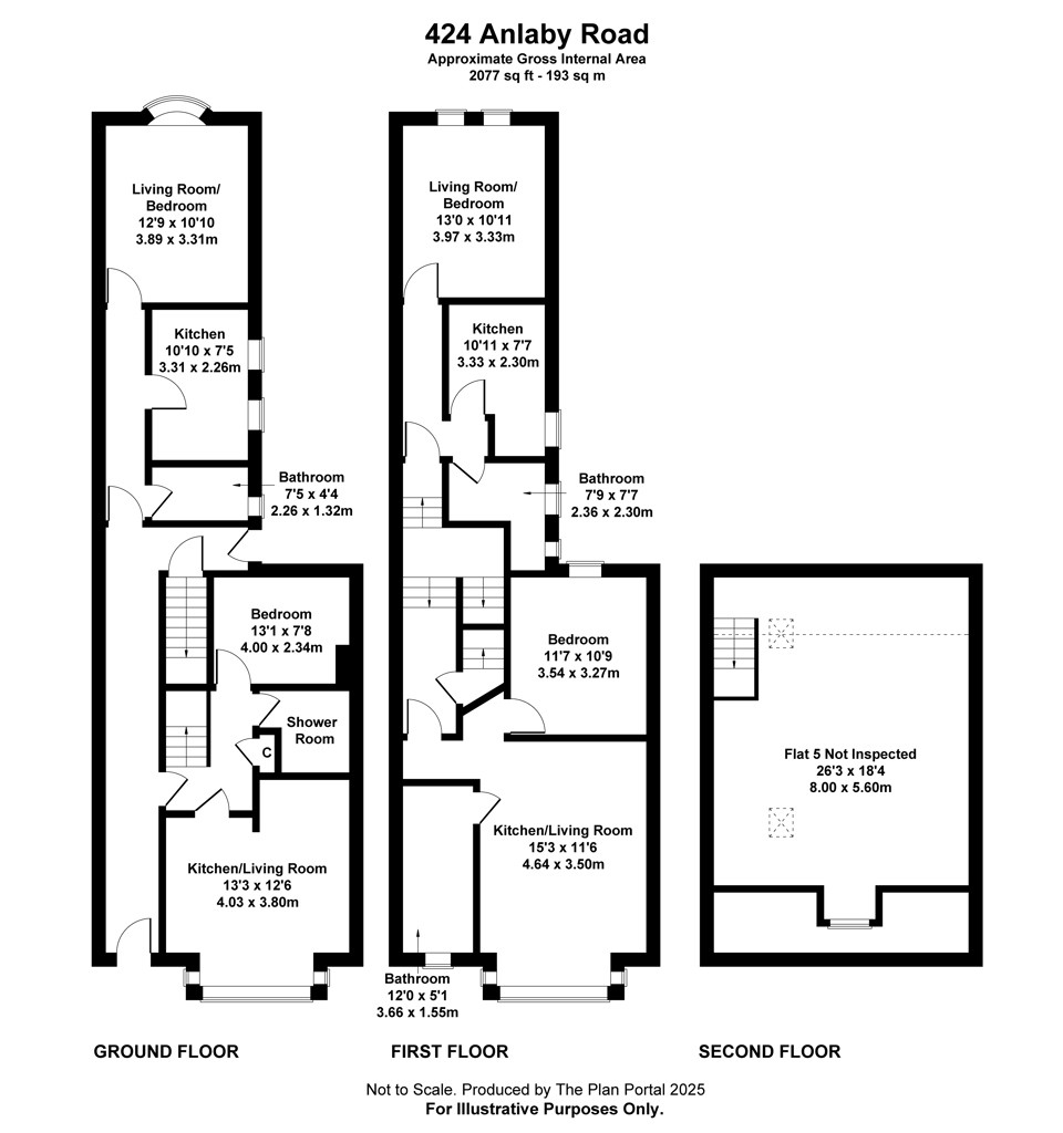
424 Anlaby Road, Hull, East Riding Of Yorkshire, HU3 6QP

Property Details
Location
Description
A substantial three storey, end terraced house, which was converted many years ago to provide five self contained letting units. Some of the tenants are longstanding, and have lived in the building for 15+ years. Currently fully let, the property is generating an income of £23,460 per annum which equates to a gross return of, more than, 20%, based on the guide price. The rooms themselves, are self contained and feature their own kitchenette and bath/shower room. The property benefits from gas fired central heating and PVC-U double glazing, to most windows. The landlord is currently responsible for paying the utilities and council tax.

Location
Located 1.5 miles west of Hull city centre.
Outside
Yard to front and garden to the rear.
Costs
Details of the Buyer's Premium and any additional fees payable are contained within the legal documents.
General
1. All the information provided on our website is for indicative purposes only and interested parties should refer to the contents of the legal pack and rely upon their own due diligence as a prudent bidder.

2. PLEASE NOTE BIDDING COMMENCES ON TUESDAY 25TH FEBRUARY AND CLOSES ON WEDNESDAY 26TH FEBRUARY.

3. Energy Performance Certificate = D

Our Nearest Office

Leeds 600x300

Leeds

You may also like

001

Former Kinsley Craft Workshop, Wakefield Road, Kinsley, Pontefract, West Yorkshire, WF9 5EH

Auction Ends: 28/01/2026

Guide Price: £70,000 plus

002

Land At Coutances Way, Burley In Wharfedale, Ilkley, West Yorkshire, LS29 7HQ

Auction Ends: 28/01/2026

Guide Price: £10,000 plus

003

Templeton Lodge, Templeton Road, Platt Bridge, Wigan, Lancashire, WN2 5PB

Auction Ends: 28/01/2026

Guide Price: £180,000 plus

004

Land Adjacent To 137 Ruabon Road, Wrexham, Wrexham, LL13 7RB

Guide Price: £20,000

005

52 Church Street, Connah's Quay, Deeside, Flintshire, CH5 4AQ

Auction Ends: 28/01/2026

Guide Price: £125,000 plus

006

Flats 1-4, 47 Olivet Road, Woodseats, Sheffield, South Yorkshire, S8 8QR

Auction Ends: 28/01/2026

Guide Price: £200,000 plus

007

17 A,B & C Whitehall Court, Retford, Nottinghamshire, DN22 6JQ

Auction Ends: 28/01/2026

Guide Price: £195,000 plus

008

Unit 1 - 4, New York Cottages, Bangor Road, Penmaenmawr, Conwy, LL34 6NP

Auction Ends: 28/01/2026

Guide Price: £125,000 plus

Search Available
Online Auctions
Search online auction icon
Guide to
Buying at Auction
Buying guide icon
Guide to Selling
Your Property
Selling guide icon
Sign Up For
Auction Alerts
Alert icon