We're now part of BTG Eddisons - Visit our new website BTGEddisonsPropertyAuctions.com
Lot
007
Auction: March 2025 Online Auction 26/03/2025 - Bidding opens Tuesday 25th March 10:00 AM

Hatters, Drummond Road, Skegness, Lincolnshire, PE25 3AB

Property Details
Location
Auction Details
Description
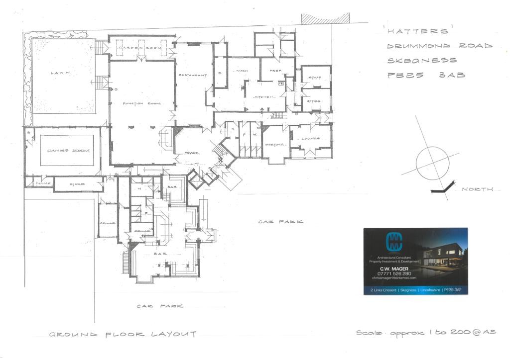
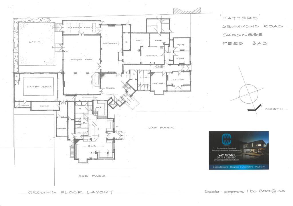
A substantial and versatile hotel and guest house property extending to approximately 2130SqM (22,927SqFt) on a site measuring circa 0.77 acres. The accommodation comprises 29 en-suite guest rooms along with various bars, restaurant area and function rooms previously used for weddings and other large events. The site is located immediately adjacent a UK top 100 golf course and offers scope for a number of different future uses including residential conversion or re-development schemes, subject to planning. Plans have been drawn to convert part of the property into 9 self contained apartments.
Location
The site is situated on the corner of Drummond Road and Shardloes Road just a short walk from the town centre, beach front and Seacroft Golf Club. Skegness is a popular year round tourist destination located on the east coast offering a large array of amenities, facilities and coastal pursuits.
Approx Site Area
Approximately 0.77 Acres (0.31 Hectares)
Tenure
Freehold title number LL263374
Costs
Details of the Buyer's Premium and any additional fees payable are contained within the legal documents.
General
1. All the information provided on our website is for indicative purposes only and interested parties should refer to the contents of the legal pack and rely upon their own due diligence as a prudent bidder.

2. PLEASE NOTE BIDDING COMMENCES ON TUESDAY 25TH MARCH AND CLOSES ON WEDNESDAY 26TH MARCH.

3. Energy Performance Certificate = B

Our Nearest Office

Nottingham 600x300

Nottingham

Search Available
Online Auctions
Search online auction icon
Guide to
Buying at Auction
Buying guide icon
Guide to Selling
Your Property
Selling guide icon
Sign Up For
Auction Alerts
Alert icon