Lot
004
Auction Ends: 25/06/2025 10:09 - Bidding opens Tuesday 24th June 10:00 AM

Superb Rural Property, Swan Lane, Eccup, Leeds, West Yorkshire, LS16 8AZ

Property Details
Location
Description
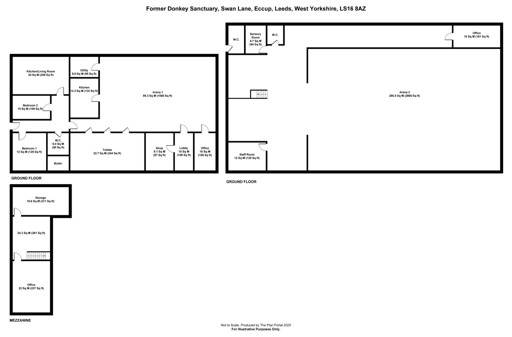
A rare and exciting opportunity to acquire a stunning and outstanding rural property extending to approximately 3.06 acres (1.24 hectares). This exceptional site comprises an extensive range of buildings surrounded by some spectacular countryside. The property is set amidst the Greenbelt in one of the most prestigious locations of West Yorkshire and is ideally placed to access the vibrant centres of Leeds, Harrogate and York which together form the "Yorkshire Golden Triangle". The property may be suitable for change of use and redevelopment subject to the usual planning consent and amongst other possible uses the site potentially offers a unique opportunity, to create a magnificent residential dwelling of character situated in this much sought after rural area. The property was formally used as a Donkey Sanctuary and provides a superb example of a well apportioned equestrian centre comprising indoor and outdoor arenas, several detached barns, stables, outbuildings and an extensive parking area. In addition, there are various offices, staff accommodation and an attached residential dwelling.
Location
The property is located in Eccup which is a small village to the north of Alwoodley and to the east of Bramhope. Although surrounded by beautiful countryside and woodland the property is also conveniently sited for access to Leeds, Harrogate and York. Bramhope Village centre providing a range of local amenities including shops, schools, a public house, sporting and leisure facilities is close by. Leeds Bradford Internation Airport providing business and leisure travel is within easy reach. The property is accessed via Swan Lane which is a small country lane. Woodland and open fields are to the north, west and south of the property whilst Lineham Farm is to the east.

Leeds City Centre approximately 7.5 miles distance.
Bramhope Village Centre approximately 2.5 miles distance.
Leeds Bradford International Airport approximately 5.5 miles distance.
Otley Market Town approximately 6 miles distance.
Accommodation

All floor areas provided in these particulars are approximate and must not be solely relied upon.

Total floor area: 691 sq m (7,433 sq ft).


Approx Site Area
Approximately 3.06 Acres (1.24 Hectares).
Tenure
The property is sold freehold.
Planning
Buyers are directed to the planning statement in the legal pack, which outlines the plot's prospects for change-of-use and redevelopment. All planning enquiries should be directed to LCC's planning department: https://www.leeds.gov.uk/planning
Costs
Details of the Buyer's Premium and any additional fees payable are contained within the legal documents.
General
1. All the information provided on our website is for indicative purposes only and interested parties should refer to the contents of the legal pack and rely upon their own due diligence as a prudent bidder.

2. PLEASE NOTE BIDDING COMMENCES ON TUESDAY 24TH JUNE AND CLOSES ON WEDNESDAY 25TH JUNE.

3. Energy Performance Certificate = C.

4. The pre-authorisation of the bidding deposit for this lot is £10,000.

Our Nearest Office

Leeds 600x300

Leeds

You may also like

010

Calverley Library Building, Thornhill Street, Calverley, Pudsey, West Yorkshire, LS28 5PD

Auction Ends: 28/01/2026

Guide Price: £185,000 plus

027

Former Gipton South Children's Centre, Coldcotes Grove, Gipton, Leeds, West Yorkshire, LS9 6QJ

Auction Ends: 28/01/2026

Guide Price: £290,000 plus

048

Development Opportunity At Strawberry Lane, Leeds, West Yorkshire, LS12 1SF

Auction Ends: 28/01/2026

Guide Price: £365,000 plus

058

Former Knowle Manor Residential Home, Tennyson Terrace, Morley, Leeds, West Yorkshire, LS27 8QP

Auction Ends: 28/01/2026

Guide Price: £380,000 plus

076

21 Main Street, Esholt, Shipley, West Yorkshire, BD17 7QZ

Auction Ends: 28/01/2026

Guide Price: £200,000 plus

005

Otley Cemetery Lodge, Pool Road, Otley, West Yorkshire, LS21 1HL

Auction Ends: 25/02/2026

Guide Price: £185,000 plus

Search Available
Online Auctions
Search online auction icon
Guide to
Buying at Auction
Buying guide icon
Guide to Selling
Your Property
Selling guide icon
Sign Up For
Auction Alerts
Alert icon