Lot
032
Auction Ends: 26/02/2025 11:33 - Bidding opens Tuesday 25th February 10:00 AM

Land Between 26 And 28a Sefton Road, Fulwood, Sheffield, South Yorkshire, S10 3TP

Property Details
Location
Description
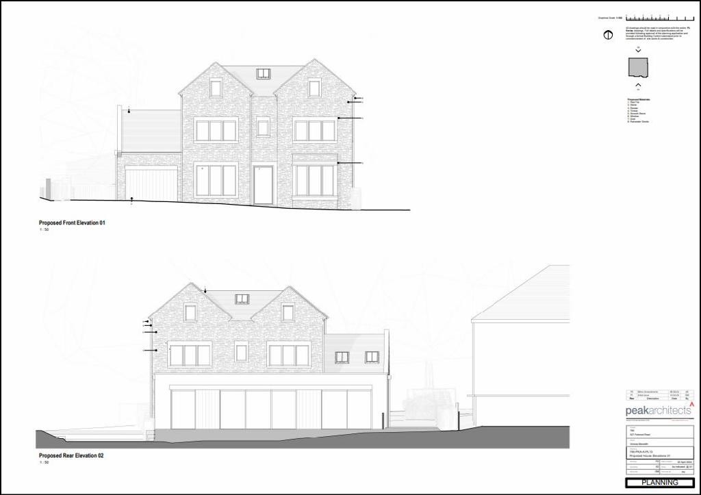
OUTSTANDING BUILDING PLOT - An increasingly rare opportunity to acquire a superb Freehold building plot located in the heart of one of Sheffield's most sought after residential suburbs. The land amounts to approximately 575 sqm and forms the lower section of garden to the rear of 527 Fulwood Road and enjoys full planning permission for a 5 bedroom/5 bathroom detached dwelling of spacious family proportions. It will be the responsibility of the purchaser to create a new driveway for 527 Fulwood Road and build a replacement double garage as outlined in the plans.
Location
The land forms the lower section of garden to the rear of 527 Fulwood Road and fronts Sefton Road between number 26 and 28a, close to the junction with Belsize Road. Fulwood is a highly regarded residential area of south west Sheffield and enjoys closeness to the beautiful Mayfield Valley and the wider Peak District yet remains within easy reach of Sheffield's main teaching hospitals, the University, reputable private and state schools and local cafes and shops.
Accommodation
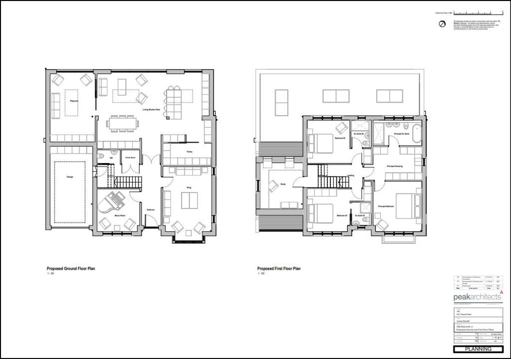
PROPOSED ACCOMMODATION 
Ground Floor 

Reception Hall, Cloakroom & WC,  Living/Kitchen/Diner, Pantry,

Playroom, Snug, Music Room and Integral Garage 

First Floor 
Landing, Principal Bedroom with Dressing Room and Ensuite Bathroom 
Bedrooms 2 & 3, both with En-Suite Shower Rooms and Study  
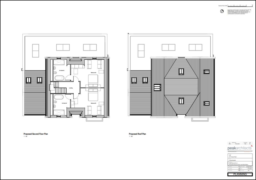
Second Floor 
Bedroom 4 & 5, each with En suite bathrooms
Approx Site Area
Approximatley 575 sqm (687 Sq Yds).
Planning
Full planning consent was granted on the 13th September 2024 for the "Demolition of garage and erecting of dwellinghouse including garage erection and double garage and other associated works" Ref 24/01877/FUL
A copy of the consent together with the approved plans have been included with the legal pack

ARCHITECTS
Peak Architects. Sheffield Office 0114 3034422 www.peakarchitects.co.uk
Costs
Details of the Buyer's Premium and any additional fees payable are contained within the legal documents.
General
1. All the information provided on our website is for indicative purposes only and interested parties should refer to the contents of the legal pack and rely upon their own due diligence as a prudent bidder.

2. PLEASE NOTE BIDDING COMMENCES ON TUESDAY 25TH FEBRUARY AND CLOSES ON WEDNESDAY 26TH FEBRUARY.

Our Nearest Office

Sheffield 600x300

Sheffield

You may also like

018

Bungalow & Land , Kelvin, 1 Backmoor Road, Sheffield, South Yorkshire, S8 8LB

Auction Ends: 28/01/2026

Guide Price: £325,000

069

Land At The R/O Wellgate / Doncaster Gate, Rotherham, South Yorkshire, S60 2LT

Auction Ends: 28/01/2026

Guide Price: £36,000 plus

083

Land At Cooks Wood Road, Sheffield, South Yorkshire, S3 9AA

Auction Ends: 28/01/2026

Guide Price: £35,000 plus

028

Land To The East Of, 12 High Street, Apperknowle, Dronfield, Derbyshire, S18 4BD

Auction Ends: 25/02/2026

Guide Price: £75,000 plus

001

Land At Ferham Road, Rotherham, South Yorkshire, S61 1AP

Auction Ends: 25/03/2026

Guide Price: £185,000 plus

Search Available
Online Auctions
Search online auction icon
Guide to
Buying at Auction
Buying guide icon
Guide to Selling
Your Property
Selling guide icon
Sign Up For
Auction Alerts
Alert icon