Lot
023
Auction Ends: 26/02/2025 11:06 - Bidding opens Tuesday 25th February 10:00 AM

741 Sheffield Road, Chesterfield, Derbyshire, S41 9ED

Property Details
Location
Description
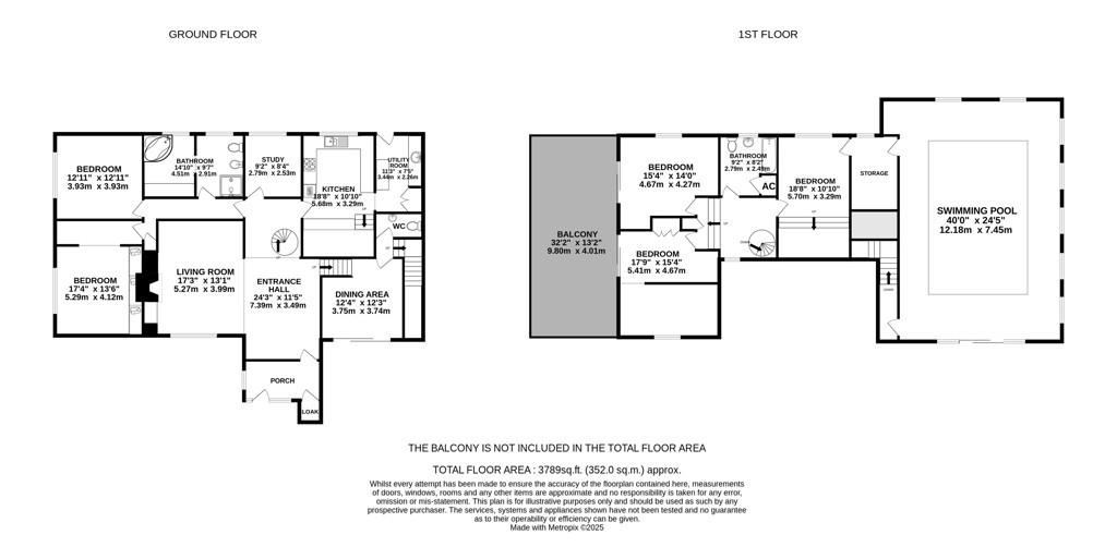
A rare opportunity to acquire this five / six bedroom detached property with indoor swimming pool, occupying grounds of approx. 3.25 Acres of grounds comprising formal gardens and woodland located a short distance from Unstone Green. This substantial property which has not been on the market in well over 40 years is in need of general modernisation and refurbishment throughout and presents an excellent chance for a developer to develop and offer to the resale market or a renovation project for an owner occupier. The site could also lend itself for redevelopment subject to obtaining the necessary planning permission. The existing property features a large entrance porch/hall leading into an open plan lounge with a split level dining room, an inner hall way provides access to two double bedrooms, a large bathroom, the study / office / bedroom six, and the dining kitchen with split level breakfast bar area, and a utility room. Also off the inner hall way is a spiral stair case leading to the first floor. Off of the dining room is a hallway with a W.C and second staircase which leads to the indoor swimming pool which is located at first floor level. The indoor swimming pool room has patio doors over looking the front gardens and has access to a changing room area. Also on the first floor are three double bedrooms, two of which having patio doors leading out onto a roof terrace, and a further bathroom. Outside the property has a mix of formal gardens and woodland with a variety of outbuilding dotted around the plot comprising of a detached double garage which has, electric and water, a good size timber built shed and a dilapidated brick built former piggery.
Location
The property is located on Sheffield Road, Unstone Green and is well placed for acces into Chesterfield, Dronfield and Sheffield having easy access onto the A61 Unstone-Dronfield By-Pass.
Accommodation

Ground Floor


Upper Ground Floor 

Entrance Porch, Open Plan Living Room, Split Level Dining Room, Hall Way, W.C, Inner Hall  Way, Dining Kitchen, Utility Room, Study / Office / Bedroom Six, Bathroom, Bedroom Five, Bedroom Four 


Swimming Pool 

First Floor Bedroom one, Bathroom, Bedroom Two, Bedroom Three
Outside
The property occupies a plot of approx. 3.25 Acres comprising formal gardens and woodland with several outbuildings consisting of a double garage which is connected to electric and water, a timber buildt shed / summer house and a brick built former piggery.
Approx Site Area
Approx 10341 SqM (12367 Sq Y)
Costs
Details of the Buyer's Premium and any additional fees payable are contained within the legal documents.
General
1. All the information provided on our website is for indicative purposes only and interested parties should refer to the contents of the legal pack and rely upon their own due diligence as a prudent bidder.

2. PLEASE NOTE BIDDING COMMENCES ON TUESDAY 25TH FEBRUARY AND CLOSES ON WEDNESDAY 26TH FEBRUARY.

Our Nearest Office

Sheffield 600x300

Sheffield

You may also like

001

Unigraph House, 287 Pitsmoor Road, Sheffield, South Yorkshire, S3 9AS

Auction Ends: 10/12/2025

Guide Price: £275,000 plus

002

232 Holme Lane, Malin Bridge, Sheffield, South Yorkshire, S6 4JZ

Auction Ends: 10/12/2025

Guide Price: £70,000 plus

019

8 Furness Close, Stannington, Sheffield, South Yorkshire, S6 6AX

Auction Ends: 10/12/2025

Guide Price: £95,000 plus

022

36 Springwood Road, Heeley, Sheffield, South Yorkshire, S8 9TW

Auction Ends: 10/12/2025

Guide Price: £110,000 plus

024

6 Walton Road, Off Ecclesall Road , Sheffield, South Yorkshire, S11 8RE

Auction Ends: 10/12/2025

Guide Price: £190,000 plus

030

15-17 Soresby Street, Chesterfield, Derbyshire, S40 1JW

Auction Ends: 10/12/2025

Guide Price: £90,000 plus

032

58 Chesterfield Road, Barlborough, Chesterfield, Derbyshire, S43 4TT

Auction Ends: 10/12/2025

Guide Price: £49,000 plus

034

14 The Crescent, Brimington, Chesterfield, Derbyshire, S43 1AZ

Auction Ends: 10/12/2025

Guide Price: £47,000 plus

038

32 Filey Street, Sheffield, South Yorkshire, S10 2FG

Auction Ends: 10/12/2025

Guide Price: £165,000 plus

039

62 Sycamore Road, Hollingwood, Chesterfield, Derbyshire, S43 2HH

Auction Ends: 10/12/2025

Guide Price: £85,000 plus

045

Vestry Hall, 1A Tannery Street, Woodhouse, Sheffield, South Yorkshire, S13 7JW

Auction Ends: 10/12/2025

Guide Price: £75,000 plus

050

46 Daniel Hill, Sheffield, South Yorkshire, S6 3JF

Auction Ends: 10/12/2025

Guide Price: £120,000 plus

006

Flats 1-4, 47 Olivet Road, Woodseats, Sheffield, South Yorkshire, S8 8QR

Auction Ends: 28/01/2026

Guide Price: £200,000 plus

018

Bungalow & Land , Kelvin, 1 Backmoor Road, Sheffield, South Yorkshire, S8 8LB

Auction Ends: 28/01/2026

Guide Price: £325,000

Search Available
Online Auctions
Search online auction icon
Guide to
Buying at Auction
Buying guide icon
Guide to Selling
Your Property
Selling guide icon
Sign Up For
Auction Alerts
Alert icon