We're now part of BTG Eddisons - Visit our new website BTGEddisonsPropertyAuctions.com
Lot
113
Auction: December 2024 Online Auction 04/12/2024 - Bidding opens Tuesday 3rd December 10:00 AM

831 Hollins Road, Oldham, Lancashire, OL8 3PP

Property Details
Location
Auction Details
Description
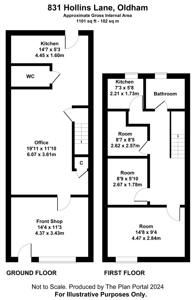
A well located two storey mid terrace retail property providing reasonably well presented internal accommodation and offered with vacant possession. The accommodation extends to approximately 98SqM (1054SqFt) (source EPC) across ground and first floors and was previously let to a beauty salon comprising a number of different rooms and associated staff facilities including 2 kitchens. In addition to ongoing commercial uses, the property would be suitable for part / all residential conversion subject to planning and we understand that immediate neighbouring properties have been converted into separate flats. We are informed that the first floor has previously utilised as a separate flat. There is a rear entrance to the building and parking for approximately 2 vehicles.
Location
The property fronts onto Hollins Road (A6104), a main road detailing a combination of established retail and residential properties. A number of amenities and facilities are available locally in Oldham which is located 2 miles to the north. Junction 22 of the M60 motorway is a 5 minute drive away, as is Oldham Road which provides convenient access into Manchester City Centre which sits 6.5 miles south west.
Accommodation

Ground Floormain retail area, kitchen, disabled W.C.
First Floor3 x rooms, kitchen, bathroom
Outside
Small parking area for approximately 2 cars.
Costs
Details of the Buyer's Premium and any additional fees payable are contained within the legal documents.
General
1. All the information provided on our website is for indicative purposes only and interested parties should refer to the contents of the legal pack and rely upon their own due diligence as a prudent bidder.

2. PLEASE NOTE BIDDING COMMENCES ON TUESDAY 3RD DECEMBER AND CLOSES ON WEDNESDAY 4TH DECEMBER.

3. Energy Performance Certificate = E.

4. The property is held on a 930 year leasehold title dated 3 January 1958.

Our Nearest Office

Manchesterresize 600x300

Manchester

Search Available
Online Auctions
Search online auction icon
Guide to
Buying at Auction
Buying guide icon
Guide to Selling
Your Property
Selling guide icon
Sign Up For
Auction Alerts
Alert icon