Lot
103
Auction Ends: 04/12/2024 15:00 - Bidding opens Tuesday 3rd December 10:00 AM

Red House Museum, 281 Oxford Road, Gomersal, Cleckheaton, West Yorkshire, BD19 4JP

Property Details
Location
Description
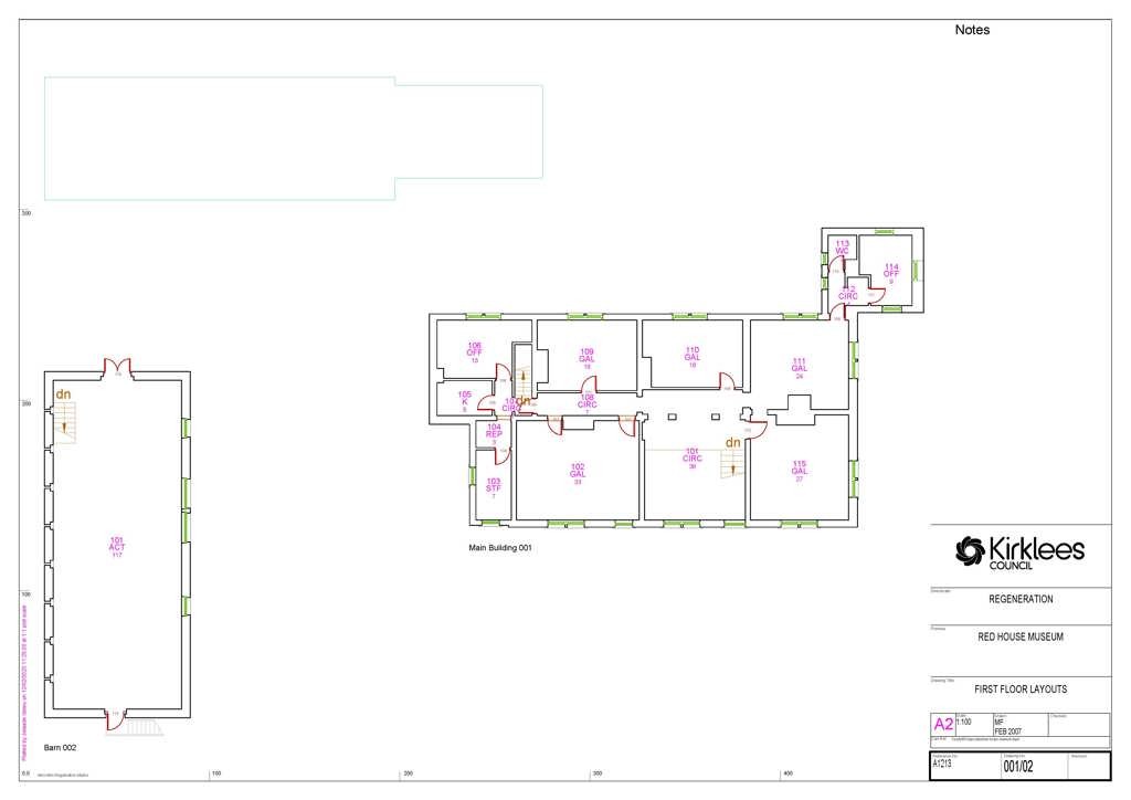
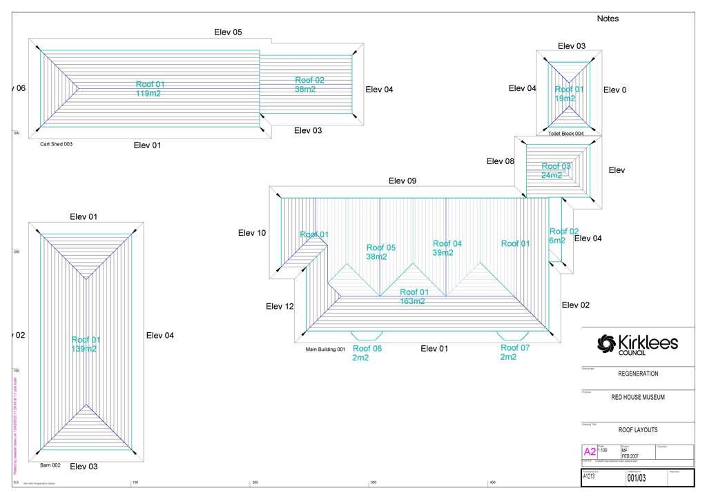
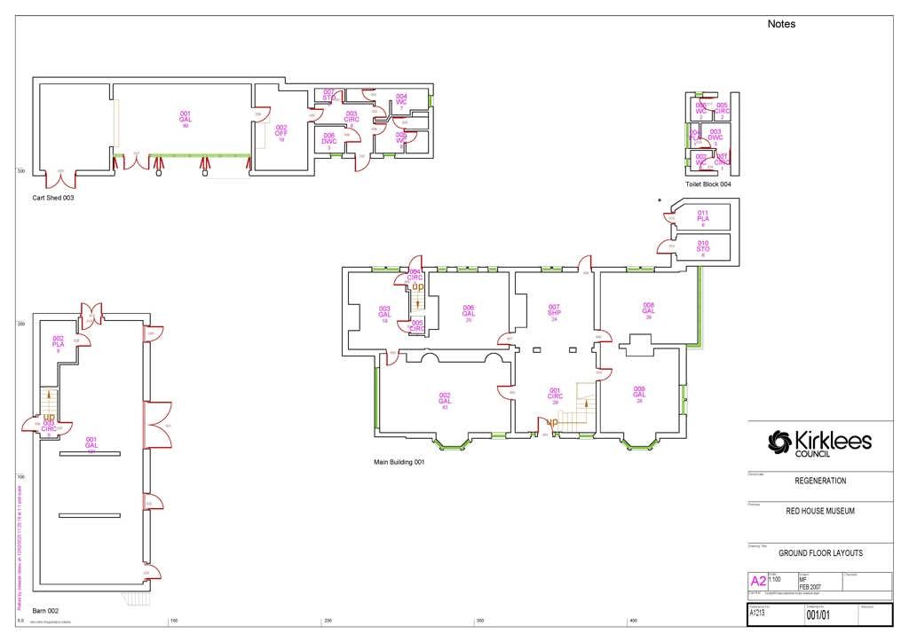
A rare opportunity to acquire the Red House Museum with associated outbuildings, situated on an overall plot of approximately 1.22 acres (0.49 hectares). The property was built in c1660 and used as a private residence before being opened as a museum in 1974*; it has since closed and is now sold with the benefit of vacant possession. The property is Grade II*-listed including all walls and buildings and is situated within a conservation area. The outbuildings comprise a large barn and a former cart shed which was converted for use as an information centre. We believe the property would be suitable for redevelopment or change-of-use, possibly back to use as an extensive single residence. The outbuildings, in particular the larger barn, may also be suitable for conversion of some kind. All redevelopment/change of use would be subject to the necessary consents and buyers must undertake due diligence on this matter.
Location
The property is located in the sought-after area of Gomersal, accessed via Oxford Road (A651). It is primarily close-by to other residential dwellings, as well as Gomersal Public Hall, with open fields to its east. Nearby amenities include schools, eateries, and shops.
Accommodation

Description Area (sq. m)

Main House - GF 181

Main House - FF 172

Main House Total 353

Barn - GF 117

Barn - FF 117

Barn Total 234

Cart Shed 116

Toilet Block 11

Total Space 714

Approx Site Area
1.22 acres (0.49 hectares).
Tenure
The property is sold freehold.
Planning
All planning enquiries should be directed to the relevant planning authority: https://www.kirklees.gov.uk/beta/planning-and-development.aspx
Costs
Details of the Buyer's Premium and any additional fees payable are contained within the legal documents.
General
1. Information source: https://historicengland.org.uk/listing/the-list/list-entry/1135404?section=official-list-entry.

2.. All the information provided on our website is for indicative purposes only and interested parties should refer to the contents of the legal pack and rely upon their own due diligence as a prudent bidder.

3. 2. PLEASE NOTE BIDDING COMMENCES ON TUESDAY 3RD DECEMBER AND CLOSES ON WEDNESDAY 4TH DECEMBER.

4. Energy Performance Certificate = E

5. The pre-authorisation amount for this bidding deposit for this lot is £30,000.
Addendum
1. The CPSEs dated 21 November 2024 stated, in Q. 4.1, that the roof of the Cart Shed has had some tiles removed by vandals and that these tiles will be reinstated prior to completion. Any tiles which are currently stored at the Property will remain at the Property. The
Seller WILL NOT be reinstating the roof prior to completion nor replacing any of the missing tiles. Q. 4.1 of the CPSEs has been updated accordingly.

2. The register of title for title number WYK815282 contains a restriction in paragraph 2 of the Proprietorship Register as follows:
"No transfer or lease of the part of the registered estate shown edged blue on the title plan is to be registered without a certificate signed by a conveyancer that the transfer or lease did not contravene section 95(1) of the Localism Act 2011." The Seller confirms that this restriction is no longer relevant and an application has been made to remove it.

Our Nearest Office

Leeds 600x300

Leeds

You may also like

010

Calverley Library Building, Thornhill Street, Calverley, Pudsey, West Yorkshire, LS28 5PD

Auction Ends: 28/01/2026

Guide Price: £185,000 plus

013

Development Opportunity At 213a Bradford Road, East Ardsley, Wakefield, West Yorkshire, WF3 2DL

Auction Ends: 28/01/2026

Guide Price: £150,000 plus

016

Edgerton Cemetery Lodge, Cemetery Road, Edgerton, Huddersfield, West Yorkshire, HD1 5NF

Auction Ends: 28/01/2026

Guide Price: £150,000 plus

027

Former Gipton South Children's Centre, Coldcotes Grove, Gipton, Leeds, West Yorkshire, LS9 6QJ

Auction Ends: 28/01/2026

Guide Price: £290,000 plus

048

Development Opportunity At Strawberry Lane, Leeds, West Yorkshire, LS12 1SF

Auction Ends: 28/01/2026

Guide Price: £365,000 plus

058

Former Knowle Manor Residential Home, Tennyson Terrace, Morley, Leeds, West Yorkshire, LS27 8QP

Auction Ends: 28/01/2026

Guide Price: £380,000 plus

076

21 Main Street, Esholt, Shipley, West Yorkshire, BD17 7QZ

Auction Ends: 28/01/2026

Guide Price: £200,000 plus

Search Available
Online Auctions
Search online auction icon
Guide to
Buying at Auction
Buying guide icon
Guide to Selling
Your Property
Selling guide icon
Sign Up For
Auction Alerts
Alert icon