Lot
060
Auction Ends: 06/11/2024 12:54 - Bidding opens Tuesday 5th November 10:00 AM

34-38 Little Westgate / 1-3 Marygate, Wakefield, West Yorkshire, WF1 1PA

Property Details
Location
Description
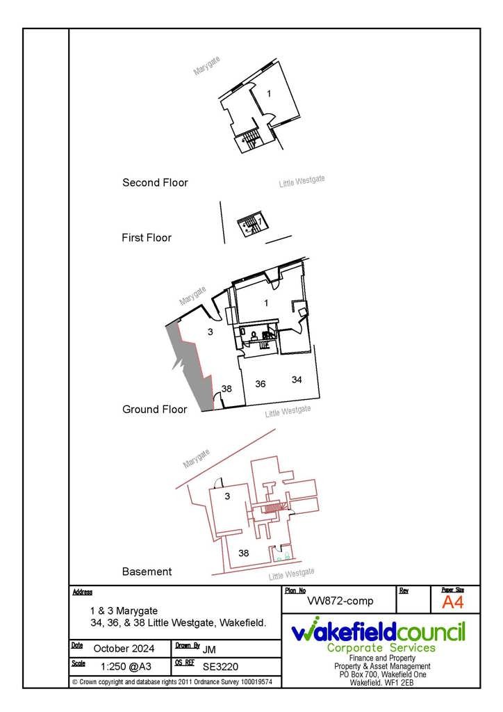
The property comprises a part single, part 3 storey block plus basement areas, providing accommodation of approximately 316 sq m (3,393 sq ft) and currently arranged as 4 retail units, with intertwining accommodation between the units. One unit, 34 Little Westgate, is tenanted having previously been subject to a occupation lease detailing a rent of £5,000pa: this lease has expired and a tenancy at will, with the same rent reserved, is being drafted. The occupied element trades as a Florists with the now vacant units previously operating as a dancewear shop, a bakery/tea room and an appliance shop.
Location
Located in Wakefield city centre at the western end of the pedestrianised section of Westgate and also with a frontage to Marygate which leads into Westgate, forming part of the A642 and in close proximity to all major routes serving Wakefield city centre also including Wood Street and Northgate, and in close proximity to Wakefield Westgate train station.
Accommodation
Buyers must note that all floor areas below are approximate and must not be solely relied upon.

1 Marygate 
Retail frontage onto Westgate and small L-shaped ground floor retail area. Ancillary accommodation comprises a w.c. located within a kitchen area on the ground floor. Staircase leads to second floor ancillary/storage area (the first floor is effectively taken up by 36 Little Westgate). There is also a basement area.

3 Marygate/38 Little Westgate 
Adjacent to No.1 Marygate and benefitting from dual-frontage on Westgate and also Marygate. Ground floor retail area  including basement/cellar and ancillary areas.

34 Little Westgate 
Small retail unit with ground floor trading area and first floor ancillary (second floor above forms part of 36 Little Westgate), with access to the first floor and a basement. This unit is occupied by a florist on a now-expired tenancy; a tenancy at will is being drafted.

36 Little Westgate
Vacant and previously occupied as a cafe with accommodation arranged over ground, first and second floors, and extending in between the ground and first floor of 1 Marygate and over part of 34 Little Westgate.

UNITDESCRIPTIONSQ MSQ FT
1 MarygateGround Floor Retail/ Ancillary49.76535
1 MarygateSecond Floor Ancillary36.86396
3 MarygateGround Floor Retail44.50478
3 MarygateBasement Ancillary (estimated)41.80450
36 Little WestgateGround Floor Retail15.20163
36 Little WestgateFirst Floor Ancillary (inc kitchen area)50.20540
36 Little WestgateSecond Ancillary31.00333
34 Little WestgateGround Floor Retail15.50166
34 Little WestgateFirst Floor Ancillary15.50166
34 Little WestgateBasement Store15.50166
Total
315.823,393

Tenure
The property is sold freehold.
Costs
Details of the Buyer's Premium and any additional fees payable are contained within the legal documents.
General
1. All the information provided on our website is for indicative purposes only and interested parties should refer to the contents of the legal pack and rely upon their own due diligence as a prudent bidder.

2. PLEASE NOTE BIDDING COMMENCES ON TUESDAY 5TH NOVEMBER AND CLOSES ON WEDNESDAY 6TH NOVEMBER.

3. There is a flying freehold extending over part of the ground floor of 38 Little Westgate which butts up to the first floor of 1 Marygate / 36 Little Westgate.

4. Some units and areas have no heating and suffer from water ingress.

5. The basement of 3 Marygate/38 Little Westgate is currently propped to reflect some structural issues. The props will remain in situ and form part of the sale.

6. 1 & 3 Marygate are Grade 2 listed according to the Historic England website. Interested parties are advised to make their own enquiries in this regard.

7. 36 Little Westgate: the whole of the electrical infrastructure has been isolated and is unusable and has been de-energised and there is insufficient fire compartmentalisation.

8. Please note that no access will be granted to the basement of 1 Marygate.

9. Energy Performance Certificates:
1 Marygate = D
3 Marygate = E
34 Little Westgate = D
36 Little Westgate = D
38 Little Westgate = D

Our Nearest Office

Leeds 600x300

Leeds

You may also like

001

Former Kinsley Craft Workshop, Wakefield Road, Kinsley, Pontefract, West Yorkshire, WF9 5EH

Auction Ends: 28/01/2026

Guide Price: £70,000 plus

013

Development Opportunity At 213a Bradford Road, East Ardsley, Wakefield, West Yorkshire, WF3 2DL

Auction Ends: 28/01/2026

Guide Price: £150,000 plus

027

Former Gipton South Children's Centre, Coldcotes Grove, Gipton, Leeds, West Yorkshire, LS9 6QJ

Auction Ends: 28/01/2026

Guide Price: £290,000 plus

048

Development Opportunity At Strawberry Lane, Leeds, West Yorkshire, LS12 1SF

Auction Ends: 28/01/2026

Guide Price: £365,000 plus

058

Former Knowle Manor Residential Home, Tennyson Terrace, Morley, Leeds, West Yorkshire, LS27 8QP

Auction Ends: 28/01/2026

Guide Price: £380,000 plus

024

Former Barugh Green Community Centre, Barugh Green Road, Barugh Green, Barnsley, South Yorkshire, S75 1JT

Auction Ends: 25/02/2026

Guide Price: £150,000 plus

033

Development Land At Roundhay Road, Leeds, West Yorkshire, LS7 3AJ

Auction Ends: 25/02/2026

Guide Price: £300,000 plus

Search Available
Online Auctions
Search online auction icon
Guide to
Buying at Auction
Buying guide icon
Guide to Selling
Your Property
Selling guide icon
Sign Up For
Auction Alerts
Alert icon