Lot
045
Auction Ends: 06/11/2024 - Bidding opens Tuesday 5th November 10:00 AM

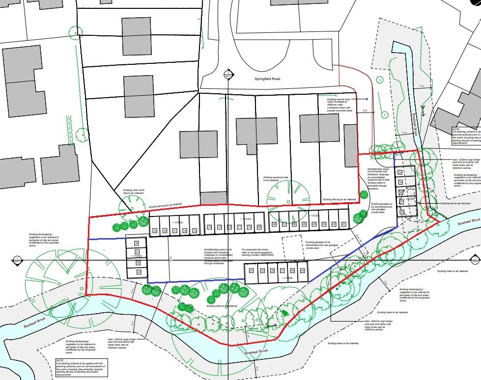
Springfield Road, Bradwell, Hope Valley, Derbyshire, S33 9JS

Property Details
Location
Description
A garage site of aprrox 0.55 Acres (0.22 Ha) located at the rear of Springwell Road, Bradwell in the Hope Valley, Peak National Park. The site currently comprises 13 single garage units however there is planning permission in place for redevelopment of the site to provide 34 single garage units accross six blocks. Details of the planning permisison can be found on the peakdistrictnationalpark.gov.uk website under planning referance number; NP/DDD/0223/0140.
Location
The site is located at the rear of Springfield Road, Bradwell, Hope Valley in the Peak National Park to the South West of Sheffield city centre.
Approx Site Area
Approximatley 0.55 Acres (0.22 Ha).
Planning
For any pre-application advice, interested parties should consult directly with the Local Planning Authority: Peak District National Park Authority, Aldern House, Baslow Road, Bakewell, Derbyshire DE45 1AE, Telephone: 01629 816 200, customer.service@peakdistrict.gov.uk
Costs
Details of the Buyer's Premium and any additional fees payable are contained within the legal documents.
General
1. All the information provided on our website is for indicative purposes only and interested parties should refer to the contents of the legal pack and rely upon their own due diligence as a prudent bidder.

2. PLEASE NOTE BIDDING COMMENCES ON TUESDAY 5TH NOVEMBER AND CLOSES ON WEDNESDAY 6TH NOVEMBER.

Our Nearest Office

Sheffield 600x300

Sheffield

Joint Agent

Contact: Andrew Terry

You may also like

001

Former Kinsley Craft Workshop, Wakefield Road, Kinsley, Pontefract, West Yorkshire, WF9 5EH

Auction Ends: 28/01/2026

Guide Price: £70,000 plus

002

Land At Coutances Way, Burley In Wharfedale, Ilkley, West Yorkshire, LS29 7HQ

Auction Ends: 28/01/2026

Guide Price: £10,000 plus

003

Templeton Lodge, Templeton Road, Platt Bridge, Wigan, Lancashire, WN2 5PB

Auction Ends: 28/01/2026

Guide Price: £180,000 plus

004

Land Adjacent To 137 Ruabon Road, Wrexham, Wrexham, LL13 7RB

Guide Price: £20,000

005

52 Church Street, Connah's Quay, Deeside, Flintshire, CH5 4AQ

Auction Ends: 28/01/2026

Guide Price: £125,000 plus

006

Flats 1-4, 47 Olivet Road, Woodseats, Sheffield, South Yorkshire, S8 8QR

Auction Ends: 28/01/2026

Guide Price: £200,000 plus

007

17 A,B & C Whitehall Court, Retford, Nottinghamshire, DN22 6JQ

Auction Ends: 28/01/2026

Guide Price: £195,000 plus

008

Unit 1 - 4, New York Cottages, Bangor Road, Penmaenmawr, Conwy, LL34 6NP

Auction Ends: 28/01/2026

Guide Price: £125,000 plus

Search Available
Online Auctions
Search online auction icon
Guide to
Buying at Auction
Buying guide icon
Guide to Selling
Your Property
Selling guide icon
Sign Up For
Auction Alerts
Alert icon