Lot
034
Auction Ends: 06/11/2024 11:39 - Bidding opens Tuesday 5th November 10:00 AM

591 West Derby Road, Liverpool, Merseyside, L13 8AE

Property Details
Location
Description
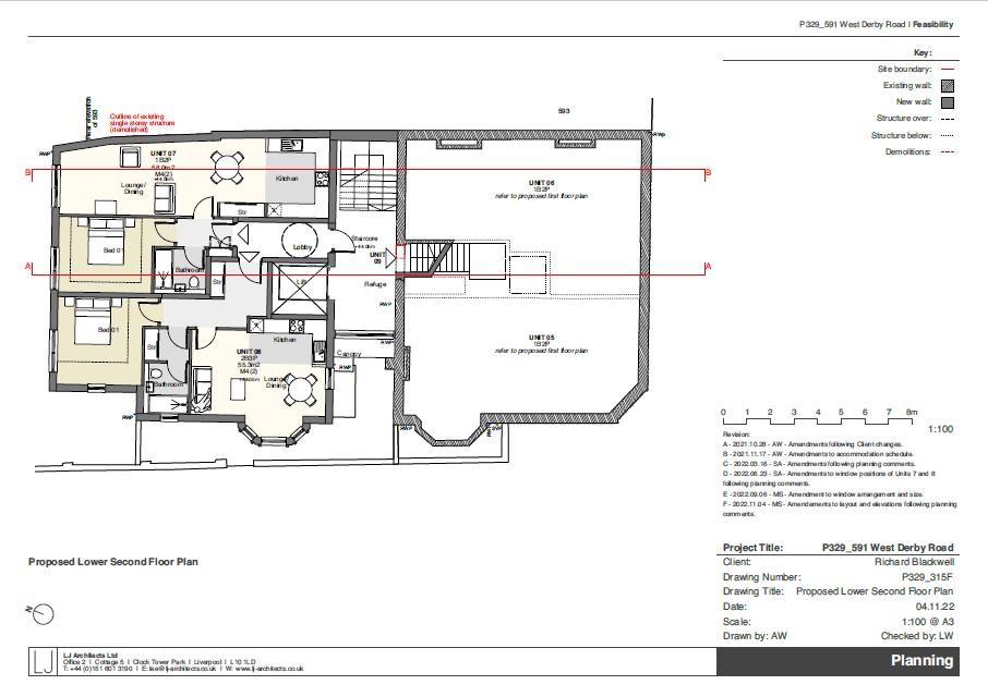
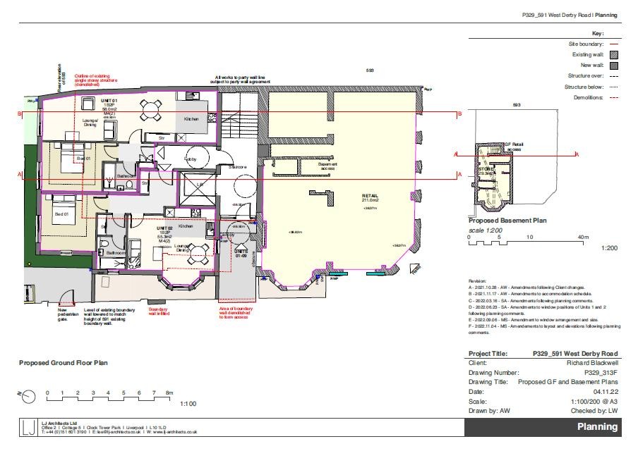
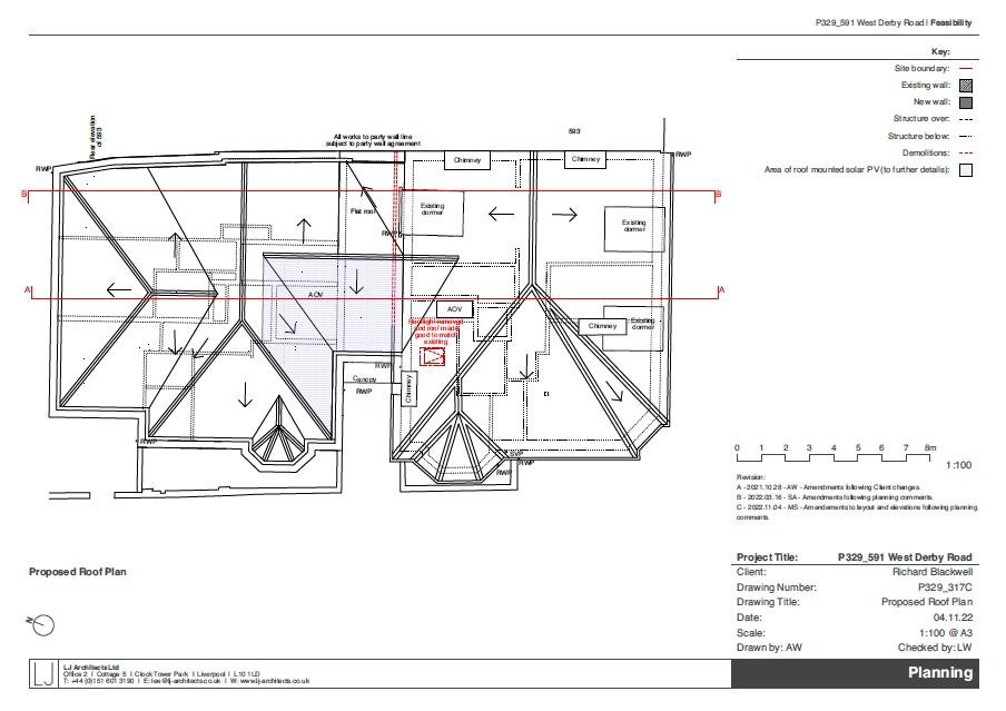
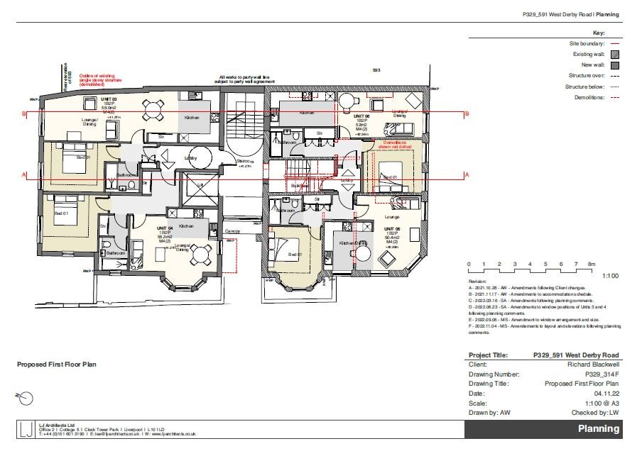
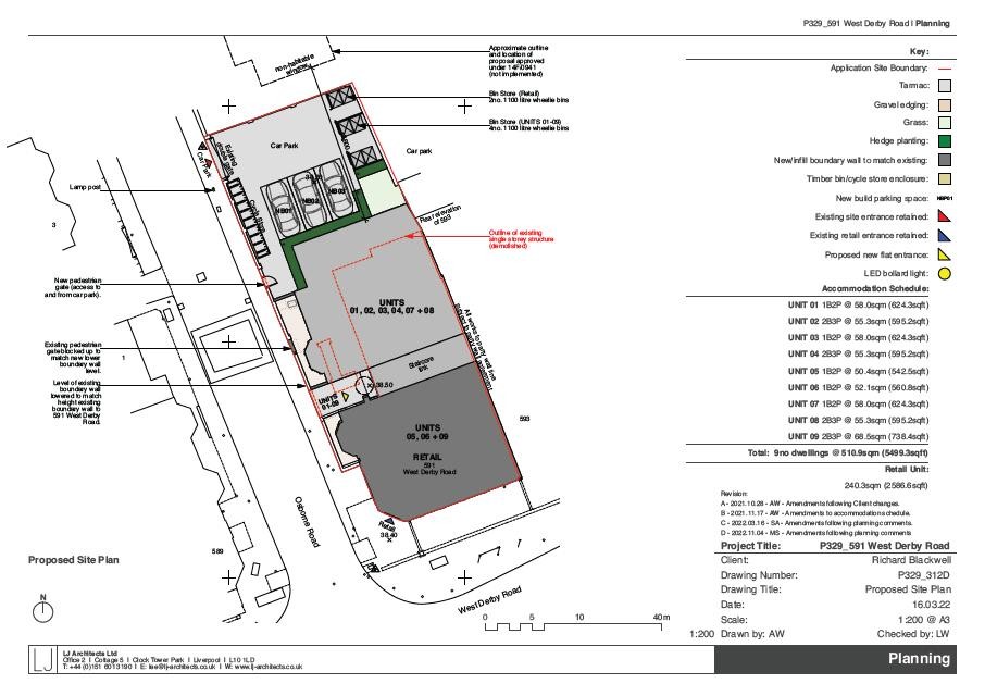
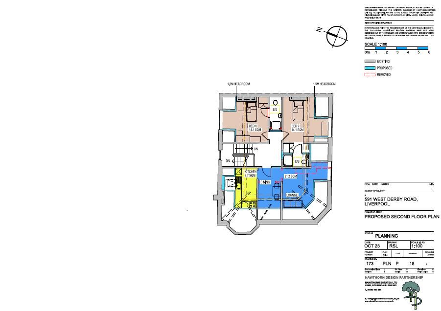
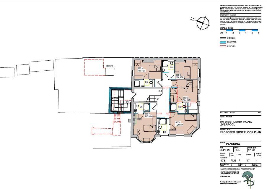
A mixed use development opportunity comprising a three storey (plus basement) end terrace building extending to approximately 366SqM (3,944SqFt). The property benefits from recently approved planning permission to extend and convert the building into a 10 bedroom (all en-suite) HMO whilst retaining a retail area to the front. In addition there is separate approved planning permission to develop the site into 9 apartments which would be a mixture of upper floor conversion and a new build extension in the car park. A full copy of both sets of plans is included as part of the legal pack.
Location
The property is located on the corner of Osborne and West Derby Road, 2 miles to the east of Liverpool City Centre. The area is a mix of residential and commercial uses. West Derby Road is a major arterial route.
Accommodation

Pugh & Co have not inspected the property internally and the following accommodation details have been provided by the joint agent. Pugh & Co take no responsibility for the accuracy of these measurements - 


Ground Floor177.3SqM / 1907SqFt
Basement12.2SqM / 131SqFt
First Floor88.6SqM / 954SqFt
Second Floor88.4SqM / 952SqFt

Outside
Car park area accessed from Osborne Road
Planning
Planning permission was approved by Liverpool Council on 6th February 2024 to part convert and extend the existing building into a 10 bedroom HMO retaining a front ground floor retail area. Planning ref - 23F/2653

Separate permission was also approved on 28th August 2023 to convert and extend the existing building into 9 apartments. Planning ref - 21F/3426
Costs
Details of the Buyer's Premium and any additional fees payable are contained within the legal documents.
General
1. All the information provided on our website is for indicative purposes only and interested parties should refer to the contents of the legal pack and rely upon their own due diligence as a prudent bidder.

2. PLEASE NOTE BIDDING COMMENCES ON TUESDAY 5TH NOVEMBER AND CLOSES ON WEDNESDAY 6TH NOVEMBER.

3. Energy Performance Certificate = D.

Our Nearest Office

Liverpool 600x300

Liverpool

Joint Agent

Keppie Massie
Contact: Tim Garnett

You may also like

001

Former Kinsley Craft Workshop, Wakefield Road, Kinsley, Pontefract, West Yorkshire, WF9 5EH

Auction Ends: 28/01/2026

Guide Price: £70,000 plus

002

Land At Coutances Way, Burley In Wharfedale, Ilkley, West Yorkshire, LS29 7HQ

Auction Ends: 28/01/2026

Guide Price: £10,000 plus

003

Templeton Lodge, Templeton Road, Platt Bridge, Wigan, Lancashire, WN2 5PB

Auction Ends: 28/01/2026

Guide Price: £180,000 plus

004

Land Adjacent To 137 Ruabon Road, Wrexham, Wrexham, LL13 7RB

Guide Price: £20,000

005

52 Church Street, Connah's Quay, Deeside, Flintshire, CH5 4AQ

Auction Ends: 28/01/2026

Guide Price: £125,000 plus

006

Flats 1-4, 47 Olivet Road, Woodseats, Sheffield, South Yorkshire, S8 8QR

Auction Ends: 28/01/2026

Guide Price: £200,000 plus

007

17 A,B & C Whitehall Court, Retford, Nottinghamshire, DN22 6JQ

Auction Ends: 28/01/2026

Guide Price: £195,000 plus

008

Unit 1 - 4, New York Cottages, Bangor Road, Penmaenmawr, Conwy, LL34 6NP

Auction Ends: 28/01/2026

Guide Price: £125,000 plus

Search Available
Online Auctions
Search online auction icon
Guide to
Buying at Auction
Buying guide icon
Guide to Selling
Your Property
Selling guide icon
Sign Up For
Auction Alerts
Alert icon