We're now part of BTG Eddisons - Visit our new website BTGEddisonsPropertyAuctions.com
Lot
047
Auction: October 2024 Online Auction 16/10/2024 - Bidding opens Tuesday 15th October 10:00 AM

302 Neepsend Lane, Sheffield, South Yorkshire, S3 8AW

Property Details
Location
Auction Details
Description
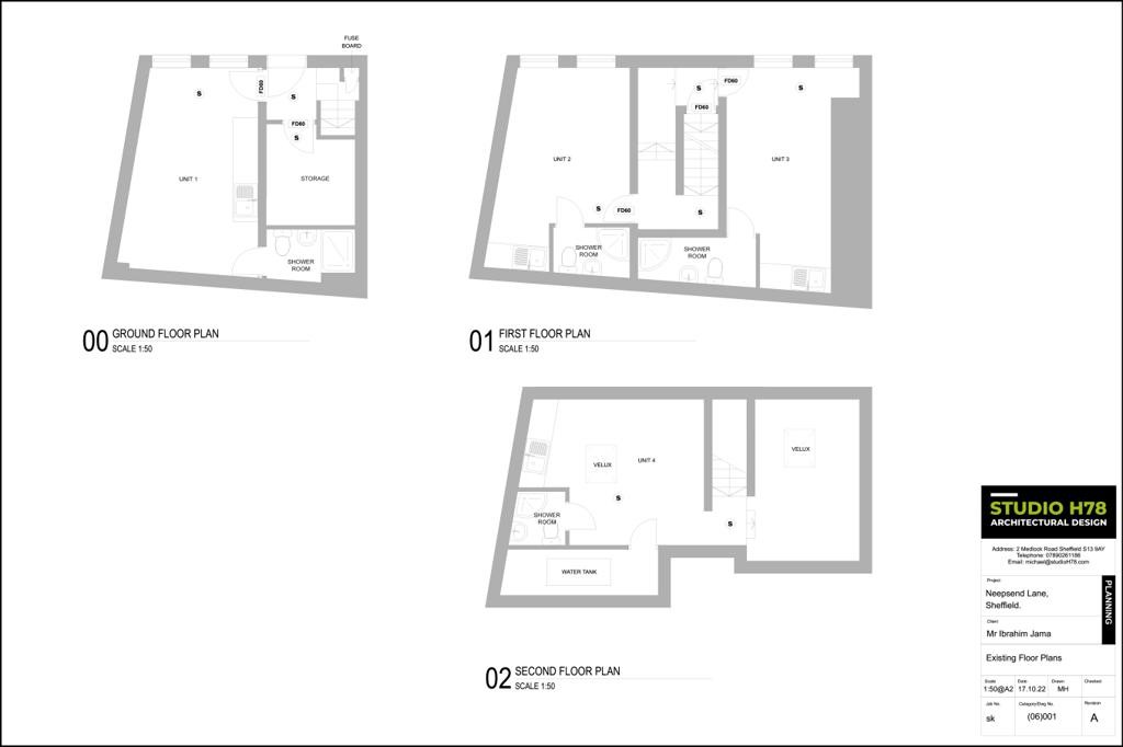
A compressively refurbished freehold office building offerings four attractive suites amounting to 83 sqm (893 sqft) over three levels. The property occupies a level position, just off the A61, less than a mile from Sheffield's inner ring road and offers a high standard of accommodation that could be used for own occupation or letting. Each suite has its own kitchen area together with separate shower room/WC facilities and are all ready for immediate occupation.
Location
Neepsend lane runs between the main A61 Penistone Road and Rutland Road less than a mile to the north west of Sheffield's Inner Ring Road. The Primrose View tram stop is with walking distance and the offices are well positioned for access to Kelham Island, Sheffield's commercial sector and local facilities
Accommodation

Ground FloorUnit 1 -Office with Kitchen area , Storage and Shower Room/WC21.83 sqm
First FloorUnit 2 - Office with  Kitchen area and Shower Room/WC33.47 sqm
First Floor
Unit 3 -  Offices with Kitchen area  and Shower Room/WC
Second Floor Unit 4  2 Offices , Kitchen area and Shower Room/WC
27.70 sqm
TOTAL
83 sqm (893 sqft)
Tenure
The tile includes the Freehold to the first/second floor accommodation that lies above the driveway to the adjoining property. Refer to legal pack
Planning
Planning consent was granted by Sheffield City Council on the 26th April 2024 for use as offices (Class E(g)(i) . Ref 23/03077/SHU (Formerly PP-12469196)
Costs
Details of the Buyer's Premium and any additional fees payable are contained within the legal documents.
General
1. All the information provided on our website is for indicative purposes only and interested parties should refer to the contents of the legal pack and rely upon their own due diligence as a prudent bidder.

2. PLEASE NOTE BIDDING COMMENCES ON TUESDAY 15TH OCTOBER AND CLOSES ON WEDNESDAY 16TH OCTOBER.

Our Nearest Office

Sheffield 600x300

Sheffield

Search Available
Online Auctions
Search online auction icon
Guide to
Buying at Auction
Buying guide icon
Guide to Selling
Your Property
Selling guide icon
Sign Up For
Auction Alerts
Alert icon