Lot
034
Auction Ends: 16/10/2024 11:39 - Bidding opens Tuesday 15th October 10:00 AM

Former South Pudsey Community Centre, Kent Road, Pudsey, West Yorkshire, LS28 9BN

Property Details
Location
Description
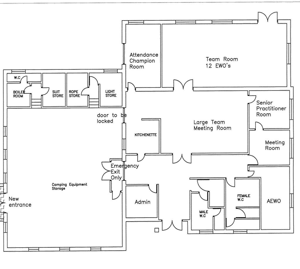
A potential redevelopment plot located in a residential area of Pudsey, comprising a former community centre situated on a site of approximately 1.38 acres (0.56 hectares). The building extends to approximately 312 sq m (3,357 sq ft) over a single storey and predominantly offers office and storage space. There is also a hard-standing car park on the site which has 16 spaces. We believe the site has potential for other uses or possibly redevelopment: buyers must satisfy themselves in this regard.
Location
The property fronts Valley Road, located immediately to the south of it and sitting between Lumby Lane and Kent Road. It is situated in a predominantly residential area of Pudsey, approximately 1.5 miles east of the town centre. Nearby amenities include schools and some commercial premises. Leeds city centre is located approximately 5 miles to the east.
Accommodation

StoreyDescriptionFloor Area
Ground floor

Offices

Storage

Kitchen

287.75 sq m (3,096 sq ft)

17.04 sq m (183 sq ft)

7.52 sq m (80 sq ft)

Total
312 sq m (3,357 sq ft)

Tenure
The plot is sold freehold.
Planning
The site may offer an opportunity for redevelopment or change of use, subject to any necessary consents. Interested parties should direct any planning enquiries to Leeds City Council's planning department: https://www.leeds.gov.uk/planning.
Tenancy
1.38 acres (0.56 hectares).
Costs
Details of the Buyer's Premium and any additional fees payable are contained within the legal documents.
General
1. All the information provided on our website is for indicative purposes only and interested parties should refer to the contents of the legal pack and rely upon their own due diligence as a prudent bidder.

2. PLEASE NOTE BIDDING COMMENCES ON TUESDAY 15TH OCTOBER AND CLOSES ON WEDNESDAY 16TH OCTOBER.

3.Energy Performance Certificate = TBC

4. Buyers must note that all floor areas and car parking space information has been taken from the VOA website and must not be solely relied upon.

5. The pre-authorisation of the bidding deposit is £15,000 for this lot.

Our Nearest Office

Leeds 600x300

Leeds

You may also like

010

Calverley Library Building, Thornhill Street, Calverley, Pudsey, West Yorkshire, LS28 5PD

Auction Ends: 28/01/2026

Guide Price: £185,000 plus

013

Development Opportunity At 213a Bradford Road, East Ardsley, Wakefield, West Yorkshire, WF3 2DL

Auction Ends: 28/01/2026

Guide Price: £150,000 plus

027

Former Gipton South Children's Centre, Coldcotes Grove, Gipton, Leeds, West Yorkshire, LS9 6QJ

Auction Ends: 28/01/2026

Guide Price: £290,000 plus

048

Development Opportunity At Strawberry Lane, Leeds, West Yorkshire, LS12 1SF

Auction Ends: 28/01/2026

Guide Price: £365,000 plus

058

Former Knowle Manor Residential Home, Tennyson Terrace, Morley, Leeds, West Yorkshire, LS27 8QP

Auction Ends: 28/01/2026

Guide Price: £380,000 plus

076

21 Main Street, Esholt, Shipley, West Yorkshire, BD17 7QZ

Auction Ends: 28/01/2026

Guide Price: £200,000 plus

005

Otley Cemetery Lodge, Pool Road, Otley, West Yorkshire, LS21 1HL

Auction Ends: 25/02/2026

Guide Price: £185,000 plus

Search Available
Online Auctions
Search online auction icon
Guide to
Buying at Auction
Buying guide icon
Guide to Selling
Your Property
Selling guide icon
Sign Up For
Auction Alerts
Alert icon