We're now part of BTG Eddisons - Visit our new website BTGEddisonsPropertyAuctions.com
Lot
064
Auction: September 2024 Online Auction 18/09/2024 - Bidding opens Tuesday 17th September 10:00 AM

6 Priory Road, Sharrow, Sheffield, South Yorkshire, S7 1LW

Property Details
Location
Auction Details
Description
OF INTEREST TO INVESTORS - A substantial three storey inner terrace located in this sought after letting area, only 1.5 miles form Sheffield city Centre and within easy reach of comprehensive facilities on both Ecclesall Road and London Road. The spacious accommodation comprises 2 large two bedroom self contained apartments, 1 one bedroom flat and a studio apartment, all of which have been used in the rental and Air B&B markets. Excellent potential is offered to achieve an annual income in excess of £30,000 with further potential offered by the unmodernised basement area,
Location
Sharrow is a long established residential area approximately 1.5 miles to the south west of Sheffield City centre, well served by local facilities including a nearby Tesco Express and within easy reach of comprehensive shops and restaurants on both Ecclesall Road and London Road. Priory Road runs between Sharrow Lane and Kenwood Park Road, with the terrace located on the right hand side, just after the turning onto Priory Avenue.
Accommodation

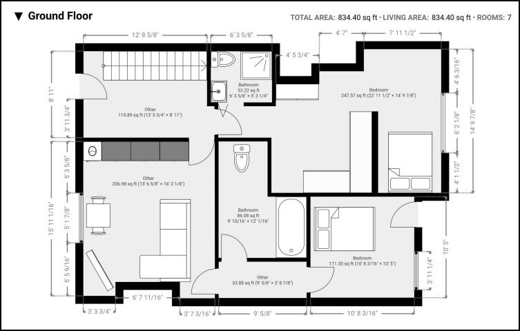
GROUND FLOOR 
834 sqft 
Communal Reception Hall
Flat Living Kitchen,  Bedroom &  Bathroom/WC

StudioLiving Room/Bedroom & Shower Room/WC
BASEMENT Extensive cellars with further potential 
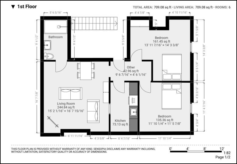
FIRST FLOOR
709 sqft 
2 Bed Flat Entrance lobby, Living Room, Kitchen, 2 Bedrooms & Bathroom/WC

SECOND FLOOR
758 sqft
2 Bed FLAT Entrance Hall, Living Room. Kitchen, 2 Bedrooms & Bathroom/WC

Outside
The property stands behind a long front garden and has a further yard and garden area to the rear with brick build store
Costs
Details of the Buyer's Premium and any additional fees payable are contained within the legal documents.
General
1. All the information provided on our website is for indicative purposes only and interested parties should refer to the contents of the legal pack and rely upon their own due diligence as a prudent bidder.

2. PLEASE NOTE BIDDING COMMENCES ON TUESDAY 17TH SEPTEMBER AND CLOSES ON WEDNESDAY 18TH SEPTEMBER.

Our Nearest Office

Sheffield 600x300

Sheffield

Search Available
Online Auctions
Search online auction icon
Guide to
Buying at Auction
Buying guide icon
Guide to Selling
Your Property
Selling guide icon
Sign Up For
Auction Alerts
Alert icon