We're now part of BTG Eddisons - Visit our new website BTGEddisonsPropertyAuctions.com
Lot
056
Auction: September 2024 Online Auction 18/09/2024 - Bidding opens Tuesday 17th September 10:00 AM

13 Nursery Road, Swallownest, Sheffield, South Yorkshire, S26 4UH

Property Details
Location
Auction Details
Description
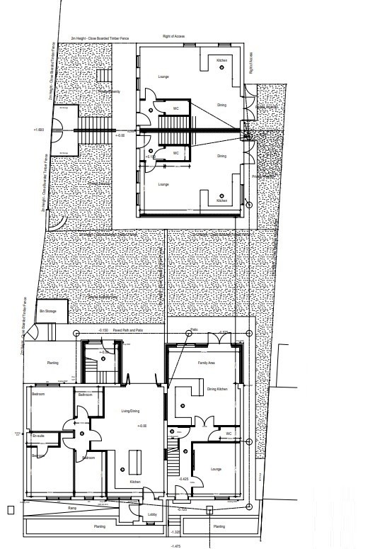
A former working men's club occupying a Freehold site of 0.14 Acres (0.056 Ha / 579 Sq M) The property / site has planning permission for the conversion and build of 5 seperate dwellings which would provide a mixed scheme comprising 2 three bedroom apartments, 1 three bedroom townhouse and 2 two bedroom semi detached properties. Details of the planning permission can be found on the rotherham.gov.uk website under planning ref; RB2023/0822.
Location
The property is located on Nursery Road just off Augton Road and a short walk form Swallownest where there are shops, supermarkets and public transport links to Sheffield and Rotherham. Junction 31 of the M1 is approx 1 mile away.
Accommodation

PROPOSED ON SITE AS PER THE PLANNING PERMISISON


Plot 1 - 3 Bedroom Apartment 

Ground Floor     Entrance Hall / Lobby, Open Plan Kitchen / Dining Living Area, Inner Hall, Bedroom One, Bedroom Two, Bedroom Three, Bathroom

Plot 2 - 3 Bedroom Apartment 
Ground Floor  Entrance Hall / Lobby
First Floor  Open Plan Kitchen / Dining Living Area, Inner Hall, Bedroom One, Bedroom Two, Bedroom Three, Bathroom

Plot 3 - 3 Bedroom Townhouse 
Ground Floor Entrance Hall, W.C, Lounge, Open plan Living  / Dining / Kitchen                                                                        
First Floor Bedroom Two, Bedroom Three, Bathroom 
Second Floor Bedroom One, En-suite Bathroom 

Plot 4 - 2 Bedroom Semi Detached 
Ground Floor Entrance Hall, W,C, Lounge / Kitchen / DIning Room                                                                                            
First Floor Bedroom One, Bedroom Two, Bathroom 

Plot 5 - 2 Bedroom Semi Detached 
Ground Floor Entrance Hall, W,C, Lounge / Kitchen / DIning Room                                                                                          
First FloorBedroom One, Bedroom Two, Bathroom 
Planning
Interested parties with enquiries should consult directly with the local planning office at Sheffield City Council: Howden House 1 Union Street, Sheffield S1 2SH - 0114 273 4567.
Costs
Details of the Buyer's Premium and any additional fees payable are contained within the legal documents.
General
1. All the information provided on our website is for indicative purposes only and interested parties should refer to the contents of the legal pack and rely upon their own due diligence as a prudent bidder.

2. PLEASE NOTE BIDDING COMMENCES ON TUESDAY 17TH SEPTEMBER AND CLOSES ON WEDNESDAY 18TH SEPTEMBER.

3. Energy Performance Certificate = C.

Our Nearest Office

Sheffield 600x300

Sheffield

Search Available
Online Auctions
Search online auction icon
Guide to
Buying at Auction
Buying guide icon
Guide to Selling
Your Property
Selling guide icon
Sign Up For
Auction Alerts
Alert icon