We're now part of BTG Eddisons - Visit our new website BTGEddisonsPropertyAuctions.com
Lot
023
Auction: September 2024 Online Auction 18/09/2024 - Bidding opens Tuesday 17th September 10:00 AM

41 Beckett Road, Doncaster, South Yorkshire, DN2 4AD

Property Details
Location
Auction Details
Description
A freehold end of terrace property comprising x6 separate self contained flats ( x5 one bedroom & x1 two bedroom) which are all currently let subject to AST's which produces £35,400 per annum. All flats have their own boilers, gas central heating & double glazing and all have their own separate meters, utilities and council tax. The property is located within walking distance of the city centre, bus and train stations and the Frenchgate Shopping Centre.
Location
The property is located on Becket Road on the junction with Jubilee Road on the edge of the city centre centre. The bus and train station, the Frenchgate shoppng centre and the High Streets of Nether Hall Road & Coply Road are all within walking distance.
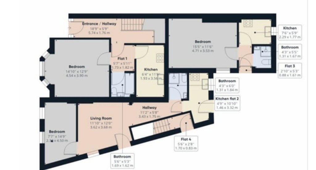
Accommodation
GROUND FLOOR 
Flat 1Entrance Hall, Kitchen / Living Area, Bedroom One, Bathroom               
Flat 2Lounge / Dining Area, Kitchen, Bathroom, Bathroom 
Flat 3 Entrance Hall, Kichen, Bedroom One, Bathroom
Flat 4Entrance Hall

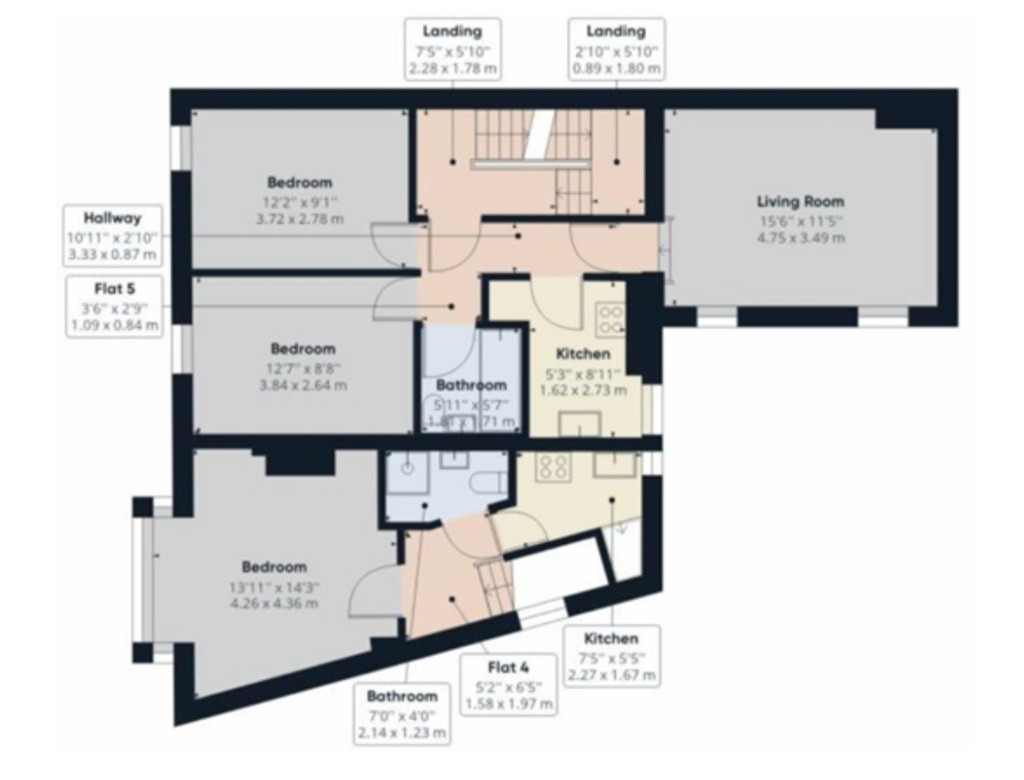
FIRST FLOOR
Flat 4Entrance Hall, Kitchen, Bedroom 
Flat 5 Entrance Hall, Lounge, Kitchen, Bedroom One, Bedroom Two, Bathroom

SECOND FLOOR 
Flat 6 Entrance Hall, Lounge, Kitchen, Bedroom One, Bathroom 
Outside
The property has front and rear courtyards
Tenancy
The property is fully let prodcuing £35,400 per annum;

Flat 1 - £425pcm (£5,100pa)
Flat 2 - £550pcm (£6,600pa)
Flat 3 - £425pcm (£5,100pa)
Flat 4 - £450pcm (£5,400pa)
Flat 5 - £625pcm (£7,500pa)
Flat 6 - £475pcm (£5,700pa)
Costs
Details of the Buyer's Premium and any additional fees payable are contained within the legal documents.
General
1. All the information provided on our website is for indicative purposes only and interested parties should refer to the contents of the legal pack and rely upon their own due diligence as a prudent bidder.

2. PLEASE NOTE BIDDING COMMENCES ON TUESDAY 17TH SEPTEMBER AND CLOSES ON WEDNESDAY 18TH SEPTEMBER.

Our Nearest Office

Sheffield 600x300

Sheffield

Search Available
Online Auctions
Search online auction icon
Guide to
Buying at Auction
Buying guide icon
Guide to Selling
Your Property
Selling guide icon
Sign Up For
Auction Alerts
Alert icon